查看完整案例

收藏

下载

翻译
#House in a cottage village
Location: Saint Petersburg
Year 2022/2023
Design: Poetic Home
Visualization: I AM Render KZ
Introducing a new house in the "New Paradise" cottage settlement - a unique combination of comfort, luxury, and surrounding nature.
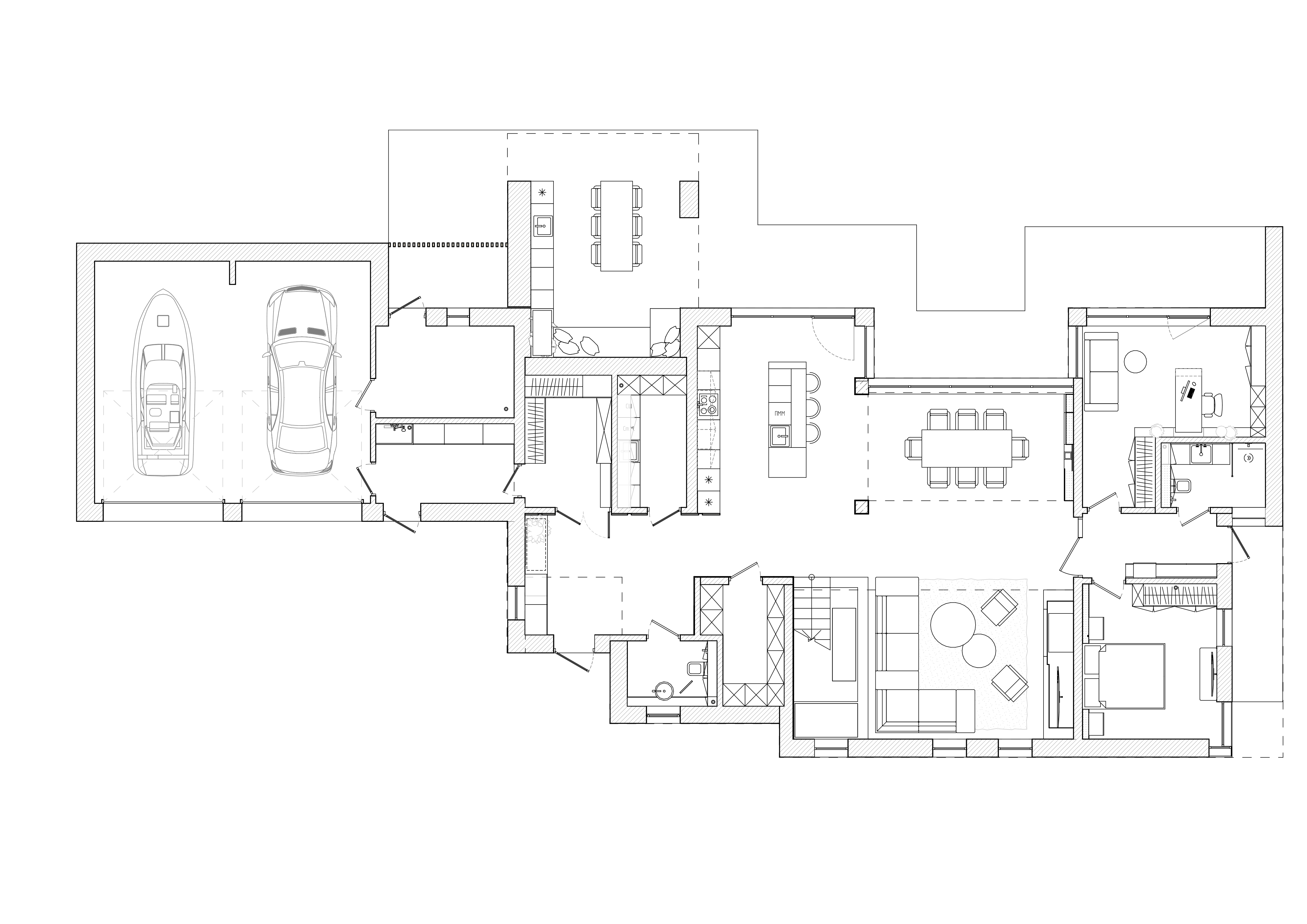
This two-story house combines functionality and aesthetics. The living area of over 300 square meters provides enough space for a large family to live comfortably, while the terrace allows you to enjoy nature and fresh air.
The house is located in the "New Paradise" cottage settlement, just 20 km from St. Petersburg. It is surrounded by beautiful birch forests, creating a unique atmosphere that is perfect for rest and relaxation.
Every detail of the house has been thoughtfully designed with the needs and desires of a modern family in mind. The garage provides safe and convenient storage for your car and boat, while large panoramic windows and a modern minimalist interior create a feeling of light and space.
The finishing materials combine natural stone and wood, and the interior brings us closer to nature.
The second floor of the house features two children's bedrooms, a large playroom with panoramic windows, a master bedroom with a separate walk-in closet, and a spacious bathroom. The children's bedrooms are cozy and inviting, with plenty of space for play and rest. The playroom is perfect for family fun and entertainment, with stunning panoramic views that bring the outdoors inside. The master bedroom is a peaceful retreat, complete with a luxurious walk-in closet for storing all your wardrobe essentials. The spacious bathroom features modern fixtures and finishes, creating a spa-like atmosphere perfect for relaxation and rejuvenation.
Enjoy the view.
# Second Floor
# Play Room
# Master Bedroom
# Master Wardrobe and Bathroom
# Teen Bedroom
# Children Bedroom
# Children's Bathroom
# End of Part 2
# Thank you for watching
Poetic Home
Interior Design Studio
Official site https://poetichome.ru/
Instagram @poetic.home
Mail poetichome@mail.ru
Phone +7 912 448 51 56Telegram @xenia_novo
I AM Render Kz
Architectural Visualization Studio
Instagram @i.am.render.kz
Phone us +7 707 227 55 22
Telegram @IAmRenderKz
客服
消息
收藏
下载
最近




































































