查看完整案例

收藏

下载

翻译
Designer:Johannes Torpe Studios
Location:Lynge, Denmark; | ;View Map
Project Year:2018
Category:Shops;Showrooms
Stories By:Johannes Torpe Studios
The United Cycling LAB & Store is a retail space that fosters knowledge, learning and innovation and perhaps even more importantly, inspires people to dream.
The showroom is designed to elevate the displayed Argon 18 bicycles and to interpret their sovereignty. It is a chapel for the bicycles and offers an invitation to admire the products for their technical superiority, to inspect and to touch them.
All the included design elements serve this purpose: bicycles floating in the air, a ceiling height of almost 6 meters, illuminated display furniture and mirrored glass that gives the illusion of an infinite lines of bicycles floating in the air. “The store of the future will be a cultural catalyst”, says Brand Strategist, Allan Kruse from Johannes Torpe Studios.
In a little over 12 months Johannes Torpe Studios have succeeded in transforming a dull industrial building from the 1990s into a gleaming cathedral for the science of cycling. With “the power of the product” as the mantra, the design team has created a retail space that provide an almost ethereal experience, a space where people can admire the products for their technical superiority.
Allan Kruse says: ”In the future we will see more examples of retailers that think experience first. In a setting where community building activities and events are the starting point, sales is almost considered a by-product of a social activity. This is a much stronger foundation for in-store as well as online sales”.
Johannes Torpe says: ”We have designed a store, where passion and dedication can thrive. It encourages you to nerd out. The store is also a result of our client’s realisation that today a store has to offer an experience and provide a sense of community and belonging.”
Henrik Lyngbye Pedersen, owner of United Cycling, says: ”I come from a culture were dreaming is encouraged and community and togetherness is precious. For those reasons it was natural for United Cycling to partner with Johannes Torpe on the journey to create a new and vibrant platform for Argon18-bicycles in Europe.”
Facts about the United Cycling Lab& Store
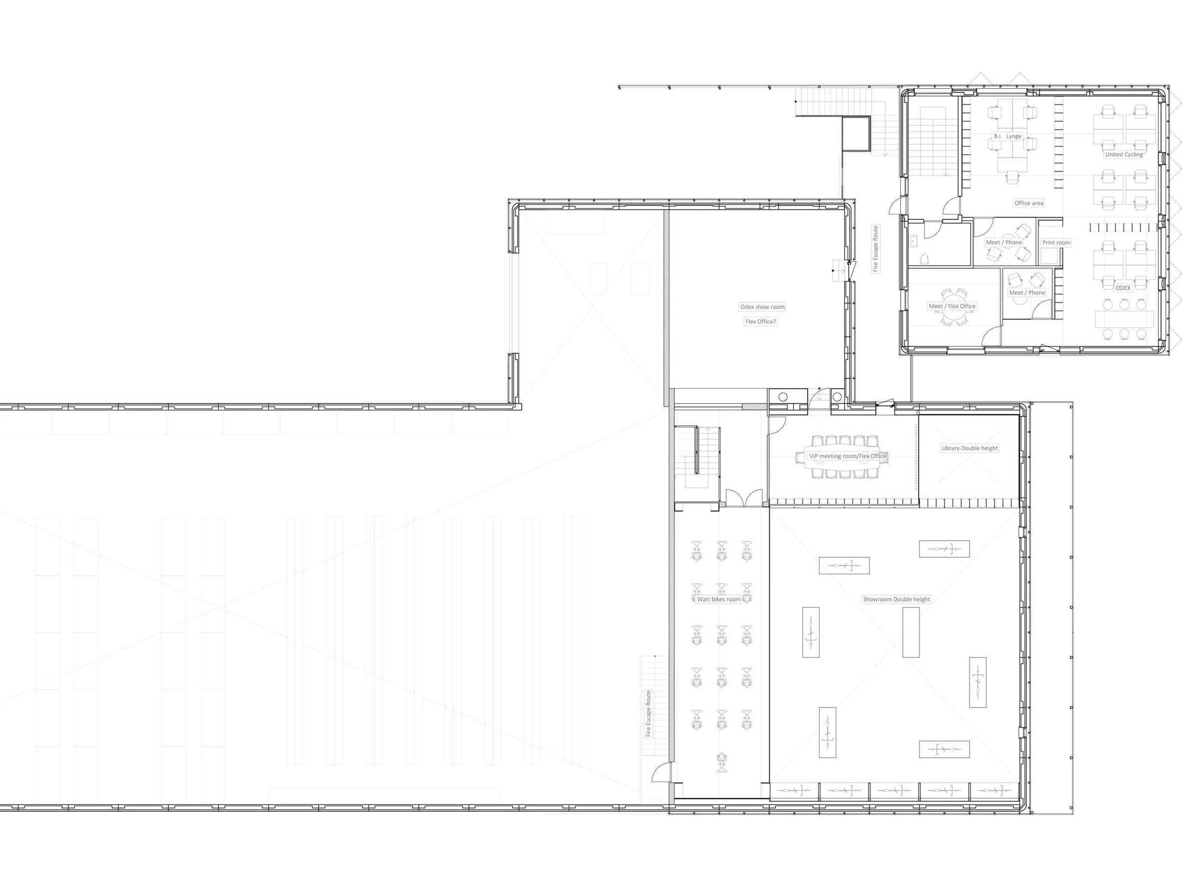
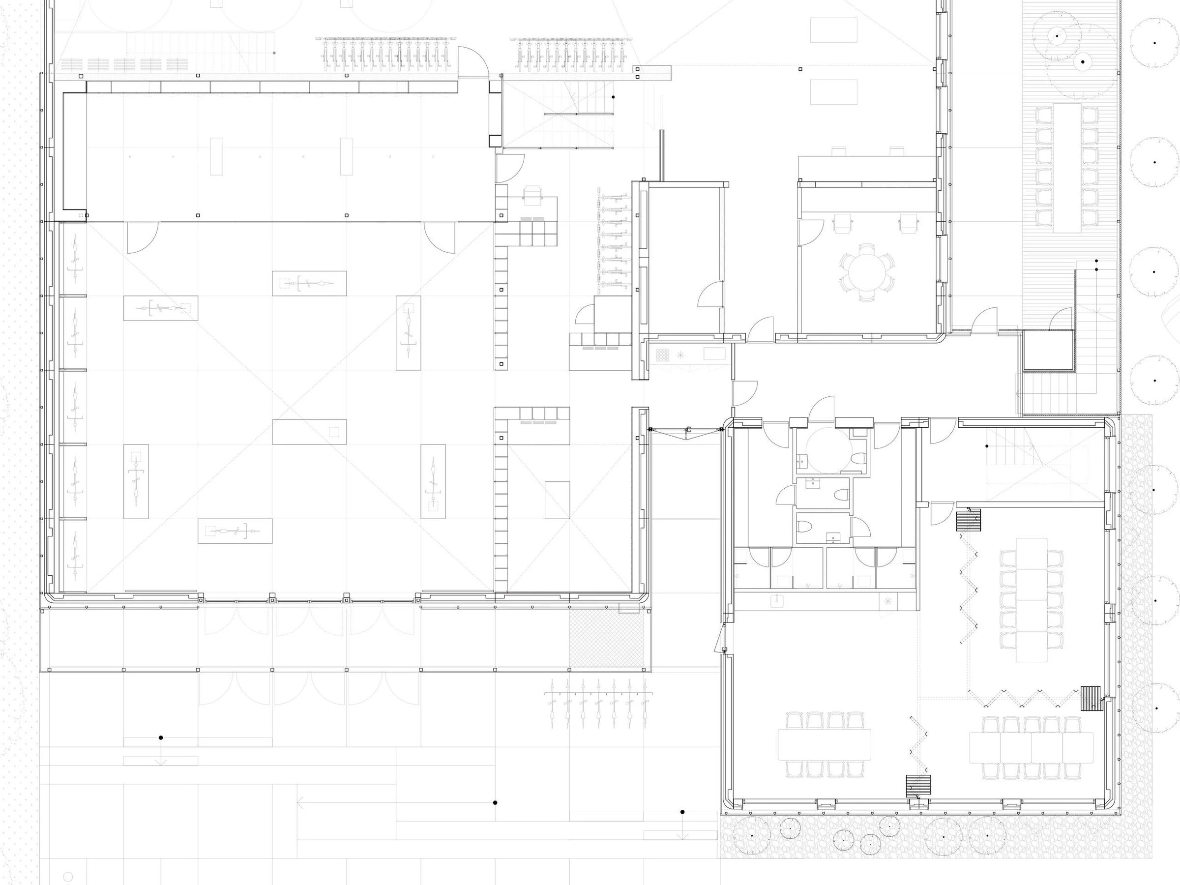
» The Lab & Store also includes a product gallery with bicycle accessories, a workshop, a bike-fitting area and training facilities. The full project encompasses office facilities, meeting rooms, cantina, storage facility and a large outdoor square by the main entrance perfect for industry meet-ups and events.
» The United Cycling Lab& Store is prototype #1 in a global retail strategy. » Technology, Engineering, weightlessness and mechanical precision were keywords in the studio’s design process.
» The design gives the word “showroom” a whole new meaning. Mounted in the ceiling are five pantographs each holding a bike. By the touch of one button they can be lowered down to eye level for a full inspection. The movement is accompanied by a lightshow moving across the ceiling before it centres on the chosen bike.
» The United Cycling Lab& Store opened in June 2018.
▼项目更多图片
客服
消息
收藏
下载
最近













































