查看完整案例

收藏

下载

翻译
Blazing Colors
By MYS Architects
Architects: Mahmoud Ragheb and Yasmin Ammar
Location: Ain El Sokhna
Year: 2022
"Design is coming to grips with one’s real lifestyle, one’s real place in the world. Rooms should not be put together for show but to nourish one’s well being.” – Albert Hadley
This project exhibits modern naturalism at its finest; implementing clean lines, natural materials & light.
_______________________________________________________________________
From Design To Reality
_______________________________________________________________________
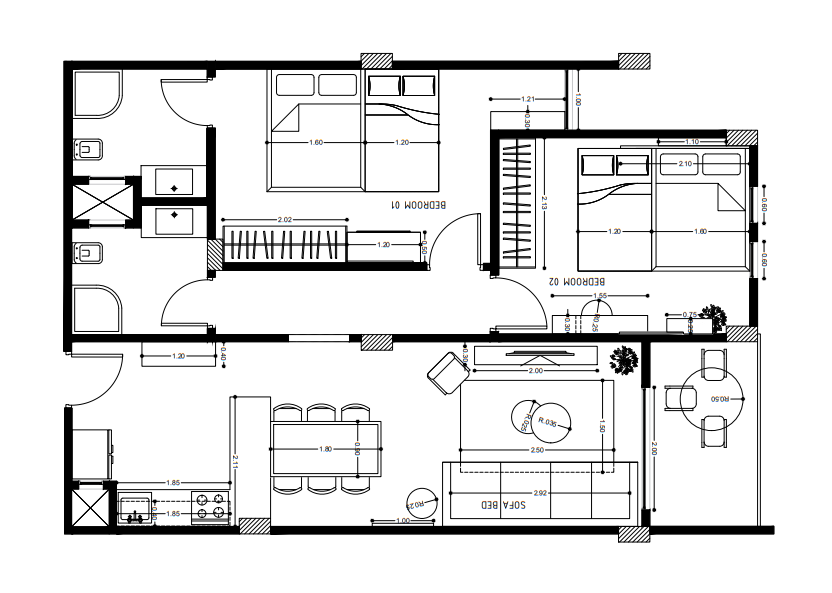
Furniture Plan
_______________________________________________________________________
I. Design Phase
_______________________________________________________________________
The Entrance pre-exhibits an exquisite small Kitchen polished with white quartz countertops, and Brazilian ebony brown wooden cupboards.
From there looking out the dining area and the living; displaying flourished polychromic finish on walls by using matte colors.
One of the significance of this room is the entering sunlight highlighting important features such as the simple artwork on wall.
_______________________________________________________________________
II. Design Coming To Life
_______________________________________________________________________
Be Part Of Our Experience!
_______________________________________________________________________
The living room is the most modern-natural looking following monochronic shades of beige and white.
The portrait on the left contrasts with the room tone, while also matching warm orange painted wall and the plant; giving a sense of a carefree mode.
_______________________________________________________________________
III. Design VS Reality
_______________________________________________________________________
_______________________________________________________________________
For more information visit our Instagram page.
客服
消息
收藏
下载
最近





































