查看完整案例

收藏

下载

翻译
Architect:Sneha Divias Atelier
Location:Al Mizhar Mall - Dubai - Dubai - United Arab Emirates; | ;View Map
Category:Shops
Maska Dubai Mall is a recently launched truly bespoke project with intricate joinery, sleek wood and metal details for a prestigious and successful gift wrapping concept that is inspired by the Japanese art of furoshiki, wrapping with fabric. It comes with an Arabic twist and is your go-to expert for all things high- end in the gift wrapping world. To cater to these needs while dedicated to innovation and craftmanship at the same time, Sneha Divias Atelier was the perfect match to create an iconic presence and foremost redefinition of a ‘kiosk’ for this Maska store to pop up at a prominent location in the Fashion Avenue of the Dubai Mall.
described as ‘The Centre of Now,’ is The Dubai Mall, the world’s largest and most-visited retail and entertainment destination, welcomming more than 80 million visitors every year. Maska Wraps is established in the Fashion Avenue, the precinct dedicated to high end fashion, that positions The Dubai Mall as the fashion capital in a global catalogue. Spread out in a vast area of 440,00 square feet, it holds the largest collection of fashion brands under one roof with it’s 70 signature stores highlighting the latest fashions. This particular department confirms Dubai as the preeminent fashion capital for the region with its haute couture offer. The signing of these luxury brands that surround Maska Wraps indicate how it contributes to this exclusive fashion retailing experience never seen before.
At Sneha Divias Atelier they have gained great experience working to a commercial structure with the best and most competitive manufacturers globally over the last few years. Each project allows the team to use a new set of ideas, research and combinations tailored to the its specific requirements, guaranteeing interiors that are impeccably layered and bespoke every time.
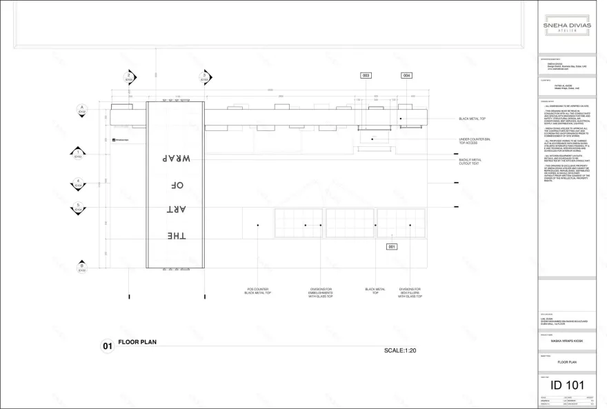
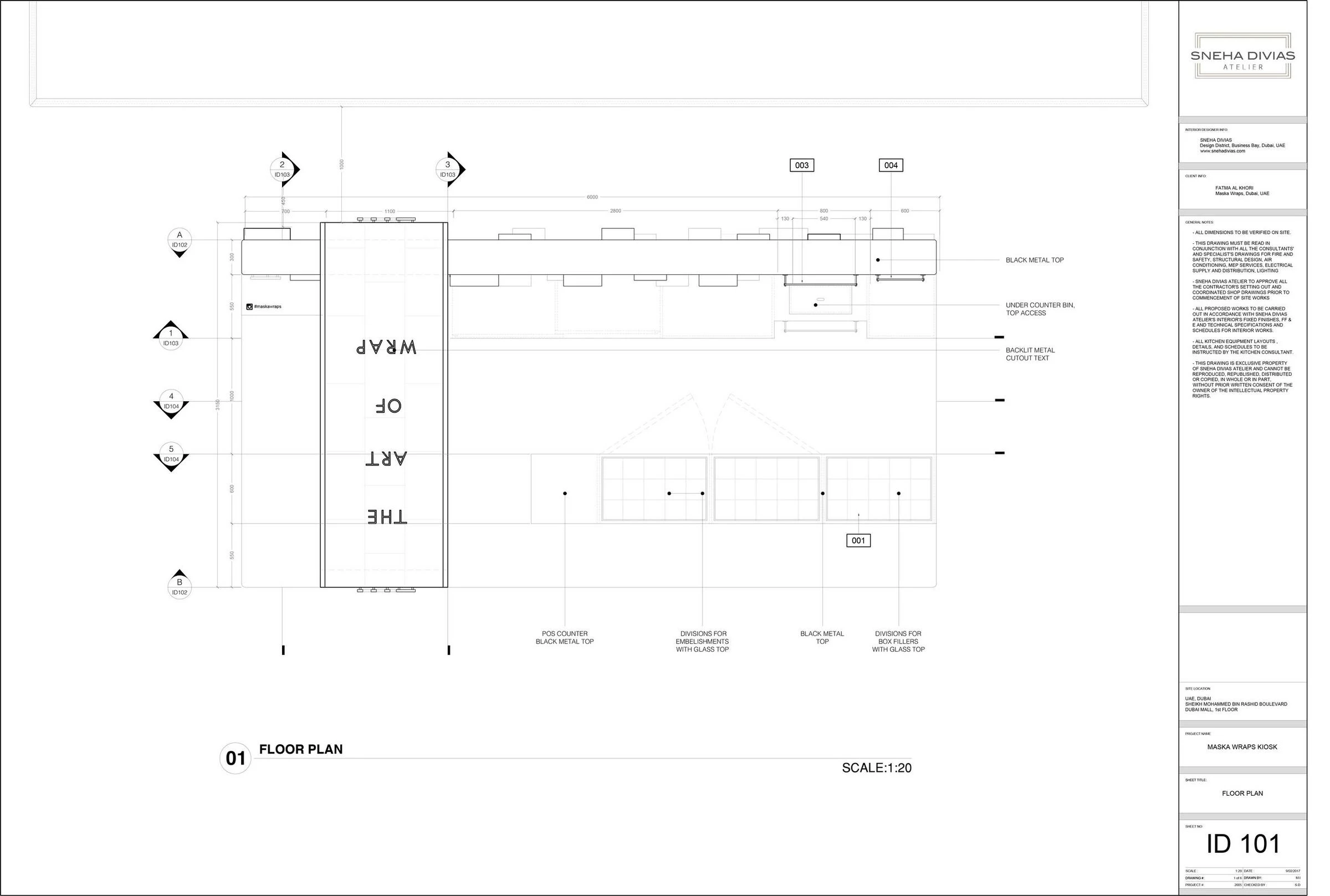
The challenge for this project lies in the detailing and a good understanding of operational needs such as the storage of small things like paper, fabrics, embellishments and boxes while complying with the Dubai Mall guidelines.
Given that the local culture is big on gift-giving, be it for special occasions, weddings or religious holidays, Maska takes everyday wrapping paper and adds some flair to it. You'll find little trinkets such as roses, pearls and calligraphy to adorn your presents with, making it a gift in itself.
Sneha Divias Atelier worked closely with Fatma Al Khoori , the creative entrepreneur owner of the business to understand the specific requirements in an interactive process. The initiative was started to give stay-at-home mums in conservative areas the chance to sew and hem Maska's fabric at home, giving them a decent income and a better life. This starting point reflects in the structure of the kiosk which is translated into volumes and cubes with an intersection of a slate element creating the positive / negative effect. It’s 360 degrees design allows you to discover it’s versatile detailing from all sides, including the top, on it’s prime location.
The impact of a retail outlet is not merely measured by its sizes and dimensions. What counts is its striking design, its visibility, its appeal and originality that draws people's attention to it. We optimized all these given aspects in order to create interesting features from every possible perspective - front, sides, and even the top. A fresh effortless refinement that encapsulated the very essence of what Maska Wraps stands for is achieved through the thoughtfully developed interior detailing, it’s selection of elegantly crafted materials, the concept guidance of functionality in design and a neutral aesthetic palette.
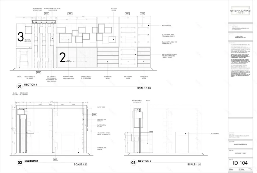
Sneha Divias Atelier’s experience and expertise allows to advise you comprehensively on the maximization and functionality of any design scheme. The design team took advantage of this great location to promote Maska’s exquisite artistry and process and show their excellence over the steps that the client goes through. This has been a part of the brand's fundamental concept and the over sized numbers guide the users through the process step by step. The focus lies on customers and the opportunity to contribute to their total experience by visually experiencing the intricate making process and the joy that comes with it. An example of the features that are accessible to the clients / experiencers, are the bespoke flower and card displays and a built in ledge to writ cards.
Interior architecture is one of the main pillars of services offered to Sneha Divias Atelier’s clients, delivering a total package is what we are known for. This involves delivering consolidated detail design drawings packages, which is the heart of the business and the strive for perfectionism reflects the personality of Sneha Divias - who runs the Atelier. After settling on the design with plans and 3D renders, the Atelier obtained the Mall approvals and oversaw the construction process with challenging time frames. The structure itself is the perfect base for the beautiful creations that are displayed by Maska, colorful and playful, which contrasts well with the muted selection and the colors it beholds for the natural and textured materials. Always guided by the brand objectives and ultimate customer experience.
▼项目更多图片
客服
消息
收藏
下载
最近






















