查看完整案例

收藏

下载

翻译
Firm: SERKAN OZTEN MIMARLIK
Type: Residential › Apartment Multi Unit Housing
STATUS: Under Construction
:
SIZE: 5000 sqft - 10,000 sqft
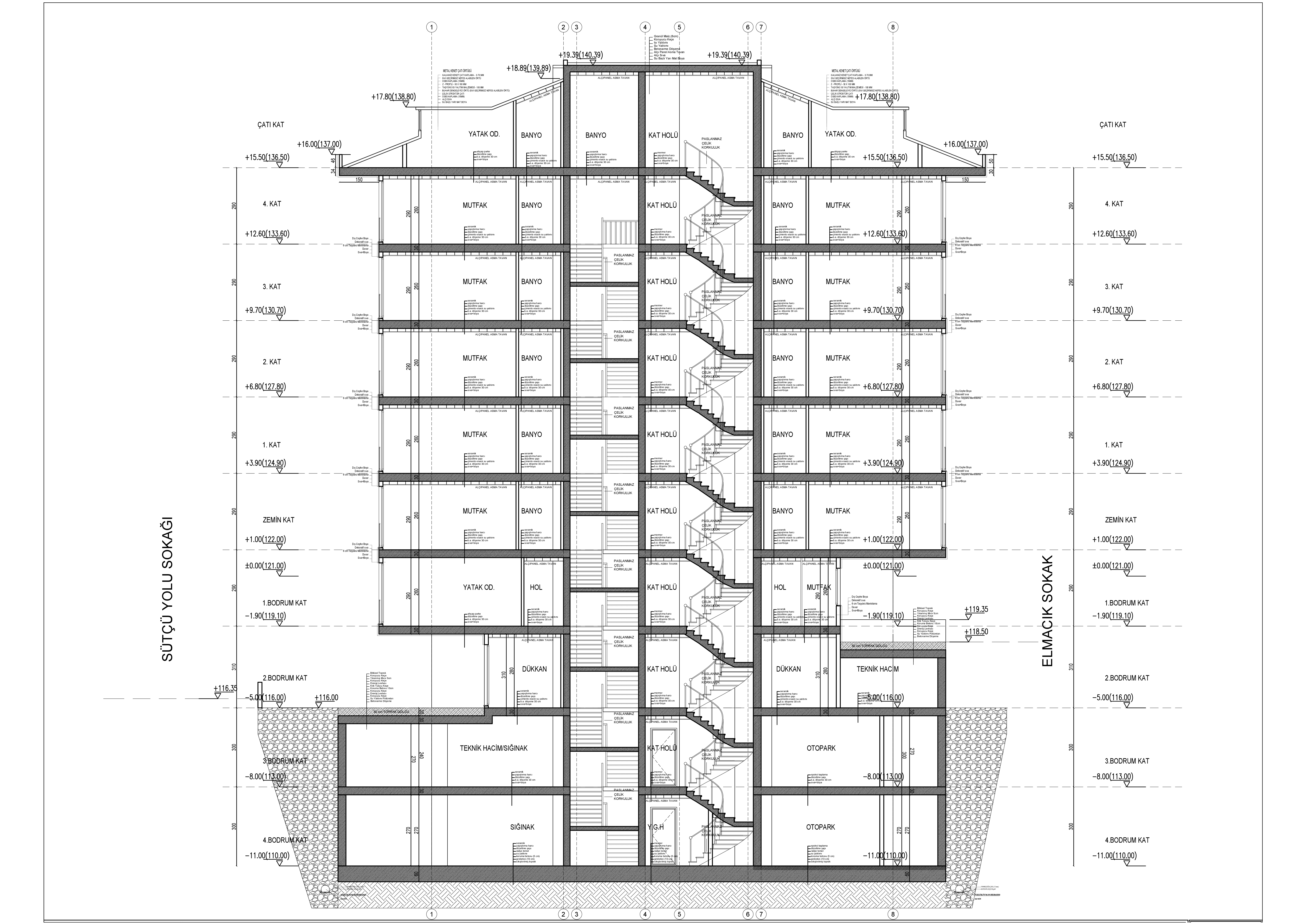
Located in Üsküdar, Yavuztürk Region, the project has a closed area of 15,000 m2 and has 3 different residential blocks. The residences, which have 4 flats on the floor, are combined in the underground car park on the bottom floor.
It has been considered as an urban transformation project, and changes have been made in line with the existing flat owners' preferences.
Project License, Implementation Project, Detail Project have been approved by Üsküdar Municipality and the tender process has been completed.
客服
消息
收藏
下载
最近











