查看完整案例

收藏

下载
项目名称:韩国上墙和下墙住宅
位置:韩国
设计公司:科德建筑事务所
公寓及其所有的便利设施和基础设施是韩国最常见、最高效的居住形式。对于那些选择住在独立屋而不是公寓的人来说,肯定有某些因素使他们想要这样的生活方式。随时可以感受大自然的露台、大型开放式花园以及外观各异的特色外景,绝对是你在公寓里找不到的房子的独特吸引力。然而,现实情况是,密集的城市规划导致了住宅区内大量四面封闭的集群住宅,每个住宅都有自己的隐私。主题土地也是如此。由于该地点四周都被其他房屋包围,住房条件不仅对房主的隐私敏感,也对邻居的隐私敏感。在场地周围的城市环境中,尽管附近有一大片绿地,但由于邻近土地上的房屋,不可能不受阻碍地欣赏自然景观。因此,我们打算建造一个反映客户需求的房子,同时保护他们和邻居的隐私,并确保封闭场地的最大开放感。标的土地位于,是一个独立住宅区的其中一个地块城南市、京畿道,位于街区的拐角处。
因此,场地的四个侧面中有两个面向一条8米长的道路,另外两个侧面与相邻的房屋相邻。虽然两面面向道路,但右侧道路以外已经有一栋建筑,前方道路以外的土地目前是一片空地。然而,由于计划将来在那里建造一座独立的房子,几乎四面都被其他房子挡住了。前面的道路平坦,几乎没有高差,但右边的道路有一个高度差约为2米的斜坡。因此,我们计划利用这一点来分隔车辆通道和步行通道。上墙,下墙-“如何打开生活空间,如何关闭它?”这是我们在这个网站上遇到的最重要也是最困难的问题,这个网站的四面都被建筑物挡住了,它的邻居对隐私问题很敏感。这个问题是指导我们整个项目规划的最重要的主题,最终,我们确定以庭院为中心的建筑不可避免地是保护周围景观隐私的最佳选择,周围景观像监控摄像头一样分布在各个方向。
然而,由于我们并不打算创造一个封闭的空间供人们居住,而不仅仅是停留一段时间,我们旨在通过阻挡周围的视线来解决客户和邻居的隐私问题,同时在空间内创造最大的开放感。除了环绕场地四周的封闭庭院式建筑之外,“墙”的建筑元素还用于保护邻居的隐私,同时规划了一个住宅空间,既满足了客户的需求,又满足了他们的孩子的需求,他们希望有一个远离父母的独立空间。我们的设计没有将墙作为一个与建筑分离的物体来使用,而是将墙与建筑融为一体,使墙成为建筑元素之一。此外,与沿着场地边界阻挡行人视线的高墙不同,与建筑融为一体的墙根据建筑尺度而不是人类尺度的垂直水平分为下墙和上墙,并以不同的功能应对每一层所需的各种问题。位于地下室和底层的较低的墙壁主要用于存储的实用功能,同时也遮挡了前屋的视野。
此外,它们还可以作为一个指南,指导视觉障碍建筑中的进出活动。沿着延伸到外部的墙进入场地内部时遇到的对角墙将视线引向相邻房屋间隙之间的开放空间,缓解了庭院式建筑中可能会感受到的幽闭感。上层墙体由二楼和一个阁楼组成,是一个关键的建筑元素,不仅起到了阻挡外界视线的基本功能,还实现了客户对两个孩子之间隐私的要求。孩子们的空间位于同一层,但被上墙隔开,分别象征着韩屋的“Sarang Chae”(客用建筑)和“anchor”(主楼)。儿子的房间更向外开放,房间的所有视野都指向场地的外部,就像韩屋的“sarangchae”,而女儿的房间更向内,结构更内向,就像韩屋的“anchae”,即女房间儿子的房间有一个转角窗户,可以看到场地周围的绿化,而女儿的房间可以看到内部庭院,为两个孩子提供了从各自房间和不同方位欣赏自然风景的机会,完全阻挡了彼此视野的干扰,从而解决了隐私问题。
此外,当从建筑的中心观看时,上下墙壁重叠产生的空间深度最大化了庭院的开放性,缓解了U形布局中可能会感觉到的幽闭感。最终,上墙和下墙是两个问题的最佳建筑解决方案,“如何关闭?”,这是关于客户和邻居的隐私需求,以及“如何打开?”,这是关于四合院建筑的开放性。u形布局-该建筑在场地上呈“U”形有三个主要原因。客户的要求包括保护邻居的隐私,一个自然的放松空间,以及一个可以用作画廊而不仅仅是生活空间的空间。如果仅仅是为了满足对自然的需求,除了U形之外,还会有许多其他的安排。然而,为了创造一个人们可以舒适放松而不必担心周围风景的空间,一个阻挡周围建筑视线的U形布局是最佳选择。此外,我们有意通过U形布局规划了一个稍长的走廊,这使我们可以在相同的土地面积内规划最长的走廊,并在走廊周围设计了一个画廊墙,使空间也可以用作画廊而不仅仅是一个居住空间。考虑到场地的城市背景和客户的需求,U形布局是建筑坐落在场地上最自然的方式。
庭院和水空间-庭院位于建筑的中心,从内部可以看到各种景观,是决定房屋整体氛围的主要空间,因此,我们希望赋予它与房屋建筑语言相似的质感,以营造统一感。经过这样的考虑后选择的水空间是另一种建筑姿态,响应了客户将空间用作画廊和居住空间的需求,以及在庭院式建筑中寻找最大开放感的需求。充满庭院的水在表面上反映了周围的环境,创造了另一种在天空中找不到的开阔感,水空间本身就像一件艺术品,安静地坐在房子的中心,使它感觉像一个画廊空间,尽管它是一个住宅空间。然而,因为房子毕竟是居住空间,人们居住的地方,考虑到需要一个正常的院子,而不是一个水空间,一个大石板被放置在庭院中心略低的位置,并在石板周围创建了一个水空间,而不是将整个庭院规划为水空间。根据水空间的深度,庭院呈现出不同的外观:当水深较浅时,它看起来像一个普通的院子,但当水深高于位于庭院中心的石板时,它被创建为一个完整的水空间。
因此,水空间的深度可以根据客户的需求进行调整,从而以更多样化的方式使用庭院。由于场地的高度差异,不完全在地下的地下室地板对行人来说感觉像一楼,尽管它实际上位于地下室水平。这是因为地下室层是暴露的,从前街看几乎就像一层楼。这使得两层楼的房子在行人看来就像三层楼房。这一点,加上阁楼的高度,可能会使这座建筑成为一座非常高大和霸道的建筑,在独立房屋附近的景观中显得格格不入。由于我们想创建一个理解和尊重场地背景的建筑,我们努力使建筑融入周围的景观并融入其中而不突出。为了保持独立住宅的尺度感,建筑需要被视为一个分割的体量而不是一个巨大的整体体量,分割体量根本不可行,因此我们试图通过立面设计对建筑的尺度感进行微调。通过在地下室和二楼使用红砖,在底层之间使用灰砖,材料的分离主要强调了体量的个性。
仅仅是使用不同的材料就产生了非常显著的效果。二楼和阁楼的体量比一楼略突出,既突出又与一楼的灰色墙壁略有分离,使其似乎漂浮在体量的简单分离之外。因此,行人不会将建筑视为三层楼体,而是一系列一到两层楼的体量。我们想创造一个满足客户需求的建筑,并对土地的环境和条件有充分的了解。这是一个四面都是建筑的封闭场所。在这种情况下,不仅要考虑客户的隐私,还要考虑邻居的隐私,我们选择的墙是一种建筑语言,既保护了客户的隐私,同时又不会让邻居觉得建筑设计冒犯了他们。被墙隔开的内部和外部空间不仅仅是简单的内部和外部划分,而是存在于墙之外的不同尺度的背景,墙是我们创造的建筑标准。墙作为一种装置来保护墙外城市环境中邻居的隐私,也作为一种装置来保护两个孩子的隐私,并在墙的建筑尺度内创造空间的深度感。最终,墙既是我们创造的建筑标准,也是一种建筑姿态,在墙外不同尺度的背景下解读和回应每个人的需求。
韩国上墙和下墙住宅外部实景图
韩国上墙和下墙住宅外部实景图
韩国上墙和下墙住宅外部实景图
韩国上墙和下墙住宅外部实景图
韩国上墙和下墙住宅外部实景图
韩国上墙和下墙住宅外部实景图
韩国上墙和下墙住宅内部实景图
韩国上墙和下墙住宅内部实景图
韩国上墙和下墙住宅内部实景图
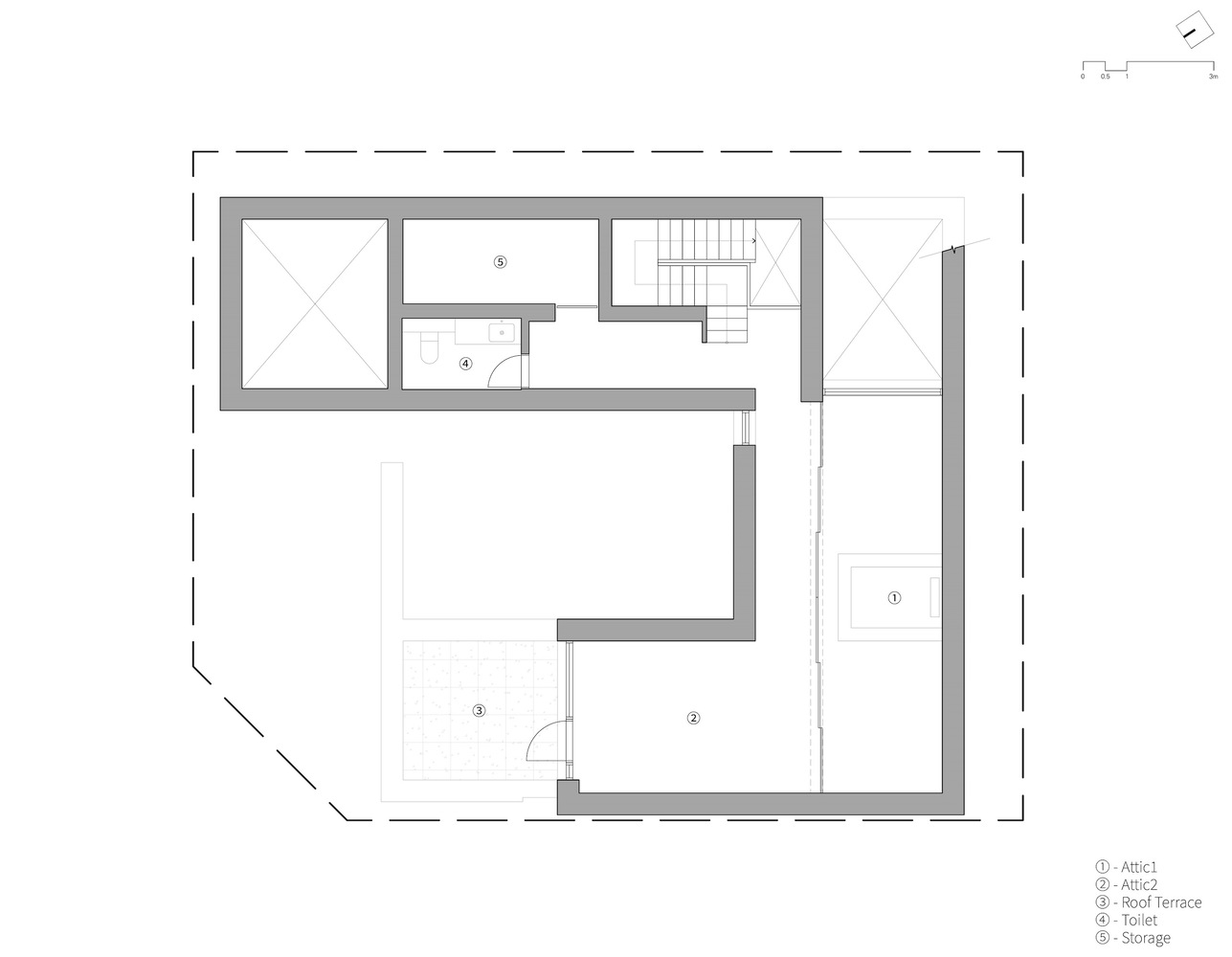
韩国上墙和下墙住宅平面图
韩国上墙和下墙住宅平面图
韩国上墙和下墙住宅平面图
韩国上墙和下墙住宅平面图
韩国上墙和下墙住宅平面图
韩国上墙和下墙住宅剖面图
韩国上墙和下墙住宅剖面图
韩国上墙和下墙住宅剖面图
韩国上墙和下墙住宅剖面图
韩国上墙和下墙住宅立面图
韩国上墙和下墙住宅立面图
韩国上墙和下墙住宅立面图
韩国上墙和下墙住宅立面图
客服
消息
收藏
下载
最近

























