查看完整案例

收藏

下载
项目名称:澳大利亚拉诺玛住宅
位置:澳大利亚
建筑师: 利特建筑
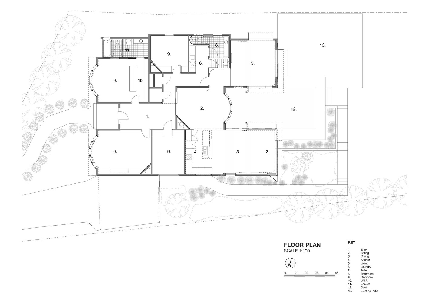
位于东朗塞斯顿塔斯马尼亚坐落着一座建于1914年的联邦政府大楼;这是一个三口之家。这个家有着可爱的性格和魅力,但是室内设计被内化了,缺乏与后院的联系。这种设计方法消除了一个疲惫的倾斜,为一个新的厨房/餐厅扩展让路,该扩展集中在一个新的庭院和后院之外。内部平面图已经合理化,以简化整个家的移动,并在现有的占地面积内纳入一个套间和洗衣房。新作品将光线引入室内更深处,并提供多个晒太阳的地方。一个花园和露台庭院使室内和室外之间有了柔和的联系,并巧妙地在室内和室外之间实现了显著的层次变化。新增加的内容大小适中,并通过现代诠释引用了联邦的细节和技巧。现有走廊的拱门在拱形餐厅天花板和外部遮阳结构中得到了重新诠释。这些微妙的曲线通过一个弯曲的浴室淋浴和现有客厅和起居室之间的新过渡在整个计划中得到进一步参考。结果是对一个简陋的联邦住宅的有趣庆祝。
澳大利亚拉诺玛住宅内部实景图
澳大利亚拉诺玛住宅内部实景图
澳大利亚拉诺玛住宅内部实景图
澳大利亚拉诺玛住宅平面图
澳大利亚拉诺玛住宅剖面图
澳大利亚拉诺玛住宅剖面图
澳大利亚拉诺玛住宅立面图
客服
消息
收藏
下载
最近










