查看完整案例

收藏

下载
项目名称:斯洛文尼亚框架屋
位置:斯洛文尼亚
设计公司:OFIS建筑师事务所
这所房子位于附近的郊区卢布尔雅那市中心,周围大多是独栋房屋和一条繁忙的道路。客户要求一个不超过200平方米的三居室,包含一个大客厅和客卧/书房。他们还要求在入口旁边建一个车棚、自行车和花园储藏室。由于地块上有一个现有的旧花园,房子的位置将保留大部分现有的草坪和树木,但在入口处也有一个铺好的区域,孩子们可以在那里玩耍或滑旱冰。有盖车棚成为该项目的主要特征,形成了一种突出住宅主要入口的遮篷。从功能上来说,这是一个保护汽车的区域,但也是一个孩子们可以在恶劣天气中玩耍的游乐场。一棵树种植在树冠下,作为入口区域的重点。
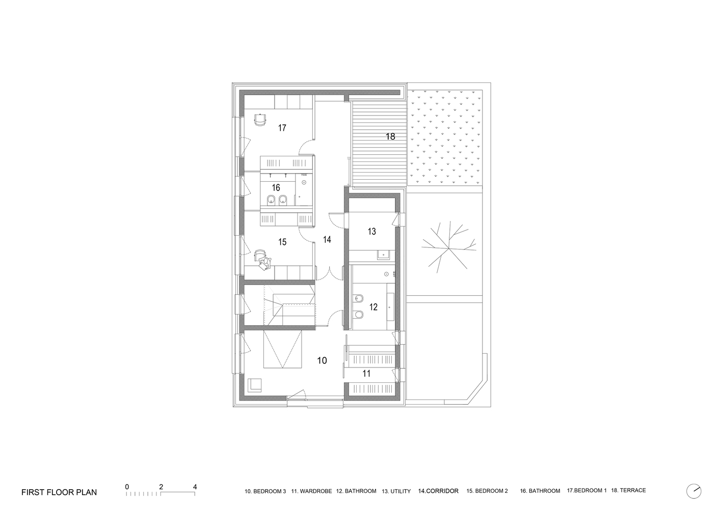
从视觉上看,天篷、储藏室和房屋形成了一个统一的体量,统一的表皮由红砖瓷砖组装而成,覆盖了垂直和倾斜的平面,并在服务室前面形成了一个穿孔的蕾丝结构。封闭的外立面和天篷也使声音与繁忙的道路隔离开来,并与房屋内部亲密无间。对面的花园立面平坦而简单,带有大型遮阳窗户,可以让南方的阳光进入室内。大窗户将室内和花园连接起来。房子的内部简单而实用。空间得到优化,在一个小区域内提供许多房间和服务。一些区域结合了双重功能,例如楼梯还可以创建书架,书房有一张折叠的特大号床,可用作客房。
斯洛文尼亚框架屋外部实景图
斯洛文尼亚框架屋外部实景图
斯洛文尼亚框架屋外部实景图
斯洛文尼亚框架屋外部实景图
斯洛文尼亚框架屋外部实景图
斯洛文尼亚框架屋外部实景图
斯洛文尼亚框架屋内部实景图
斯洛文尼亚框架屋内部实景图
斯洛文尼亚框架屋内部实景图
斯洛文尼亚框架屋平面图
斯洛文尼亚框架屋平面图
斯洛文尼亚框架屋平面图
斯洛文尼亚框架屋剖面图
斯洛文尼亚框架屋剖面图
斯洛文尼亚框架屋立面图
斯洛文尼亚框架屋立面图
斯洛文尼亚框架屋立面图
斯洛文尼亚框架屋立面图
客服
消息
收藏
下载
最近





















