查看完整案例

收藏

下载

翻译
Architect:Vapor arquitetura
Location:São Paulo, State of São Paulo, Brazil; | ;View Map
Project Year:2021
Category:Shops;Factories
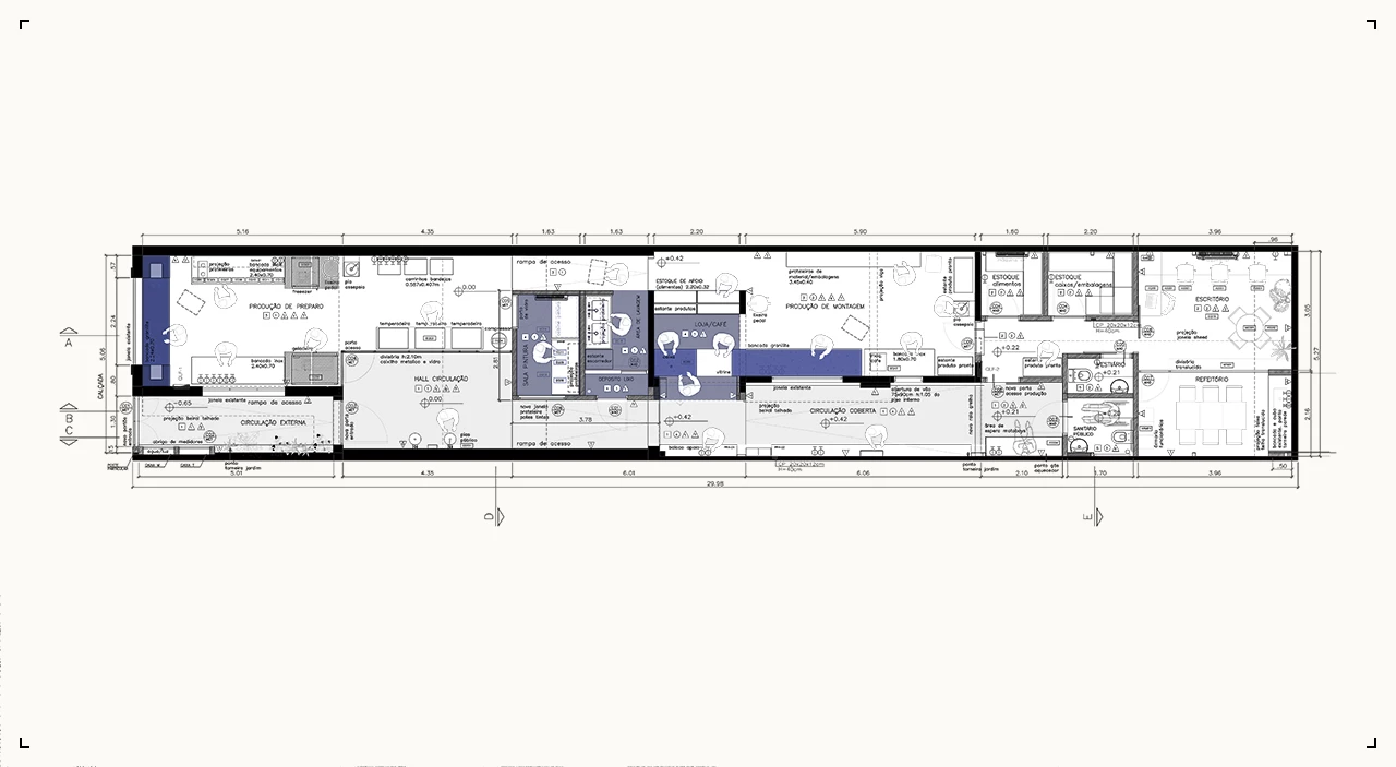
A factory store is transparent and open to the manufacturing processes. Located in a ground-floor property in the Pinheiros neighborhood in São Paulo, the remaining casario of the workers' houses from the early twentieth century and typical of this commercial neighborhood. One challenge of this project was the installation of the operational areas of the factory store within the original typology of the house: an update of the uses of a city that no longer erases itself and that maintains its previous buildings.
Architecture in this project was seen as a blank canvas, a backdrop for understanding the production processes and valuing the products used in chocolate manufacturing. The stainless steel machinery mixing the chocolate mass; the natural dyes for the paintings; the colored chocolates with handmade drawings are highlighted to passersby, from the storefront on the façade to the back of the building, thus illustrating the linear manufacturing process as the journey through the store.
The white of the architecture, although silent, brings unity to the composition between the different materials used, creating a play of texture in the space: epoxy floors and walls of the operation; glazed tiles in different sizes and patterns; metal frames; quartz countertops; burnt cement, painted brick, and smooth and perforated ceilings. There is one exception: a color-changing block inserted in the center of the store. A volume covered in holographic modular panels that houses the most reserved spaces of the operation, creating at the same time a box of surprises to the imagination of the chocolate universe with changing reflections throughout the space.
▼项目更多图片
客服
消息
收藏
下载
最近















