查看完整案例

收藏

下载
项目名称:葡萄牙Giestal公寓
位置:葡萄牙
建筑师:Saraiva + Associados
植根于君奎拉狭窄的街道里斯本,这座私人公寓以其精致的几何形状的轻盈和简约而闻名。距离贝伦宽敞的河边区域仅几米远,该区域将丰富的建筑与这个高度旅游区的喧嚣融合在一起,使这个街区更加令人向往。尽管位于市中心,但它被隐藏在住宅区的中心。该建筑分布在4层,有一个额外的立根楼层,一个屋顶楼层和一个用于停车和储存的地下室楼层,仅供居民使用。鉴于邻近紧凑的街道,主立面设计采用了冷静的基调,采用了小尺度的窗户尺度,确保了居民的隐私。这种窗户方法在后立面上调整了大小,面朝南,具体化为大型玻璃面板,带有宽敞的阳台和一楼的私人花园,使所有公寓都能欣赏到塔古斯河及其周围的美景。在该项目的主要目标中,我们强调以下几点:设计具有各种类型和可持续性标准的高质量公寓,以长期维护建筑。因此,所采用的材料和施工技术旨在确保该公寓的舒适性。这是一个非特色化的区域,建筑提案以一种无声的方式设计,作为一种可追溯到80年代的城市结构的统一元素。
葡萄牙Giestal公寓外部实景图
葡萄牙Giestal公寓外部实景图
葡萄牙Giestal公寓外部实景图
葡萄牙Giestal公寓外部实景图
葡萄牙Giestal公寓外部实景图
葡萄牙Giestal公寓外部实景图
葡萄牙Giestal公寓外部实景图
葡萄牙Giestal公寓外部实景图
葡萄牙Giestal公寓外部实景图
葡萄牙Giestal公寓外部实景图
葡萄牙Giestal公寓内部实景图
葡萄牙Giestal公寓内部实景图
葡萄牙Giestal公寓内部实景图
葡萄牙Giestal公寓内部实景图
葡萄牙Giestal公寓内部实景图
葡萄牙Giestal公寓内部实景图
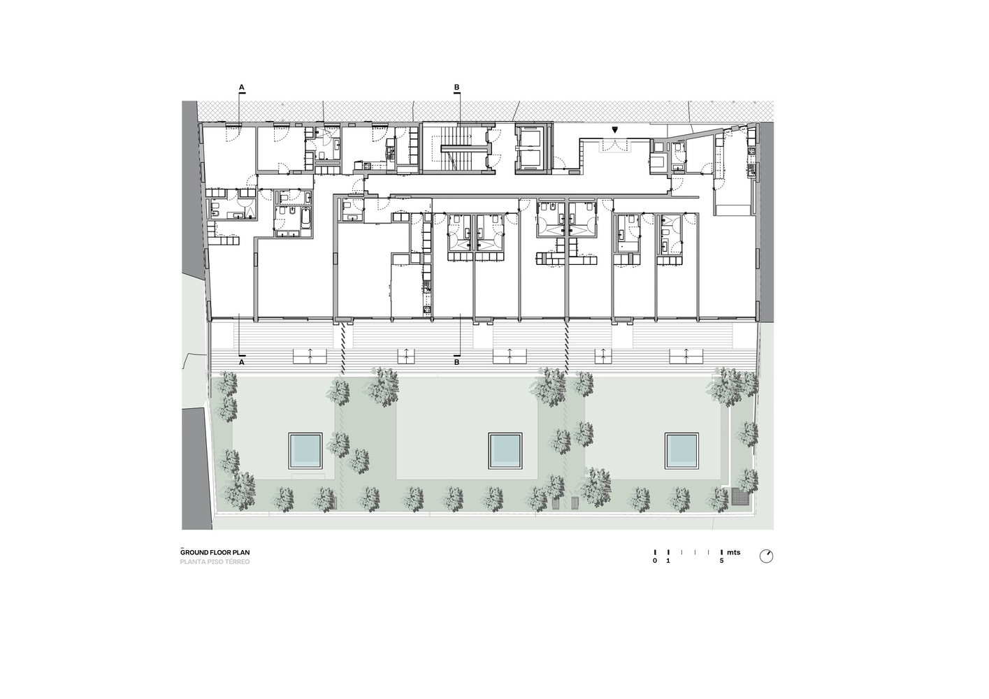
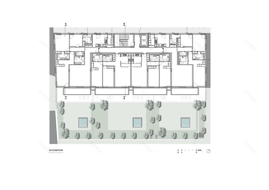
葡萄牙Giestal公寓平面图
葡萄牙Giestal公寓平面图
葡萄牙Giestal公寓平面图
葡萄牙Giestal公寓平面图
葡萄牙Giestal公寓平面图
葡萄牙Giestal公寓剖面图
葡萄牙Giestal公寓剖面图
葡萄牙Giestal公寓立面图
葡萄牙Giestal公寓立面图
客服
消息
收藏
下载
最近




























