查看完整案例

收藏

下载

翻译
Architect:deFORMA arquitectura
Location:Jardines del Bosque, Guadalajara, Jalisco, Mexico; | ;View Map
Project Year:2022
Category:Offices;Shops
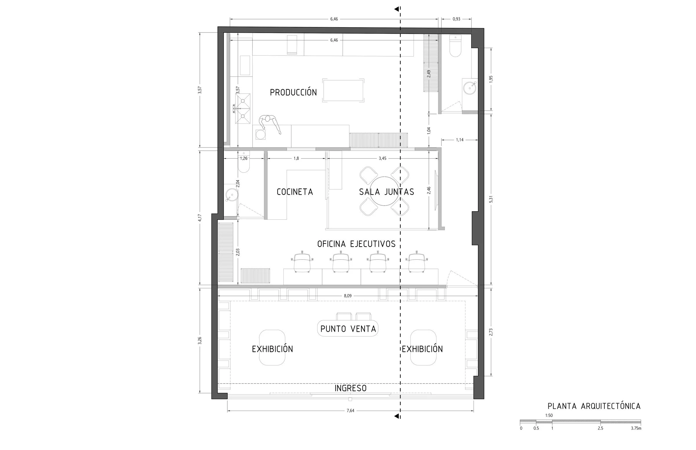
On a main avenue in the city of Guadalajara, Mexico, there is a small space that houses three architectural programs in one space: a showroom-style store of natural-origin products, creative administrative offices, and a processing and packaging laboratory.
The project, carried out by the architecture firm deFORMA arquitectura, was designed with the intention of transmitting the essence of a young company with a bold way of reaching its market.
The store called Nana Canna, located at the front of the space, is designed to highlight the company's products. To do this, natural materials such as terracotta tiles on the floor and walls, and wood in the furniture were used. Natural light is abundant and a couple of decorative plants, creates a warm and inviting atmosphere. Product displays were integrated into the walls, creating niches with rounded corners that create a sense of visual continuity in the space. This is achieved through mirrors and wooden shelves that simulate a wider width.
The offices, located in the back of the space, are designed to foster creativity and collaboration. The color green, present on the walls and furniture, helps create a more relaxed atmosphere. In combination of a squared grid at the ceiling to create a sense of amplitude at the tiny space.
The laboratory, located at the back of the space, is designed to meet hygiene and safety standards. The walls and ceiling are white, creating an industrial appearance.
The transition between the spaces is fluid and gradual. This is achieved through the use of similar materials and colors, as well as design elements that unite the spaces, such as the use of wood in the furniture of the store and offices.
The project is an example of how it is possible to adapt a small space to house different architectural programs. The use of natural materials, colors, and specific design elements helps to transmit the essence of the company and create an attractive and functional space.
▼项目更多图片
客服
消息
收藏
下载
最近
































