查看完整案例

收藏

下载
项目名称:伊朗顺风住宅公寓
位置:伊朗
设计公司:阿沙里建筑师事务所
顺风住宅公寓是城市环境中形式和功能的完美结合,与周围的景观相协调,同时提供独特的居住体验。由于主要位于单层结构中,建造一栋三层建筑的挑战是通过一种敏感的形式来实现的。建筑的设计通过采用微妙的起伏和凹陷来回应其背景,使其轮廓与现有的天际线保持一致。这种刻意的姿态确保了与邻近结构的连续性,同时也为开发注入了个性。交叉街道的圆角保持了视觉凝聚力,将体量与表面无缝融合。室内和室外空间之间的关系是精心策划的,重点是最大限度地利用自然光并促进与环境的联系。该建筑朝南敞开,朝向后院,阳光充足,可以看到扎格罗斯山脉的景色。通过战略性的设计元素来保持隐私,例如西侧立面上的贝壳表面,它不仅可以遮挡刺眼的阳光,还可以作为展示古树之美的画布。在这个外壳后面,居民可以享受私人露台,提供一个远离繁华主街的退路。
屋顶作为生活空间的延伸,具有各种便利设施,旨在吸引居民并增强他们的体验。从厨房花园到游戏区,屋顶超越了其传统角色,成为社交互动和放松的动态中心。水平开口点缀屋顶,邀请一瞥天空和注入自然光线和通风的内部空间。受树叶在风中自然起舞的启发,该建筑的外壳成为美学和功能性的鲜明证明。利用光线网格和小方形表面,外壳模仿了树叶的流畅运动,创造了一种随光影变化而变化的动态视觉效果。这一建筑特征不仅增加了视觉趣味,还具有实用目的,在吸引路人(尤其是鼓励儿童探索外壳和立面之间的空隙空间)的同时为盛行风提供庇护。本质上,顺风住宅公寓不仅仅是一个居住的地方;这是精心设计和与周围环境和谐融合的证明。从其雕塑形式到其动态外观,开发的每个方面都表明了对环境、社区和自然内在美的深刻理解。
伊朗顺风住宅公寓外部实景图
伊朗顺风住宅公寓外部实景图
伊朗顺风住宅公寓外部实景图
伊朗顺风住宅公寓外部实景图
伊朗顺风住宅公寓外部实景图
伊朗顺风住宅公寓外部实景图
伊朗顺风住宅公寓外部实景图
伊朗顺风住宅公寓内部实景图
伊朗顺风住宅公寓内部实景图
伊朗顺风住宅公寓内部实景图
伊朗顺风住宅公寓内部实景图
伊朗顺风住宅公寓内部实景图
伊朗顺风住宅公寓内部实景图
伊朗顺风住宅公寓内部实景图
伊朗顺风住宅公寓内部实景图
伊朗顺风住宅公寓内部实景图
伊朗顺风住宅公寓内部实景图
伊朗顺风住宅公寓内部实景图
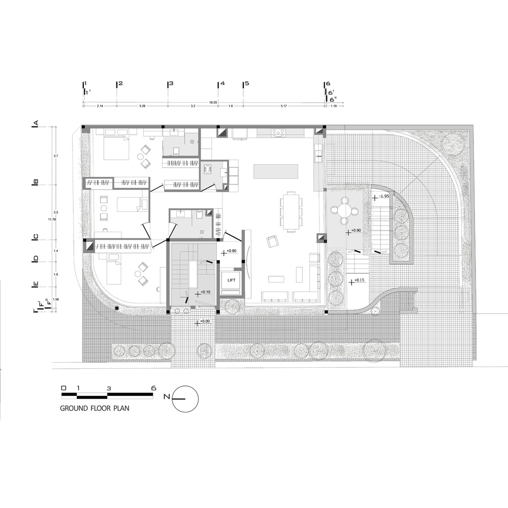
伊朗顺风住宅公寓平面图
伊朗顺风住宅公寓平面图
伊朗顺风住宅公寓平面图
伊朗顺风住宅公寓平面图
伊朗顺风住宅公寓剖面图
伊朗顺风住宅公寓立面图
伊朗顺风住宅公寓立面图
伊朗顺风住宅公寓立面图
客服
消息
收藏
下载
最近





























