查看完整案例

收藏

下载
项目名称:巴西Giudice住宅
位置:巴西
建筑师: 阿尔基蒂托·阿尔基蒂图拉
受一对有十几岁孩子的夫妇委托,这座住宅位于圣保罗市一个树木茂密的社区,其设计源于一个特殊的故事:从先在创造新在。与完全建造房屋的传统流程相反,考虑对环境影响较小的方法,客户的目标是获得一处房产进行翻新。他们花了大约四年的时间进行研究和考察,直到发现了一个具有独特特征的城市宝藏,其性质鼓励潜在的干预措施。该住宅最初是按照德国建筑风格的原则建造的,其特点是陡峭倾斜的木屋顶悬于石墙之上,天花板为木板。这种审美吸引了这对夫妇,因为它舒适的氛围和它让人想起传统的德国小屋。尊重地介入一座具有建筑价值的建筑,保留其主要特征,但以当代风格适应新居民的需求,这是该项目的最初前提。相反,他们想要优先考虑综合居住和热舒适的空间。该建筑几乎占据了狭窄地块的全部长度,布局高度分散,造成了自然采光和通风的一定匮乏。
改造项目试图在最大化开口的同时整合主要空间。为了实现这一目标,之前容纳阁楼的楼板被拆除,客厅的天花板高度增加了一倍,现在超过6米,突出了修复的木桁架。此外,分隔社交区、厨房和流通区的隔墙被拆除,形成了一个宽敞的生活和休闲区。在改造过程中建立了不同的建筑策略来扩大自然光的进入,包括在主立面上安装新的玻璃窗,以及在底部使用浅色材料进行光反射。这种方法也促进了室内和入口花园之间的视觉通透性。在外面,房子的原型部分从金属结构门廊线性延伸,类似于凉棚,保护入口并过滤光线。在对面的立面上,新的美食区与厨房相连,并面向游泳池,其结构以赤土色绘画突出,而相同色调的琉璃瓦覆盖了主墙。为了实现所有区域的视觉交流,新的安排允许对整个社交翼进行全面阅读。
从入口开始,凉棚表明可以进入客厅,从那里可以看到家庭影院、厨房、美食区、背景中的游泳池和楼上的办公室,增强了整体居住的感觉。当打开时,宽大的滑动框架允许交叉通风,有助于室内舒适的热质量。前院和后院被其他房屋包围,缺乏视野,在形成远景方面起着重要作用。周围的树木为住宅增加了一层保护。从物质上来说,该项目旨在提高宽敞度和舒适度。为此,应用了不同的自然纹理和阴影。地板覆盖着瓷器,而墙壁的表面,降低的天花板和木桁架被涂成白色;壁炉覆盖着石头-关于住宅的原始特征-;屋顶天花板覆盖着陶阿里木板,既美观又平衡了比例。在外面,所有的外立面都涂上了深色,与室内的纯净形成对比。
在室内提案中,通过精心挑选家具,传统的木屋风格被重新想象,打破了城市房屋的拘谨,唤起了真正的乡村度假胜地的简约:现有的家庭家具加入了巴西设计师的新作品;其他人捡垃圾,用实木制成。金属板楼梯嵌入混凝土墙中,连接两层。夹层中是家庭办公室,开放且一体化,而三个套房分布在两个侧面,因此屋顶预先存在的坡度为每个卧室提供了宽敞的天花板高度,并配备了私人阳台。天窗为流通画廊带来自然光。因此,在令人想起原始建筑的德国小屋的热情元素和新的当代元素之间存在着和谐的融合。这不仅保留了建筑的美学精髓,还满足了家庭生活方式的需求,强调了托管和共享时刻的重要性。
巴西Giudice住宅外部实景图
巴西Giudice住宅内部实景图
巴西Giudice住宅内部实景图
巴西Giudice住宅内部实景图
巴西Giudice住宅内部实景图
巴西Giudice住宅内部实景图
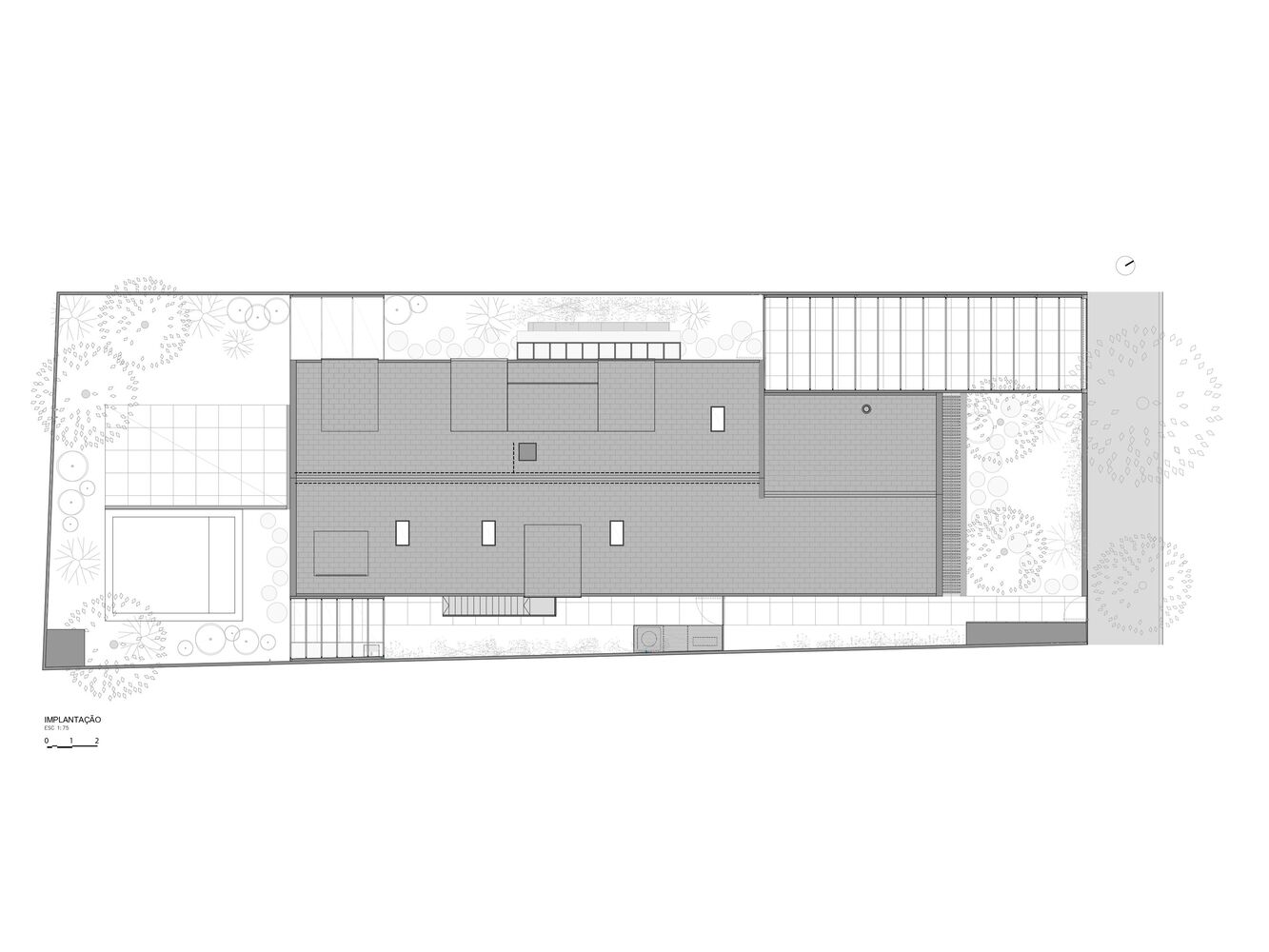
巴西Giudice住宅平面图
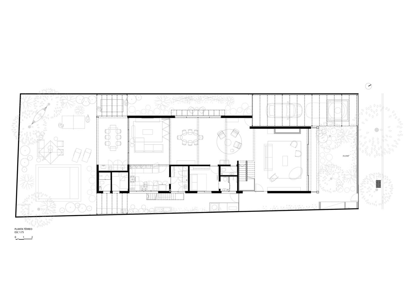
巴西Giudice住宅平面图
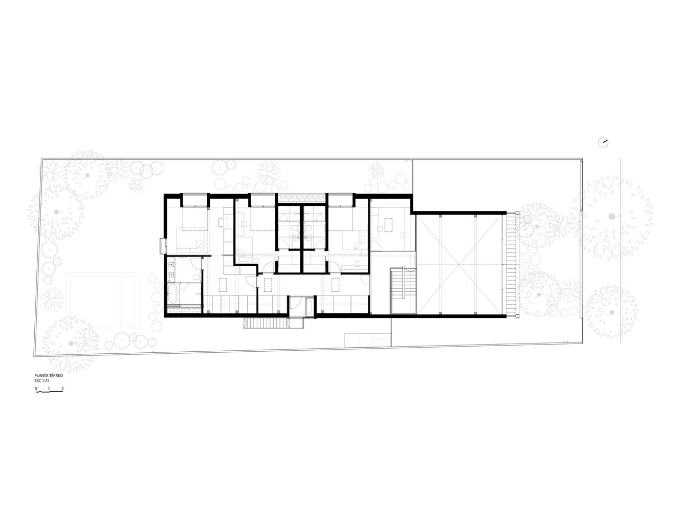
巴西Giudice住宅平面图
巴西Giudice住宅剖面图
巴西Giudice住宅剖面图
巴西Giudice住宅立面图
巴西Giudice住宅立面图
客服
消息
收藏
下载
最近
















