查看完整案例

收藏

下载
本案例是一套两居室户型,90年代砖混结构,很多墙体因为承重原因无法进行改动,因楼层处于一层,且距离上次房屋装修时间较长,整体房屋处于昏暗,潮湿,逼囧的环境,经过屋主的决断,决定还是重新装修设计,在朋友的推荐下,最后由我们来帮屋主实现心里的避风港
房屋是屋主,屋主父亲,和屋主舅舅三口人居住,虽然居住人口不是很多,但依据关系所定每个人都需要一个独立的卧室空间,且两位老人因身体不便需要在后面设计中考虑一定的便利性,包括整体氛围上,要以:自然,舒适,整洁为主,避免华而不实的设计
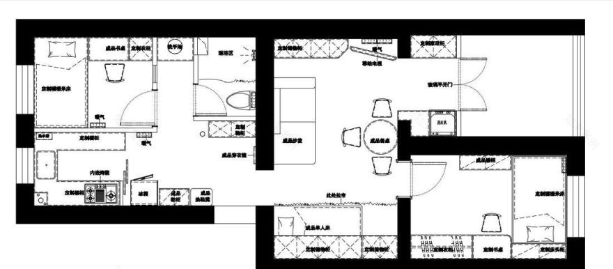
原始户型是一套两居室格局,整个房屋结构分区比较规整,通过理清结构情况屋主对于平面格局有以下几点想法:
一、在大格局上需要三个卧室空间,客餐厅功能也要保留,同时要设计出电视机的空间
二、进门处要设计鞋柜和换鞋凳,满足日常功能需求
三、餐厅要满足多人用餐需求且需要餐边柜来放置西式电器位置
四、厨房不要纯开放式,需要考虑油烟问题,但也要考虑实用便利性
五、需要解决入户门对着卫生间门的问题,且需要老人进出卫生间要便利
六、整体设计需要大量的储物功能来满足日常的收纳和功能需求
七、设计中需考虑猫咪的活动需求和护理需求
八、整体喜欢自然放松的感觉,需要温暖舒适的氛围,避免华而不实的装饰和设计
原始户型是一套两居室格局,整个房屋结构分区比较规整,通过理清结构情况屋主对于平面格局有以下几点想法:
一、在大格局上需要三个卧室空间,客餐厅功能也要保留,同时要设计出电视机的空间
二、进门处要设计鞋柜和换鞋凳,满足日常功能需求
三、餐厅要满足多人用餐需求且需要餐边柜来放置西式电器位置
四、厨房不要纯开放式,需要考虑油烟问题,但也要考虑实用便利性
五、需要解决入户门对着卫生间门的问题,且需要老人进出卫生间要便利
六、整体设计需要大量的储物功能来满足日常的收纳和功能需求
七、设计中需考虑猫咪的活动需求和护理需求
八、整体喜欢自然放松的感觉,需要温暖舒适的氛围,避免华而不实的装饰和设计
针对原始结构户型和屋主的想法,最终平面做了如下改动:
一、在保留两个卧室的空间前提下,在原有客厅位置新增加卧室空间,满足居住需求
同时采用可移动式电视,保证功能的情况下增加便利性
二、进门处转角一侧增加卡座,鞋柜,同时通过设计改变卫生间门的方向和布局,也增加了一组储物鞋柜满足收纳
三、餐厅设计多功能圆桌,以折叠的形式实现多人用餐,在电视旁边设计餐边柜,即可补充收纳需求也可实现放置电器的功能
四、通过缩小老人房的空间,使得厨房面积增大,采用隐藏式三推拉玻璃门的形式,解决厨房油烟问题
五、重新规划卫生间的格局和面积,改变卫生间方向,避免直对入户门的风水问题,又可实现和老人房之间的互通,增加便利性
六、在各个卧室和客厅设计必备的储物空间外,把露台一分为二,一部分设计洗衣机柜和收纳柜,一部分预留给猫咪的日常护理空间
客厅装修前后对比图
原始客厅功能不足,家里人员只能在客厅沙发作为休息区,隐私性和安全性得不到保证,设计后的客厅重新划分空间,利用客厅凹角实现独立的卧室休息空间,功能划分明确
主卧室前后装修对比图
原始主卧室功能凌乱,收纳不足,设计后的空间化整为零,增加展示空间及收纳利用率
厨房装修前后对比图
原始厨房面积有限,只能实现L型橱柜,利用空间不足,设计后的厨房空间扩大面积,实现U型橱柜,增加可利用空间和收纳空间
入户对面定制一组鞋柜来增加收纳,因卫生间改造的前提,外漏排污管则用麻绳包裹制作成猫爬架,同时在鞋柜上方设计猫跑道和休闲区,不但避免鞋柜带来的拥挤感又能增加猫咪的舒适性
入户对面定制一组鞋柜来增加收纳,因卫生间改造的前提,外漏排污管则用麻绳包裹制作成猫爬架,同时在鞋柜上方设计猫跑道和休闲区,不但避免鞋柜带来的拥挤感又能增加猫咪的舒适性
屋主不想镜子外漏,所以在鞋柜墙面的一侧设计可推拉式穿衣镜,用时拉出,不用时隐藏,表面洞洞板结构也可以挂一些小物件
因老人想法和使用需求,无法接受开放式厨房,所以在设计中采用玻璃三联动推拉门的方式实现空间的开合
厨房空间外扩,在保证中间过道充裕的前提下,设计U型橱柜,合理利用每寸空间,增加收纳空间和操作空间
卫生间和老人房重新规划设计,改变门口方向,缩短老人房和卫生间的距离,同时洗手池干区则设计在了两个门口中间,增加便利性,也可解决卫生间门对着入户门的风水问题
缩小后的老人房,虽面积缩小,但老人所需要的睡眠区,练书法的书桌和衣柜收纳一应俱全,同时在和干区的墙体中通过磨砂玻璃半透的设计,让老人房避免面积缩小所带来的压抑感,也和外面有个照应
缩小后的老人房,虽面积缩小,但老人所需要的睡眠区,练书法的书桌和衣柜收纳一应俱全,同时在和干区的墙体中通过磨砂玻璃半透的设计,让老人房避免面积缩小所带来的压抑感,也和外面有个照应
卫生间湿区以简洁方便为主,以浴帘代替淋浴隔断,减少磕碰的同时也能避免地面潮湿带来的不安全性
客餐厅因承重关系,面积有限,设计可折叠餐桌来满足屋主多人用餐的需求,利用移动电视的便利性设计了一组餐边收纳柜,即可作为书柜收纳使用,台面也可放置电器方便使用
沙发背景墙定制猫跑道,避免占用地面面积,同时在墙体上打了猫洞,可以和门厅鞋柜上方的猫跑道及猫爬架形成了互通,增加猫咪的玩耍空间
猫咪从猫洞里钻出来玩耍
利用客厅的凹空间,重新划分出了舅舅卧室,以软帘的形式增加隐私性,避免硬隔断带来的空间分碎感和压抑感
从阳台看向客厅空间,原有露台被一分为二,一部分设计洗衣机区和收纳区,补充室内的收纳空间,另外一部分则留为猫咪的护理空间及晾晒空间
从阳台看向客厅空间,原有露台被一分为二,一部分设计洗衣机区和收纳区,补充室内的收纳空间,另外一部分则留为猫咪的护理空间及晾晒空间
屋主为了增加猫咪的舒适性,在客厅及门厅的猫跑道和猫爬架外,还在露台和室内收纳柜之间预留猫洞,平时也可以作为一个猫咪休息区,简直不要太幸福
主卧室整通过浅粉色墙面,乳黄色的棉麻床品及带有弧度的米黄开放柜形成柔美,温润的氛围感觉,也完全贴应屋主的性格,设计开放柜和床头上方的隔板来展示屋主丰富的书籍和摆件
书桌及上方吊柜靠近床头一侧都以弧度收口,避免直角的锐利感产生心理上的不适,书桌旁边则是三开门收纳衣柜,收纳力翻倍
客服
消息
收藏
下载
最近


























