查看完整案例

收藏

下载
项目名称:哥斯达黎加Loma Sagrada住宅
位置:哥斯达黎加
建筑师: 萨拉格纳克·阿奎特科斯
Loma Sagrada House从一个牲畜蹂躏的土地转变为一个再生建筑项目。这一举措独特地改善了土地,与通常损害环境的典型建筑工地形成鲜明对比。施工使用最少的土方移动和桩工程保持了土壤的完整性,使建筑物周围能够快速自然再生。该项目由几个生态友好型建筑组成,主楼位于南部山坡上,免受夏季寒风的侵袭。受保护一侧的小气候,植被丰富,自然地调节了建筑的内部温度。该设计利用了35度的斜坡,形成了一个三角形结构,以其100%的木质结构最大限度地减少了对地基的影响并提高了效率。在山顶,公共区域提供全景景观和房屋设施,如游泳池、瑜伽室和小厨房,所有这些都遵循主建筑的木质模块化设计。
景观与永久农业区和吸引野生动物的植物融合在一起,体现了与自然的完美融合。该项目主要使用人工林木材(超过95%),减少二氧化碳排放并支持哥斯达黎加的环境目标。这种建筑方式既环保又有益于人类健康,避免了电磁辐射,营造了舒适的氛围。天然石材用于易潮湿地区,对工业材料的依赖最小。创新包括自然通风、太阳能保护、用于电磁屏蔽的先进布线、无闪烁照明、水再利用、太阳能系统以及可供人类使用的安全净水和不含化学物质的游泳池。洛马·萨格拉达是可持续发展的见证,将环境保护与人类福祉相协调。它展示了建筑如何积极融入并改善自然环境。
哥斯达黎加Loma Sagrada住宅外部实景图
哥斯达黎加Loma Sagrada住宅外部实景图
哥斯达黎加Loma Sagrada住宅外部实景图
哥斯达黎加Loma Sagrada住宅外部实景图
哥斯达黎加Loma Sagrada住宅外部实景图
哥斯达黎加Loma Sagrada住宅外部实景图
哥斯达黎加Loma Sagrada住宅外部实景图
哥斯达黎加Loma Sagrada住宅外部实景图
哥斯达黎加Loma Sagrada住宅外部实景图
哥斯达黎加Loma Sagrada住宅外部实景图
哥斯达黎加Loma Sagrada住宅外部实景图
哥斯达黎加Loma Sagrada住宅外部实景图
哥斯达黎加Loma Sagrada住宅外部实景图
哥斯达黎加Loma Sagrada住宅局部实景图
哥斯达黎加Loma Sagrada住宅外部实景图
哥斯达黎加Loma Sagrada住宅内部实景图
哥斯达黎加Loma Sagrada住宅内部实景图
哥斯达黎加Loma Sagrada住宅内部实景图
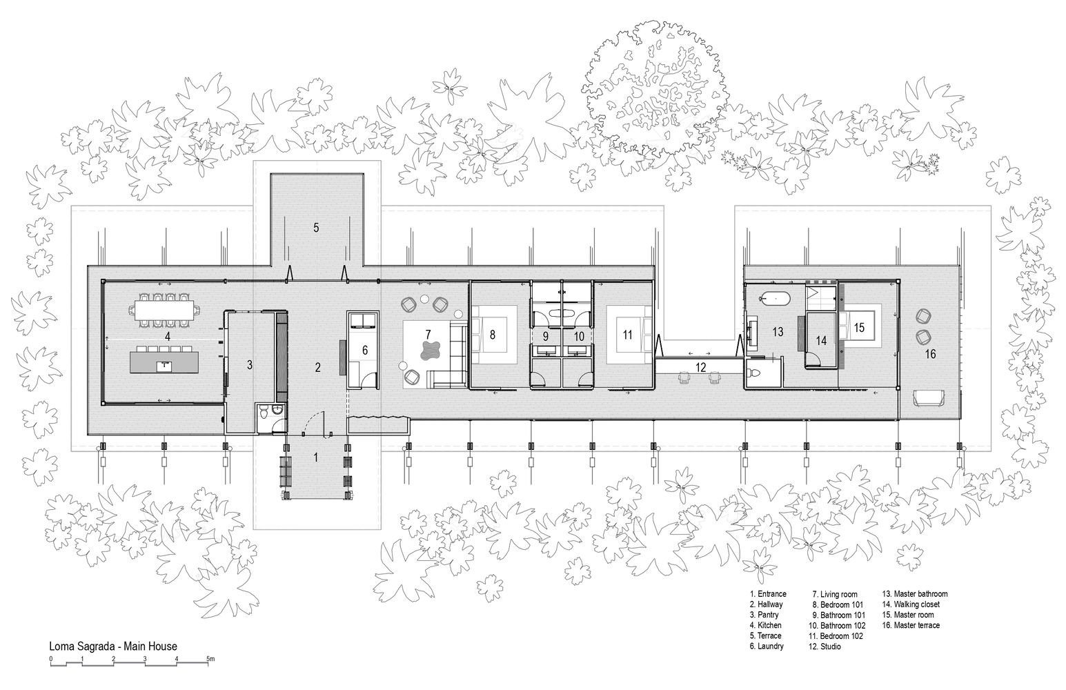
哥斯达黎加Loma Sagrada住宅平面图
哥斯达黎加Loma Sagrada住宅平面图
哥斯达黎加Loma Sagrada住宅剖面图
客服
消息
收藏
下载
最近
























