查看完整案例

收藏

下载
项目名称:荷兰哈伦的住宅楼
位置:荷兰
设计公司:马克·普罗斯曼建筑师事务所
2005年设计了一栋住宅楼哈伦,格罗宁根。该设计包括七套宽敞的公寓、一家商店和一个地下停车场。该建筑位于购物街的起点,在教堂和墓地之间,周围是小型建筑。新建筑需要与周围环境巧妙融合。基于对环境和客户需求的分析,设计了一种形式,在体量和物质化方面与邻近建筑、绿色环境和分区计划相协调。外部采用了格罗宁根当地的砖块,以其非常容易识别的暖红色而闻名,形成了一个与众不同的立面。在与相邻窗户对齐的精心布置的窗户上方装饰有优雅的顶盖层。通过后退和微妙的砖块覆盖,窗框丰富了立面,通过阴影关节的运动增加了深度。
精确的设计无缝地将建筑融入城市环境,提供了一个与邻近结构牢固视觉连接的特色身份。顶盖层微妙而富有冲击力的建筑细节增强了立面的整体视觉吸引力。砖的暖色与墓地的寒冷形成了对比。该设计的特点是其雕塑形式,平衡了小规模和可管理的特点。分区规划指定了一个外壳,允许三个住宅楼层,在街道一侧有一个屋顶扩建部分,在后面有一个较低的楼层。公寓的面积从116平方米到248平方米不等,提供了多样化的生活空间。通过有意避免增加多个隆起的屋顶体积,最终体积符合这些参数。这种方法也为未来的居民创造了优质的户外空间。
荷兰哈伦的住宅楼外部实景图
荷兰哈伦的住宅楼外部实景图
荷兰哈伦的住宅楼外部实景图
荷兰哈伦的住宅楼外部实景图
荷兰哈伦的住宅楼外部实景图
荷兰哈伦的住宅楼外部实景图
荷兰哈伦的住宅楼外部实景图
荷兰哈伦的住宅楼外部实景图
荷兰哈伦的住宅楼外部实景图
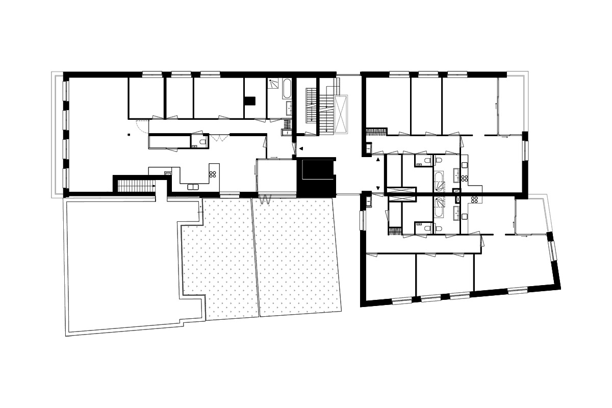
荷兰哈伦的住宅楼平面图
荷兰哈伦的住宅楼平面图
客服
消息
收藏
下载
最近














