查看完整案例

收藏

下载

翻译
Architect:Yohei Kawashima architects inc.
Location:Miyako Islands, Okinawa, Japan; | ;View Map
Project Year:2021
Category:Shops;Parks/Gardens;Hospitals
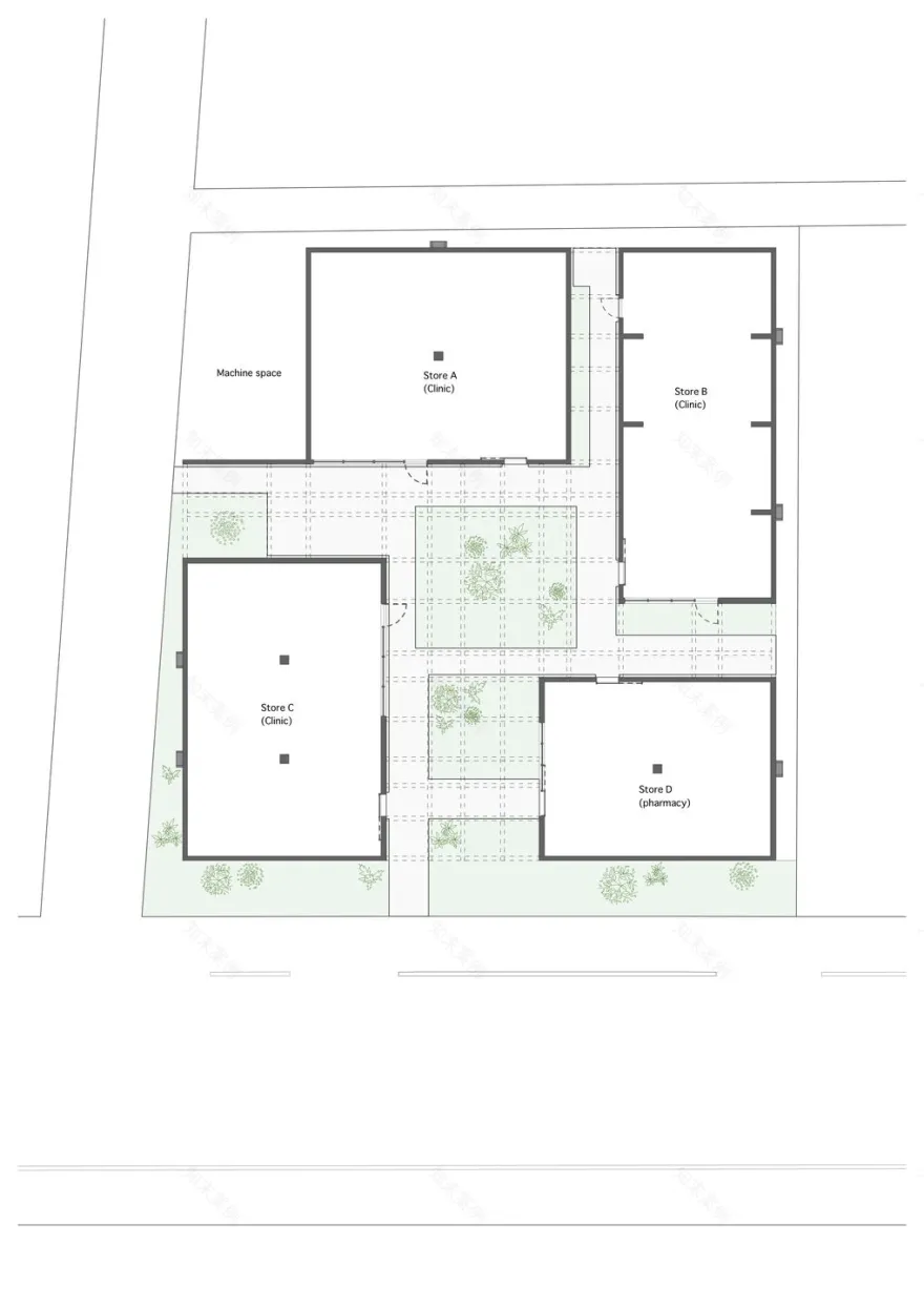
This plan was designed for an area for 4 stores-tenant that is supposed to medical facility in Miyakojima City, Okinawa. As the building area of each stores had been decided already, we’ve worked more focused on how to plan the exterior.
To provide comfortable courtyard space, we’ve adopted dispersing arrangement/spacious arrangement. This idea has 2 advantages. Firstly, it allows air to pass through from various directions. Secondly, it provides spacious perspectives. In addition, we’ve connected each building with pergola-liked concrete structure. As these spaces with such a pergola-liked structure located in the center of this building area, users can approach each store through such an open and comfortable shaded corridors.
The pergola-liked structure has such a strong role to create clear contrast with light and shadow in the courtyard and the corridor. And when the pergola illuminated by the sun light, it becomes a fairly luminous ceiling with the natural light. The pergola translates and show us delicate transition of natural light from dusk till dawn.
The structure is really simple. And this simplicity makes it possible to remind us the breath of the sky through the shadow of pergola and to feel subtle change of the day light. We aimed to design this project so that users can catch various city views under this variated light through the courtyard and notice the rhythm of time from the transition of light through the day.
▼项目更多图片
客服
消息
收藏
下载
最近






















