查看完整案例

收藏

下载
项目名称:越南TT住宅
位置:越南
设计公司:PsA建筑
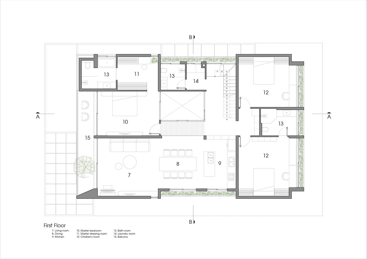
房主需要建造一栋可以用作办公室的房子。因此,PsA建筑公司选择了一种具有极简室内风格的现代设计,以创建一个既适合工作又适合家庭成员休息和放松的TT住宅。TT之家坐落在一个新的住宅区岘港,越南。这个地区基础设施齐全,建筑密度适中,环境幽静,离汉江也不远。房子建筑面积168m2,是一家四口的家和办公室。凭借315平方米的宽敞地块的优势,建筑师团队在所有四面,尤其是前院和后院,创造了一个倒退,以增加TT大厦的阳光和通风效率。此外,绿树成荫的走廊和花园也有助于净化空气,给家庭带来宁静和舒适的感觉。TT大厦有三层结构,一楼是办公室,二楼和三楼是家庭生活空间。TT屋的结构由简单的几何线条创造,强调比例而不是细节,创造了和谐的过渡和自然清爽的灯光效果。
为了使生活空间更加明亮和亲切,建筑师团队使用了极简主义和统一的材料,对比白色的墙壁和天然木材家具。由于这种精致的设计,TT大厦的整体内部有一种稳定和稳定的感觉,但同样令人印象深刻。TT大厦内所有的家庭活动和办公室工作都围绕着内部庭院,庭院中央有一个天窗、一个池塘和绿色植物。内院是连接主要空间的轴线,这样所有家庭成员都可以看到彼此并相互交谈,从而增加亲密度和联系。内院也是室内外两种氛围相互作用的场所,一个直接接触自然的地方,可以凉爽炎热的夏季或者减少冬季寒风的寒冷。总之,TT之家是生活空间和工作区域之间的和谐作品,既带来了工作效率,又不消除粘合功能,为家庭活动创造了舒适和便利。
越南TT住宅外部实景图
越南TT住宅外部实景图
越南TT住宅局部实景图
越南TT住宅内部实景图
越南TT住宅内部实景图
越南TT住宅内部实景图
越南TT住宅内部实景图
越南TT住宅内部实景图
越南TT住宅内部实景图
越南TT住宅内部实景图
越南TT住宅内部实景图
越南TT住宅内部实景图
越南TT住宅内部实景图
越南TT住宅内部实景图
越南TT住宅内部实景图
越南TT住宅内部实景图
越南TT住宅平面图
越南TT住宅平面图
越南TT住宅平面图
越南TT住宅平面图
越南TT住宅剖面图
越南TT住宅剖面图
客服
消息
收藏
下载
最近

























