查看完整案例

收藏

下载
项目名称:希腊偏僻的房子
位置:希腊
设计公司:KLab建筑
我们的想法是在金属结构上垂直建造3栋独立的房子(别墅)。一栋房子最重要的特点是它是独立的,与邻近的建筑或邻居有一段距离钕花园里有柔软的、绿色的和坚硬的地板。这两者是我们希望我们的建筑给人的感觉的创造性驱动力。我们尽量减少与隔壁公寓相连的空间,以减少房主之间任何可能的干扰。我们通过每次插入一个小的中间楼层来处理这个问题,这样就产生了一个空的空间,特别是与中庭结合在一起。这个空白的空间被花园和室外的覆盖区域所占据。在某种程度上,建筑部分等于甚至少于室外空间,有盖和无盖,这对于公寓建筑来说是很新的东西。这座建筑在体积上产生了戏剧性的切口,因为金属结构允许我们在轻金属柱的顶部创造出大的悬臂表面。中庭和水池的体积强调了这种近乎雕塑般的体积缩减,从而创造了所有这些有盖花园。建筑法规的最新变化,以及我们测试并引入到设计中的新技术,还有对新的、更可持续的居住环境的需求,让我们得以完成我们的设计和居住实验,并建造了这座典型的(至少目前如此)公寓建筑。
希腊偏僻的房子外部实景图
希腊偏僻的房子外部实景图
希腊偏僻的房子外部实景图
希腊偏僻的房子外部实景图
希腊偏僻的房子外部实景图
希腊偏僻的房子外部实景图
希腊偏僻的房子外部实景图
希腊偏僻的房子内部实景图
希腊偏僻的房子内部实景图
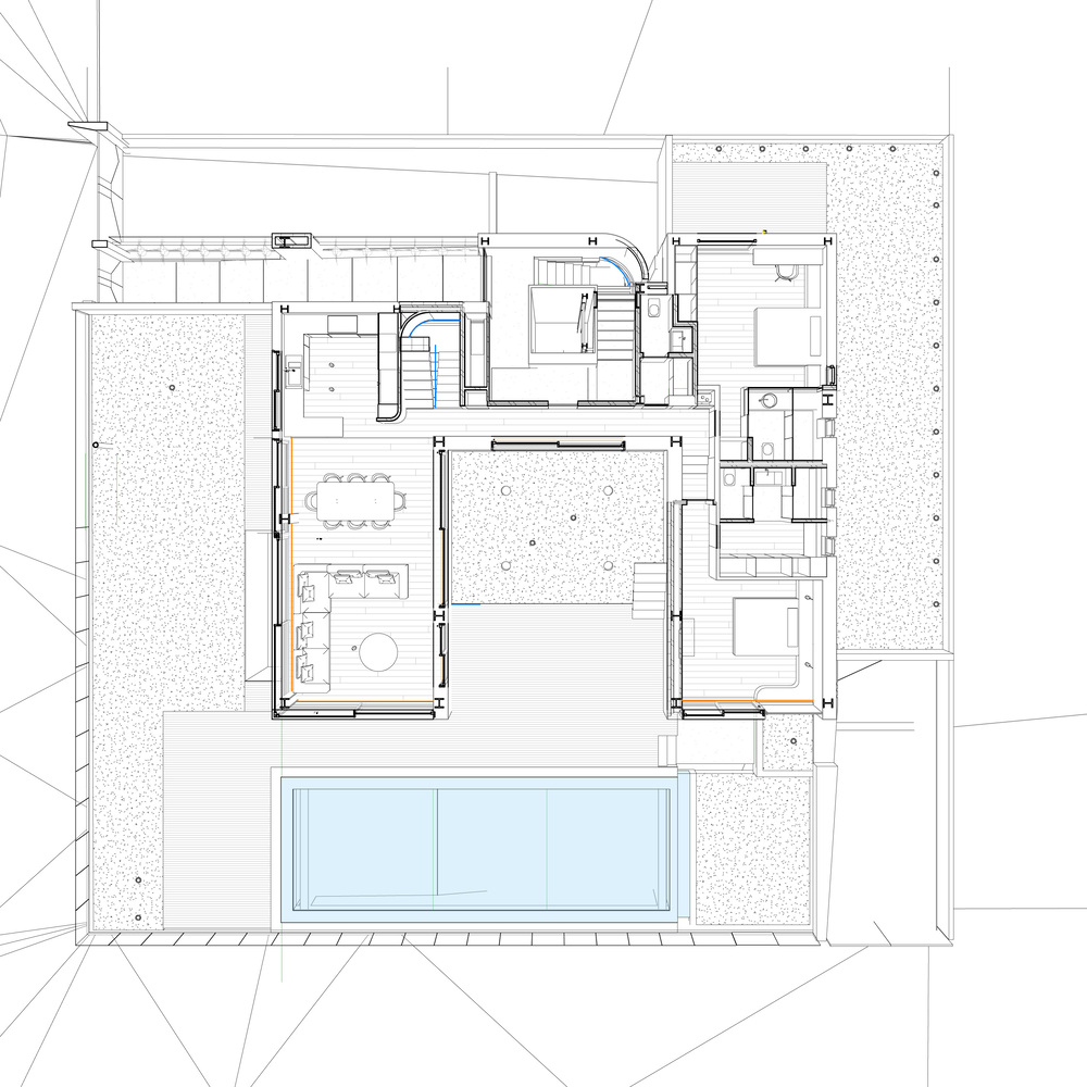
希腊偏僻的房子平面图
希腊偏僻的房子剖面图
客服
消息
收藏
下载
最近














