查看完整案例

收藏

下载
项目名称:荷兰wij_land住房
位置:荷兰
建筑师: 空间与物质
Wij_land是一个开创性的自建集体,渴望在一个由不同居民组成的紧密团结的社区中更可持续地生活。发起人米蕾尤和丹尼尔不遗余力地将他们的愿景变为现实。他们向《空间与物质》和《共同的城市》寻求设计和过程指导的专业知识,旨在聚集一群自称为“务实的理想主义者”的人,引导他们实现梦想中的家园。结果是在Centrumeiland的水边建造了一个适应气候的住宅建筑,阿姆斯特丹,有26个不同的住宅和5个公共空间。“我们希望以一种不那么个人主义的方式生活,希望彼此分享更多。不是在你自己的家里拥有所有可用的东西,而是拥有每个人都可以使用的共享空间。连接居民和社区的建筑。我们称之为社会可持续性。”该建筑的理念融入了分享、多样性和可持续性这三个基本原则。居民们尽可能地分享,比如工具、汽车、食物、猫护理和公共空间。分享有助于可持续发展,并将居民彼此联系在一起。
这座建筑收集雨水来浇灌植物。这些住宅不使用天然气,从中央地下热交换器和太阳能电池板中获取能源和热水。此外,该建筑主要由低维护和耐用的材料组成。“作为一个自建集体,你可以投资于对你作为居民来说重要的东西。这是一个非营利性的开发项目,这意味着有更多的钱用于高质量的材料和公共空间。”居民的多样性是集团的另一个重要原则。居住在wij_land的人必须是老少、大小家庭都可以进入的,不管他们有没有自己的钱或资产。为了实现这一目标,建造了不同大小的房屋,从52平方米到130平方米不等。通过共享,居民可以清理杂物,而不需要在自己的家中拥有所有可用的东西。这使得初学者和中等收入者有可能购买公寓。成员们设法组成了一个多样化的社区,包括不同国籍、背景、家庭组成和雇佣关系的人。
wij_land的多元构成导致了一个学会相互理解的坎坷过程,产生了一个奇妙的迷你社会。在一系列的八个工作坊中,《空间与物质》和《共同的城市》与wij_land的未来居民讨论了抱负、类型、循环和可持续性。在共同创作中,设计了一种独特的同居形式,在隐私和集体之间取得了恰当的平衡。后方凉亭中宽敞的阳台上的流通旨在鼓励非正式的接触,而宽敞的公共空间则充满了热闹的聚会。居民可以选择各种类型的住房,如花园公寓、全景公寓或生活工作工作室,以适应组成wij_land的不同家庭。居民们对窗框的尺寸、铝立面上的粗或细的脊、阳台上的花盆以及平面图的布局进行了个性化的表达。这导致了像居民本身一样多种多样的住宅。
荷兰wij_land住房外部实景图
荷兰wij_land住房外部实景图
荷兰wij_land住房外部实景图
荷兰wij_land住房外部实景图
荷兰wij_land住房外部实景图
荷兰wij_land住房内部实景图
荷兰wij_land住房内部实景图
荷兰wij_land住房内部实景图
荷兰wij_land住房内部实景图
荷兰wij_land住房内部实景图
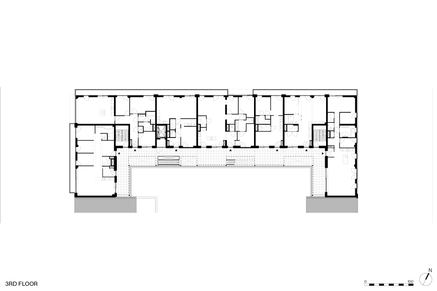
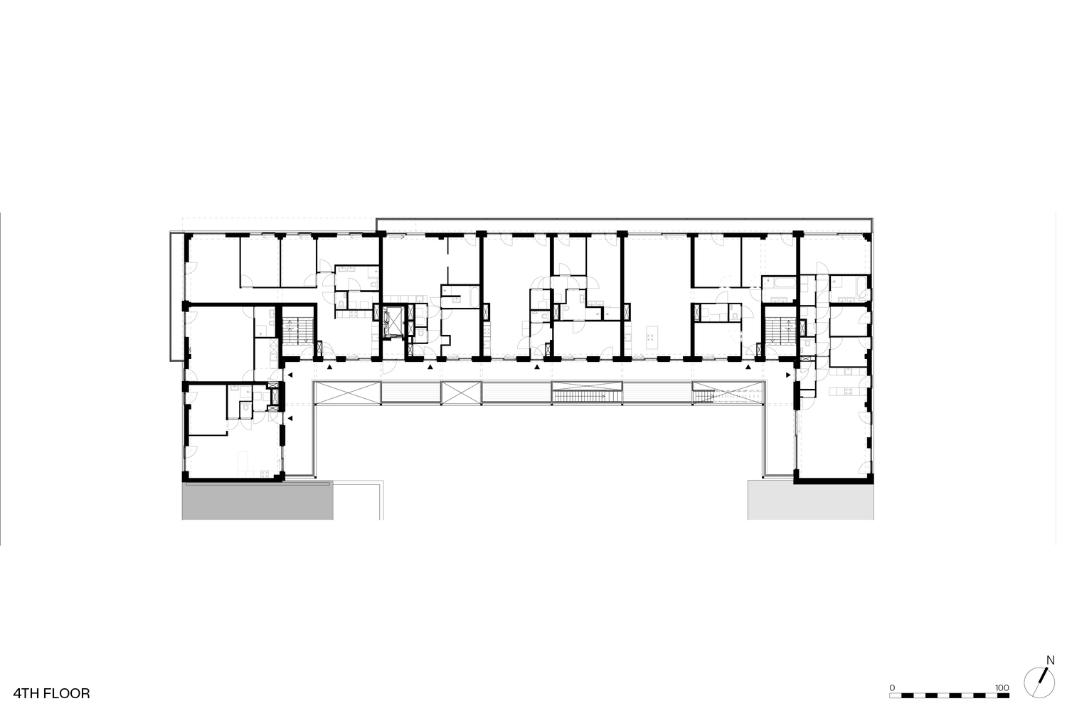
荷兰wij_land住房平面图
荷兰wij_land住房平面图
荷兰wij_land住房平面图
荷兰wij_land住房平面图
荷兰wij_land住房平面图
荷兰wij_land住房平面图
荷兰wij_land住房平面图
荷兰wij_land住房剖面图
荷兰wij_land住房剖面图
客服
消息
收藏
下载
最近






















