查看完整案例

收藏

下载
项目名称:土耳其泽内尔住宅楼
位置:土耳其
设计公司:艾塔茨建筑师事务所
泽内尔是一栋14层的住宅楼,位于安大略省埃伦柯伊市的高档住宅区伊斯坦布尔在亚洲的一边。它靠近充满活力的badat大道,从东到西大约14公里,几乎与马尔马拉海海岸线平行。与旧伊斯坦布尔不同,这个相对较新的街区有一个由巴达特大道东西轴线形成的网格模式。基地的地平面遵循“badat网格”,因此它与大道平行,而建筑的天空平面则旋转面向王子群岛,这是马尔马拉海岸以南10公里的一个群岛。建筑从上到下都在这两种力量之间扭转,badat网格和王子群岛的景色,创造了一个结晶的熔融岩石的效果。传统上,建筑物有一个与古典柱相关的三方组织。底座、轴和顶部。在这里,反射池和天空作为隐藏虚拟基地和虚拟资本的元素。这种中间状态放大了由扭力引发的从顶部到底部的转变。分离的轴看起来就像一块岩石,外表粗糙、饱经风霜,但内部却闪闪发光、熠熠生辉。这创造了一个时间的二元性,其中古老和新是并列的。
土耳其泽内尔住宅楼外部实景图
土耳其泽内尔住宅楼外部实景图
土耳其泽内尔住宅楼外部实景图
土耳其泽内尔住宅楼外部实景图
土耳其泽内尔住宅楼内部实景图
土耳其泽内尔住宅楼内部实景图
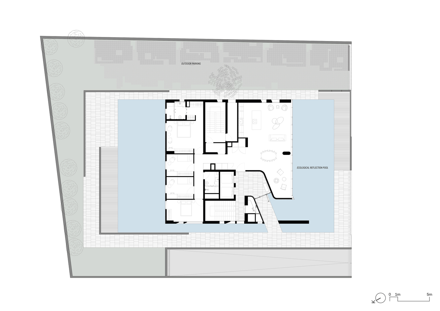
土耳其泽内尔住宅楼平面图
土耳其泽内尔住宅楼平面图
土耳其泽内尔住宅楼剖面图
客服
消息
收藏
下载
最近












