查看完整案例

收藏

下载
光盒子
【项目名称】:保利远洋领秀山生活艺术馆
【项目业主】:保利湾区发展有限公司-中山公司、远洋集团
【项目地点】:广东中山
【室内设计】: 广州共生形态工程设计有限公司
【设计总监】:彭征
【主案设计】:张博、陈泳夏
【设计团】队:杨亚会、张权、许秋怡、朱云锋、朱国光
【设计时间】:2017年05月
【竣工时间】:2018年09月
【设计面积】:1090 M2
【主要材料】:水泥板、水磨石地面、渐变玻璃、氟碳漆铝板、亚克力
“羚羊挂角,无迹可求。透彻玲珑,不可凑拍。举个例子,齐高帝请陶弘景出山,陶氏以诗作答:山中何所有?岭上多白云。只堪自愉悦,不堪持赠君。既是境界。”
全生命周期人居体验馆
▽
保利远洋领秀山项目针对的客户,多是“囊有钱,仓有粟”,看惯了繁华纷扰,愿为两日山中宰相,图个清净逍遥的心智成熟,胸怀已经豁达的人士。
设计师注意到业主方的这一特点,而将设计之眼落在陶弘景这首著名的问答诗上,试图在空间中用设计的方式可以于联想的层面表达相似的意境。
“境”有“有我”“无我”之分。国维讲有我之境,以我观物,故物皆著我之色彩;无我之境,以物观物,故不知何者为我,何者为物。境由物生,由人擘画。设计师在考虑该项目的调性时,便在“有我”“无我”间寻找灵感,思索表现的形式。
若比邻展区
▽
空间的大体色调最终确定为黑白。不过与司空见惯,以黑白显“酷”的思路毫无沾染。而是意念上取“天地乾坤”,表现层面取“白纸濡墨”。因此在呈现的姿态上,并不作富视觉冲击力的切割,不刺激眼球,而是将空间呈山水手卷般舒缓的逐次展开。
从室内空间关系的层面,白是一个基础,是规矩;黑是变化身形、恣意流动或瞬尔驻足,不逾矩的姿态。两者所呈现的形式,于音乐的层面,构建出带有即兴撩弦,音能动人的意味。中国的雅乐,琴为大音,大音希声。希声者,正在有无之间。富象征意义的黑白通过大幅度玻璃与户外的环境达成衔接,视觉引导心境,在“虚实”、“有无”间轻盈穿越。
休闲区
▽
设计师在建立起室内空间的秩序,并将之与户外做横向衔接的同时,还需要建立一个垂直意义(天与地)的联系,才能达到审美趣味的相对完整。“我心匪石,不可转也”,出于《诗经·柏舟》。
石头在中国人心里的状态,经过几千年时间的淘洗,慢慢发生着变化。掌控中国传统审美话语权的传统文人,逐渐将石头放到可以审美的角度,石头的体量、形态以及表达的气质都悄然而变。在环境审美中,视石为云之根脉而成造园置景的必需。此一特征肇现于宋,盛于明清,流传至今。
文人则因循所处及所授受而逐渐建立审美取向并形成一个哲学体系。这一体系经千年的流变也成为一种美学范畴的遗传基因,因此,设计师在设计过程中将置石视为表达天地关系最恰当的方式——既完整了空间中需要的潜在意念,在视觉和触觉上又丰富了疏密,形成远观近玩,空而不虚的体验姿态。
接待区
▽
今日的室内设计,于儒释道中掇取元素而谓传统者,不可胜计。稍探文化中能生情动色于细微处,以心观物者,或难得一见。领秀山生活艺术馆项目的设计实施,是设计师在此一层面作出的一次相对有效的尝试性努力。
建筑外观
▽
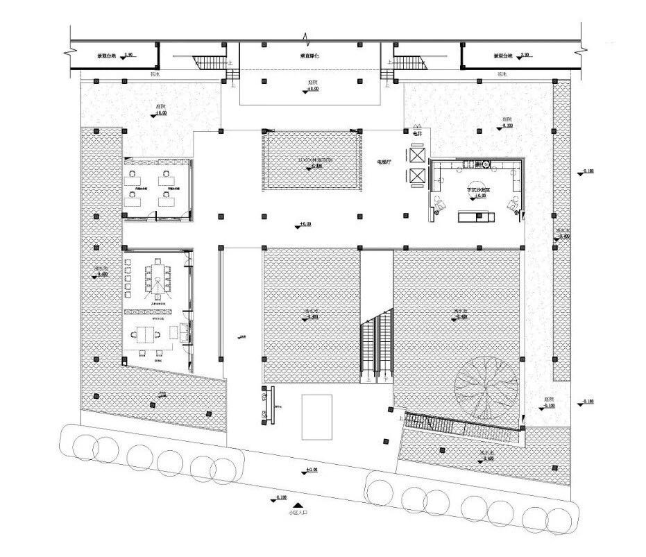
首层平面图
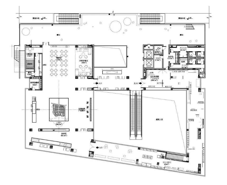
二层平面图
更多实景推荐:
万境设计:万科福州天空之境
乐尚设计 | 苏州上坤云栖麓售楼处
大研建筑设计 | 云麓世家-极上雅境
客服
消息
收藏
下载
最近

















































