查看完整案例

收藏

下载
【项目业主】宁波柯力电气制造有限公司
【设计时间】2010-2011
【施工时间】2011-2014
【设计团队】上海佚人营造建筑设计事务所
【项目结构】浙江高专建筑设计研究院有限公司
【占地面积】约1800平方米
【总建筑面积】约4500平方米
【结构形式】型钢混凝土
【主要建材】玻璃砖,混凝土,型钢,煤灰砖。
【项目摄影】刘晓光建筑摄影工作室。
本项目位于宁波江北工业园区柯力电气厂区入口处。原用地是入口庭院广场,总计约6000㎡,2010年公司决定在此兴建柯力博物馆
以展示柯力的产品系列以及企业对中国古代及近代衡器的收藏。
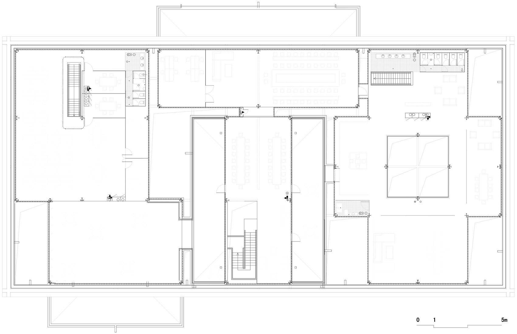
这个充满雄心的博物馆由地下一层的产品陈列馆,完全开放的一层花园及二三层的多功能空间构成。整个博物馆占地1800㎡,一层博物馆花园约4900㎡。
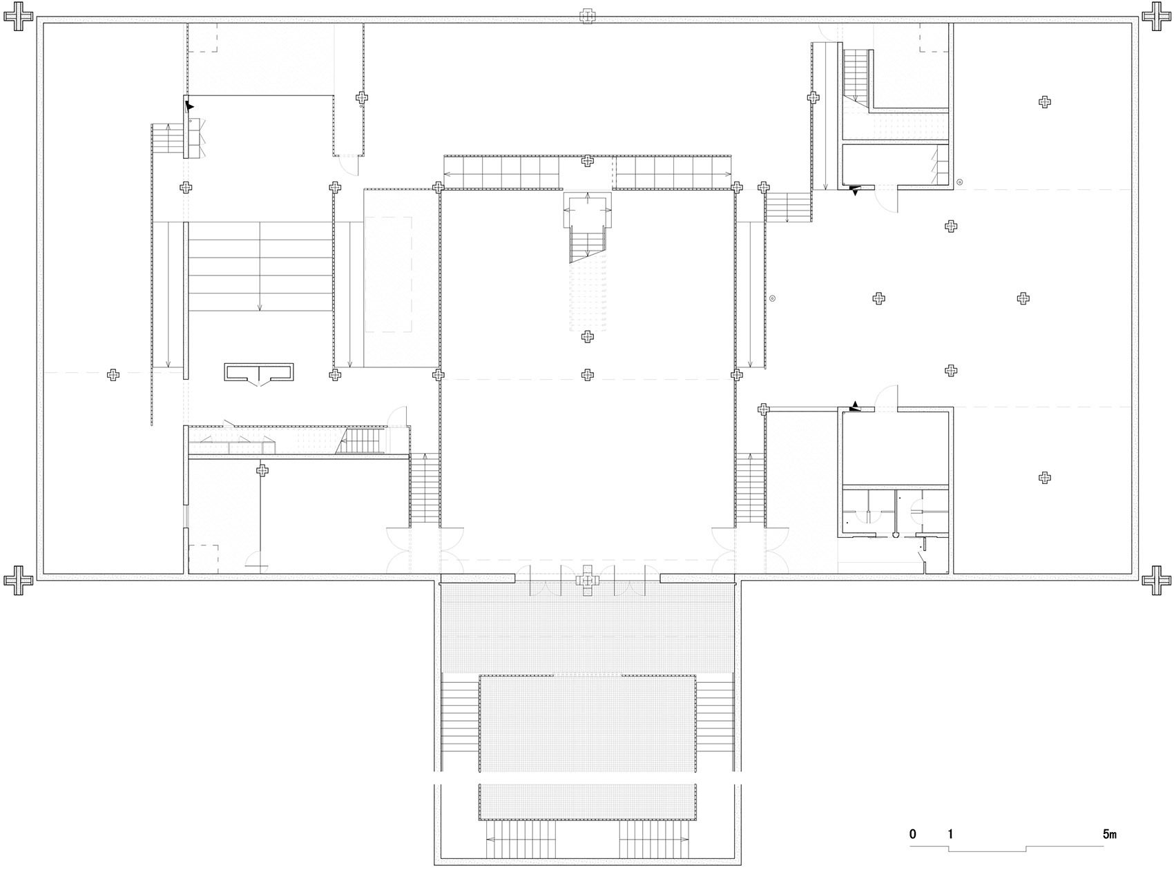
地下一层分五个展厅,出入口位于最北端的下沉广场,由二道直角楼梯缓慢引导而下,进入由高约3米玻璃砖广场,可仰视整个建筑。
第一展厅为二层通高的开放式展厅,连接漂浮的二层楼板。
围绕五个展厅设置了四个下沉庭院,种植了紫藤及竹子。
庭院周边布置大玻璃,作为地下室采光和通风的主装置。
一层的庭院采用了方格不规则路网,可以从厂区周围建筑自由穿梭出入,路面由露石混凝土浇注,在场地上满铺当地产的黑色小道渣石,形成松柔的辅助地面。
沿着路面在需要视线遮挡的地方砌筑了五六道高低错落的煤灰砖隔墙,作为未来紫藤伸张攀延的道具。
几条主径位于上空盒子和盒子天井之间,宽约1米。
这些主径贯通南北东西,在雨天形成一线天的雨线。
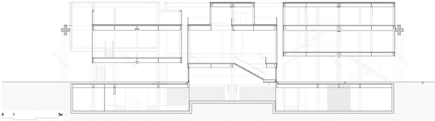
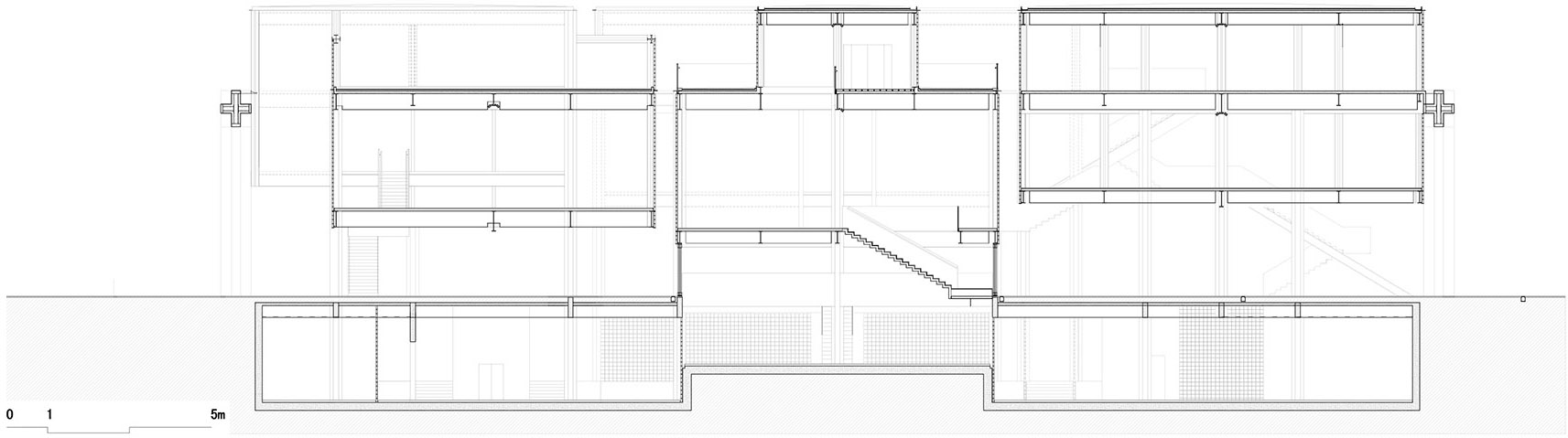
整个地面建筑由30米乘60米的巨型型钢混凝土框架举起。这个型钢混凝土框架形成整个建筑的特征和力量。
地面建筑由巨框内的五个高低不同的玻璃砖几何体组成,根据力学和视觉平衡布置在巨框内,三层标高约10米处的楼板是整个结构的刚性平层。
二层楼板转角柱从三层大梁处悬吊下来,承受了二层楼板的大部分重量。
这个非同寻常的受力体系从构思到建成历经磨难。
玻璃砖的非物质性与有力的混凝土框架形成的对比在现场充满了戏剧性。
更多实景推荐:
创盟国际 l 卜石新天地玉石博物馆
东方艺术 l 中国美院竹生活艺术展
国外案例 I 啤酒超市空间设计
客服
消息
收藏
下载
最近









































