查看完整案例

收藏

下载
项目位置 / 白幕画室
设计面积 / 300m²
装修花费 / 45w
白幕画室,整体架构分为上下两层,先根据不同的艺术种类和工作职能划分出部分开放、部分封闭的空间,再用统一的色调慢慢地烘托出舒适的氛围,让孩子喜欢待在这里,享受艺术创作的过程,空间亮点与细节有:
01:互通开放动线非常流畅,人可以自由地选择走哪条路,用什么方式互动。
02:温馨清爽铺设大面积的木饰面,有深有浅,层次感特别舒服;定制黑线框窗子,将外面的景色引入室内,显得清新灵动。
03:自然气息在恰当的位置点缀绿植,呼应室外的风景,让自然气息变得更浓烈。
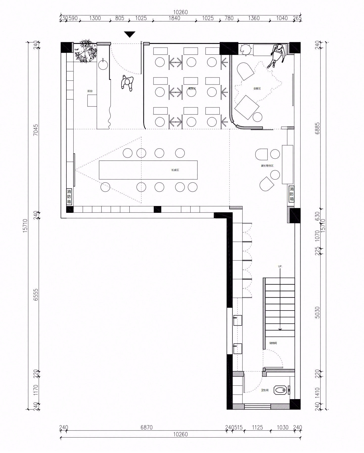
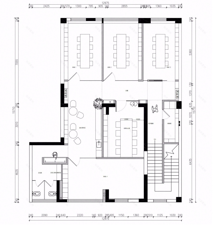
1F、2F布局
空间以木喻林,启发孩子感受自然、向自然学习。配色简单,主要是纯白色和木色,区域的过渡十分和谐,提供了自由交流艺术心得的机会。
1、首次见面,艺术情调拉满
啊?未来就在这里,跟达芬奇当年一样,画无数个鸡蛋。
整个白幕画室的设计,讲究开放性和温度的氛围表达,功能结构简单,但是能满足所有已知和潜在的需求。
通过深色与浅色的反差,凸显白幕画室的中英文标志,这里就是让艺术发芽的秘密基地!
2、场景丰富,用心去设计
“我14岁就能画的像拉斐尔一样好,之后我用一生去学习像小孩子一样画画。”——毕加索
从一楼入口进来,暖黄色调真的太温馨了,深木色的前台将场域气氛沉淀下来,让人感到安心,而且重色还有指示的作用,哪怕是第一次来的人也能快速找到前台在哪里,方便咨询。
建构玻璃砖隔断,bulingbuling的,美爆了,在背景墙上嵌入显示屏,宣传很到位,还可以当作沙龙的汇报屏使用。(ps:其实是个电视机~)
爱画画的孩子,会用眼镜去发现周围的美。
顶面保持原始的裸露状态,每次路过时看见,心情都舒畅了,将露出的消防管道刷上深红色,空间冷冰冰的工业感就没了。
下面搭配的长方形桌子和顶面产生了呼应,把这个地方的纵深感加强了。书架和多孔板集中在侧面,方便大家使用。
纯白底色显得空间好亮堂啊,能让绘画的人观察到真实的色彩,培养出好的色感。画架排成三排,利用率很高。
在这里,你可以去放空,去临摹,去幻想,去创作,打破条条框框,建造自己的画中世界。
五彩斑斓的色彩包围着我们,每一幅都是孩子用心创作的作品,展示了孩子无限的创造力和独特的视角。
在等孩子的时候坐下休息,看着孩子去绘制他们的世界和感受,对于家长而言,也是一种单纯的享受。
是时候在洽谈室聊聊,让孩子触摸艺术和创作艺术了~
从听到一句“妈妈我喜欢画画”或者“爸爸,画画真好玩”开始,去鼓励孩子勇敢表达自己的想法和情感吧。
想要了解或报名学习艺术的人可以在洽谈室跟老师聊聊,交流起来挺舒心的~墙上的画,像是在把室内场景和窗景联结起来,特别有趣。
往高处走,向深处探索,美的事物会与你共享喜悦的。
楼梯间融合了艺术画廊的展示方法,画框按照某种顺序向上延伸,对应阶梯,出现了和谐生动的韵律感。玻璃扶手除了保障安全之外,还为转折区营造透气感。
3、在绘画里找到属于自己的世界
串联的趣味、不变的配色、温和的灯光……原来在走廊里也能享受艺术。
现在来到二楼啦,跟水磨石很像的地砖冲淡了纯色块的枯燥感,使人走在走廊里一点拘谨感也没有。带雕饰的木元素把渐变磨砂玻璃包住,制造安静环境,同时也能随时沟通。
休息区+茶饮区,在这喝水、看书、发呆、玩手机都行~
不仅教孩子们如何画画,更重要的是教会他们如何用艺术的眼光看世界,如何用创造性的思维解决问题,如何用热爱的心拥抱生活。这个休息区要大一点,直接在柜体上放上软垫当作座位,显得规整。
“我梦想我的绘画和我的梦想一样活着。”——梵高
画室,就是这样一个让孩子们的梦想和绘画一起成长的地方。
二楼的教室比一楼的教室更有格调,墙被刷成淡黄色,衬托出暗红拱门形状的复古感。画架更轻盈,画石膏像时不容易被遮挡。
你是怎么理解绘画的呢?它是生活的延伸,是情感的抒发,更是个性的展现。
桌子放在中间,环形动线就自动形成了。教和学同步进行,用画笔说话,用色彩表达,用作品交流。不仅传授技巧,更激发兴趣,引导孩子们去发现生活中的美,去理解艺术的价值。
客服
消息
收藏
下载
最近





























