查看完整案例

收藏

下载
设计以魔方的空间体系作为设计理念,以“多变·趣味·共融”等关键词展开。
空间以匠杺社的品牌理念为基调,在外在形体表达之外,更融入文化与艺术态度彰显的内在精神,木以千万种姿态被重新唤醒……
匠杺社,以木为作,不止于此。起于木,精于木,是空间设计和品牌内核契合的交叉点。
不同于传统木作工坊,新潮的理念,前沿的技术,现代的玩法,让它的气质里更多是“现代”,“潮流”,与“艺术”的底色。“木作潮玩DIY新零售+儿童文化娱乐+当代木工文创”的多元化模式,建立起木与普通人的链接,一面导向轻木工手作产业链体验,一面深化为木的文化体系。
01ART木 艺术
对于匠杺社这一空间来说,空间既是木头的世界,更是创造者主体气质和内核的对外彰显。对商业的助力,和品牌文化的双向赋能,被设计师锚定为更具艺术化的写意语境。
展窗,LOGO,入口与通道平铺讲述,如同故事的序章,第一眼便可捕捉到综述印象。
魔方与几何争奇斗艳,色彩与材质各展其才,犹如蒙德里安格子的抽象艺术隐喻。光是魔法的终极点燃,无论是自然的无为,还是后天的人造灯光,随时上演一场Тетрис游戏。
方块的掉落,终引发一场视觉的聚焦,将注意力引向入口装置。缺角的旋木方块暗藏机关,只需轻轻触摸便打开了进一步探索匠杺社的新篇章。
02ARTISTIC木 变量
从口入,初极狭,方盒通道既承载了接待的仪式感,又拉满曲径通幽后的心理期待值。复行向前,豁然开朗,大有天地。
15米的挑空空间,在行走的动线上形成前后对比,空间的体量悬殊感立现。阶梯是其中的中枢节点,于横向天然分割出两条主通道,于纵向上拉长展示尺度,引导向上动线。
木是灵魂,是牵引者,是空间架构的搭建者。在木材质的不间断递进下,设计消解了繁饰,只对艺术展厅稍作勾勒,保留最本真的围合状态,以成全后期展示内容的跳出。无倾向风格的自由,也将多变性植入其中,无论是举办展示,主题活动,亦或是运营场景,都可随需即刻生成。
木的生命力,经过匠心与艺术的点化,走向了新的生长。创造力和想象力,将木的探索导向无限可能的幻化,成为一件件意趣十足的物件。
设计以木制装置的形态,藉由木的文创与潮趣,与艺术调性的互动,不断去烙印匠杺社这一品牌的精神核心。
03COMMUNION木 共融
木作文创只是引言,木的全产业链在匠杺社共融,凝练为品牌的文化体系。在这一主线指导下,空间在布局上走向了多元展示。研发,制作,文创,展示和交流,每个侧切面都在空间中找到安放的契机。
传统的木工制作,与现代的技术工艺,老厂房的原生工业风,与潮流的新型文创理念,皆在此交汇,对撞,融合……
木作的形态不着痕迹隐于空间,承担着使用功能,内化为空间的自然装饰,演变为当下的生活方式。从雕刻制作的来时路,到木以物件的形态参与到人的生活,前世与今生的羁绊,让木的文化附着了空间的流变动态,以及时间上的沉淀厚度,新旧交替水到渠成。
以匠杺社的理念为展开,木作的当下和未来以品牌墙的形式,去讲述蓝图,格局,和广大致精微的意义。空间的现代艺术语境,将形式和内容皆纳入其中,以更具视觉化的吸引昭示于众。那些关于木的愿景,以及实践的途径书写,自带年轻的型格,和先锋的天分,当代木作潮流艺术馆的特性即刻识别。
04COMPLEX木 情绪自阶梯而上到达的办公和休闲区域,虽更多倾向于木的背后故事,却在艺术性上保持着一以贯之的整体性。
因着木的热爱,一群人聚合于探索传统木作的新表达,去共振同样热爱木作艺术的灵魂,唤醒新时代的工匠精神。木在此形而上为情怀,匠杺社艺术空间则成为这一情怀与世界链接的触点。
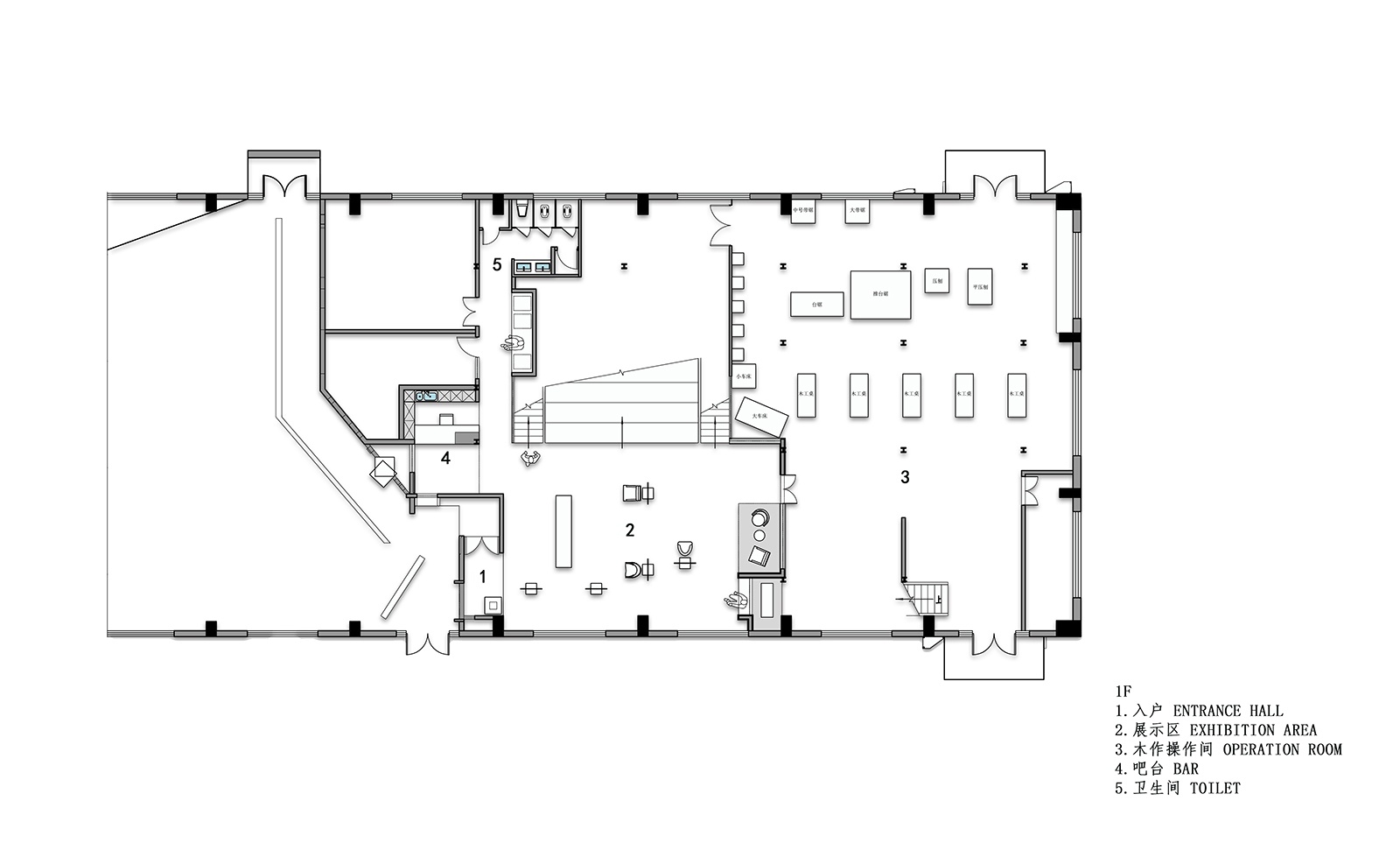
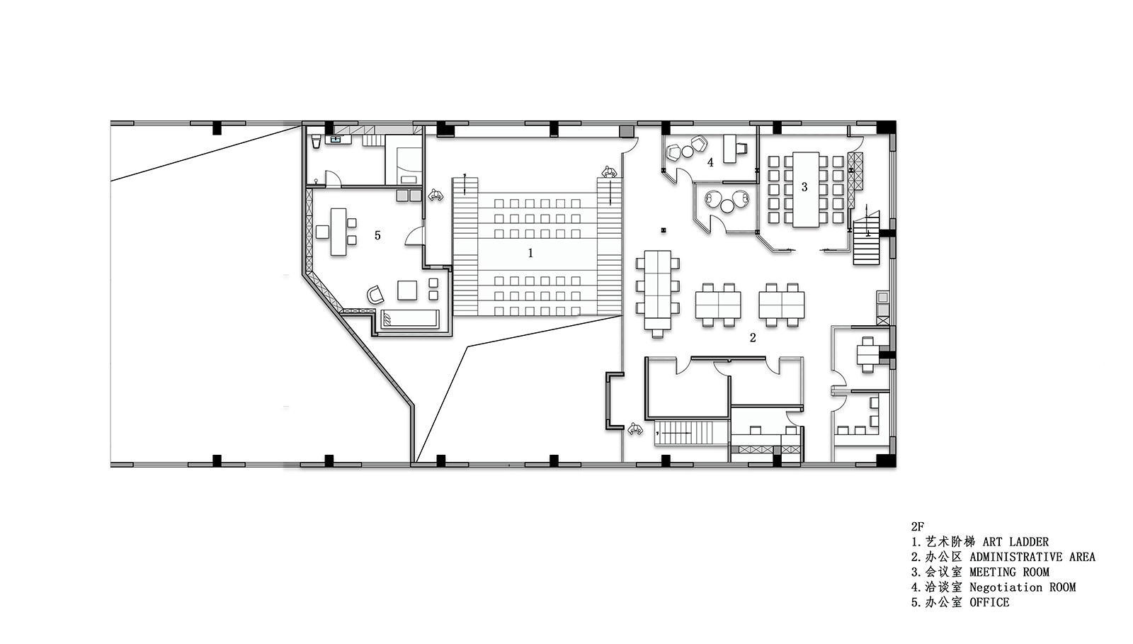
05ANALYSIS DIAGRAM分析图
INFO
- 项目名称 -
匠杺社当代艺术馆
- 设计机构 -
牟恩室内设计
- 设计总监 -
牟冬
- 设计团队 -
朱本宝 史健祥
房帅 刘茹荟
- 项目面积 -
1600㎡
- 项目地址 -
山东 济南
- 项目摄影 -
隐像筑影
- 文案编辑 -
清歌传媒
-
客服
消息
收藏
下载
最近
































