查看完整案例

收藏

下载
项目名称:比利时refuga winter garden Tower公寓
位置:比利时
设计公司:建筑设计公司, 肯普·希尔工作室, UAU收藏
2015年,由Abscis architecten、UAU集体、LAND landschapsarchitecten和Atelier Kempe Thill architects and planners组成的规划团队与当地房地产开发商Kolmont和Vestio合作,赢得了2015年Herkenrode军营开发的竞标哈瑟尔特,佛兰德东部林堡省的首府。设计团队建议对市中心的街区进行实质性的改造和追溯性的致密化,这不仅符合中世纪城市的历史模式,还补充了新的空间、社会和生态品质。所提议的是将街区中央的步兵训练场重新指定为市中心平静的绿色绿洲。为了尽可能地将新公园与公共城市空间联系起来,三条新通道被整合到现有的街区中,并使街区周边的发展更加集中于绿色庭院空间。因此,文艺复兴时期(1544年)的“Herkenrode修道院修女会”的现有避难所以及19世纪晚期的几座纪念性军营建筑被非常仔细地嵌入到新公园的概念中,并被部分改造成住宅建筑。
20世纪北部街区周边开发的一部分因建筑损坏而被拆除,代之以当代住宅建筑,其下有一个两层地下车库,用于必要的停车位。凭借其立方体积和轻质砖立面,新建筑面向周围的发展,并通过宽敞的阳台和嵌入式门厅向街区的绿色内部开放。这些建筑是由阿布西斯和UAU集体设计的。为了增加战略上所需的住房供应,并实现土地的合理利用,还建议在街区的绿色内部建造一座九层住宅楼。这就提出了这个建筑应该采取的形式的问题,这个建筑在欧洲现存的历史环境中是不典型的。因此,Atelier Kempe Thill提出了一个冬季花园建筑,它对所有方向都是透明的。一方面,这力求与街区周边的石头和相当重的砖建筑形成一种事实上的对比,以强调与历史的决裂,并强调公园的空间独特性。另一方面,试图以一种相当保守的方式来设计建筑,这样它就不会主宰整个局面,并强调街区的整体效果。
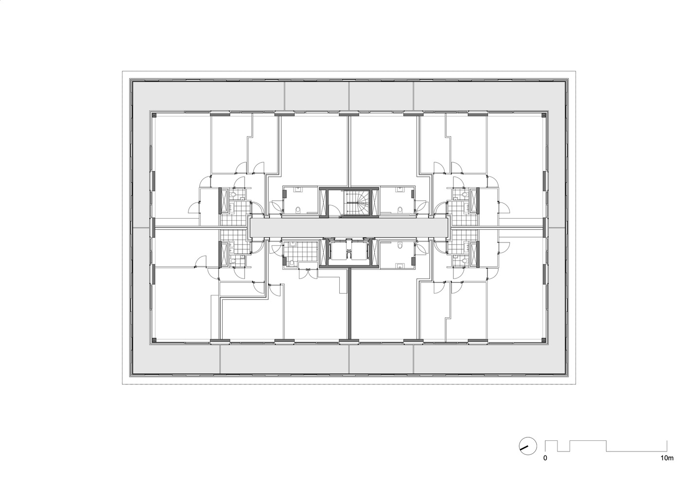
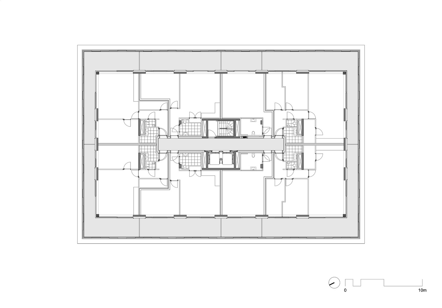
与此同时,人们试图通过一种开放和通风的设计来相对化大而高的建筑体量,并通过立面的非正式特征来产生一定的轻盈感。因此,该建筑最大限度地参考了绿色公园景观、现有的历史建筑立面和令人印象深刻的市中心全景哈瑟尔特其强调水平,现代主义的结构和强烈悬臂开放的建筑角落。在居民楼下面,还有一个两层的地下车库。因此,没有必要在公园的很大一部分下面建造一个地窖,这意味着新种植的树木有足够的空间能够很好地生长。新的公园别墅被认为是一个非常紧凑的类型,占地面积为19×33米。这座建筑只有两部电梯和一个内部楼梯。第二条逃生路线通过外墙。立面和核心是建筑的承重元素。从建筑角度来看,在布局中不需要额外的墙;只需要八个补充柱,部分与电缆和管道的轴结合。在孤立的体量周围,设计了冬季花园的环形区域。这些阳台的东西两侧分别为2.7米,南北两侧分别为1.7米。
这种一般的基本结构——就像经典的办公楼一样——为布局的发展提供了一个非常灵活的基础,建筑的架构可以几乎完全脱离布局的设计。在建设期间,为自由规划的建筑颁发了建筑许可证,公寓的销售也在进行,公寓可以部分地根据未来居民的需求进行个性化调整。由此产生的是50个单独设计的公寓的混合体,面积在47到190平方米之间,就像一张经济图表,直接描绘了居民的经济状况,同时也确保了项目内部的某种社会融合。该项目产生的住宅质量是矛盾的。一方面,该建筑位于市中心一个非常密集开发和密集使用的位置,建筑和公寓本身具有相当的城市和集体特征。另一方面,作为保护性侧翼建筑的结果,建筑的周围没有汽车,绿色,非常干净,出奇的平静,因此看起来像郊区。为了充分利用公寓的这些品质,该项目的垂直分区得到了努力。在前两层,提供复式单元,以便不必将卧室放在底层。
为了保证底层生活空间足够的私密性和舒适性,该建筑比公园的实际高度高出约0.5米,客厅被设计成突出的双高度冬季花园和环形凸起植物区,这是公园建筑的一部分。从二楼开始,提供单层公寓。内部立面尽可能采用玻璃,并配备大型滑动元件。窗户提供了周围环境的水平全景,并促进了尽可能流动的突出冬季花园的参考。较低楼层的公寓因此更倾向于公园和街区周边开发,而从五楼开始,公寓可以欣赏到屋顶景观的全景哈瑟尔特。两个非常独特的顶层公寓在建筑的屋顶上实现了。它们被设计成“屋顶别墅”,每栋都有一个大约175平方米的屋顶露台。该项目力求将经常被认为是矛盾的目标——经济、舒适、可持续性、灵活性和持久性——尽可能不言自明地结合起来。由于其紧凑性和有限的立面面积以及高效的中央通道,该建筑既经济又节能。该项目也为城市中心必要的生态追溯致密化做出了重要贡献。冬季花园有助于创造一个非常轻松的生活氛围,并大大提高居民的生活质量。
同时,它们在夏季作为固定的防晒保护,在冬季作为能量缓冲区。该建筑通过西侧一个宽敞的双层大厅进入。它裸露的混凝土、抛光的混凝土地板和独立的橡木墙,颂扬了住宅的集体性,强调了该项目的城市化宏伟。建筑的基本结构由现场混凝土和预制构件组合而成。凭借其巨大的灵活性和面向未来的可兑换性,这种结构基础力求有很长的使用寿命,因此设计得特别坚固和有弹性。内部建筑采用弹性石灰砂岩元素和轻质结构。外墙、室内地板和露台地板是用各种类型的木材实现的,因此给公寓带来了一种相当郊区和温暖的氛围。冬季花园的窗户和滑动元件由铝或钢制成,一楼高达5.70米从建筑师的角度来看,该建筑是一个符合莱昂·巴蒂斯塔·阿尔伯蒂的近乎完美的平衡行为,因为它试图实现建筑的可持续性,特别是通过结构对各种用途的开放性、合理的紧凑性、所选材料的坚固性以及空间的美感。
对于Atelier Kempe Thill而言,该项目一方面是一个新的原型,其灵感尤其来自Hiphouse Zwolle和Montmartre Paris的社会住房项目。作为城市和郊区质量战略融合的结果,这里创造了一个负担得起的,超越社会最低生活水平概念的城市住房的理想模式。凭借其大型冬季花园、内外之间的流动关系、阁楼式布局和非常高质量的物质化,该项目可以被视为流行的佛兰德独栋住宅模式的真正替代方案。另一方面,该项目是上述改造历史街区的复杂策略的具体结果。由于其精心设计的空间效果,出现的是一个共生关系的石头块周边发展,服务地下车库,和沉思的公园,新建筑因此成为一个相当迷人的城市合奏的一部分哈瑟尔特,它形成的高潮。
比利时refuga winter garden Tower公寓外部实景图
比利时refuga winter garden Tower公寓外部实景图
比利时refuga winter garden Tower公寓外部实景图
比利时refuga winter garden Tower公寓外部实景图
比利时refuga winter garden Tower公寓外部实景图
比利时refuga winter garden Tower公寓外部实景图
比利时refuga winter garden Tower公寓内部实景图
比利时refuga winter garden Tower公寓内部实景图
比利时refuga winter garden Tower公寓内部实景图
比利时refuga winter garden Tower公寓平面图
比利时refuga winter garden Tower公寓平面图
比利时refuga winter garden Tower公寓平面图
比利时refuga winter garden Tower公寓平面图
比利时refuga winter garden Tower公寓平面图
比利时refuga winter garden Tower公寓平面图
比利时refuga winter garden Tower公寓平面图
比利时refuga winter garden Tower公寓平面图
比利时refuga winter garden Tower公寓平面图
比利时refuga winter garden Tower公寓剖面图
比利时refuga winter garden Tower公寓立面图
比利时refuga winter garden Tower公寓立面图
比利时refuga winter garden Tower公寓立面图
客服
消息
收藏
下载
最近

























