查看完整案例

收藏

下载
项目名称:韩国Dots 2商业建筑和住宅
位置:韩国
设计公司:JYA建筑师事务所
几年前,客户翻修了一栋房子,并将其用作一家设计公司的办公楼。他们最近购买了旁边的一个多功能住宅单元,并决定建造住房和小规模的邻里生活设施供出租。由于之前已经经历过改造,他们充分意识到改造的优势,因此希望尽可能通过再次改造建筑来提高效率。然而,考虑到最近收紧的拆迁标准、随之而来的时间和成本的浪费、作为社区生活设施出租的楼层高度不足,以及拆除外墙以确保最小停车空间的要求,客户认为改造所产生的成本和努力将大于它可能带来的效率。因此,我们和客户做出了一个大胆的举动,决定建造一座新的建筑。场地很小,所需的面积已经确定,所以建筑必须又高又薄。因此,设计过程中最优先考虑的是如何有效地满足物理要求。
首先,太多的停车空间会使一楼几乎没有空间出租,所以必须有足够的空间停放一辆车。租赁空间的面积是据此确定的。接下来,客户的居住空间将在三楼和四楼,还有一个阁楼。为了最大限度地提高3楼和4楼客户居住空间的效率,从1楼到3楼的楼梯被用来保护辅助空间,如锅炉房、机房、杂物间和储藏室。由于租赁空间的面积有限,计划是最大限度地利用一楼的租赁空间,同时利用二楼的一部分作为居住的辅助设施。因此,三楼和四楼可以用作主要的生活空间,如卧室、浴室、客厅、厨房和餐厅。在满足了这些物理要求后,我们思考了这个如何与它旁边的“点1”协调或连接。公司建筑Dots 1的空间结构是朝南开放的。即使在改造后,南部仍然有一个院子,空间通过窗户和敞开的门相连。
因此,当我们规划第二栋建筑时,我们决定利用这个院子作为连接两栋建筑的通道,以及一个公共院子和一条通往城市的小巷子。因此,通过室外空间连接和扩展两个建筑物的第一层,可以将两个小建筑物的第一层的出租空间用作更多样和更宽敞的空间。所有这些空间都可以用于一个或多个目的。立面图也相应地强调了这两个建筑之间的空间的中心地位。新建筑主要分为出租空间和居住空间。一楼的出租空间较大,二楼的出租空间较小。另一方面,住宅空间,仅由一楼的前门组成,向上变得更加宽敞。根据这个方案,空间构成在立面上显露出来,用玻璃表达的出租空间被设计成面对这两个建筑的中间空间。这中间的空间是为了在视觉上被视为这两个建筑的中心。
另一方面,住宅空间使用的材料是砖,这与“点1”有连续性。此外,厚混凝土线形成在砖和玻璃和过梁之间的界面,以继续使用线,即“点1”的立面元素。然而,新建筑需要一个不同的形象,使用相似的材料和立面元素。因此,视觉上的不稳定性和紧张感是由透明玻璃体上沉重的混凝土和砖体构成的,上部体的形状随着向上逐渐变大。从设计的角度来看,这是一个重要而有趣的项目,通过它我们可以发现改造和新建筑之间在空间和形态上的连续性。Dots的客户对任何事情都开放。因此,尽管在第一个和第二个项目中存在挑战和不足,但他们支持我们,使我们能够在不放弃的情况下将我们有些大胆的想法变成现实。如果这些项目被证明是成功的,这都要归功于客户。
韩国Dots 2商业建筑和住宅外部实景图
韩国Dots 2商业建筑和住宅内部实景图
韩国Dots 2商业建筑和住宅内部实景图
韩国Dots 2商业建筑和住宅内部实景图
韩国Dots 2商业建筑和住宅内部实景图
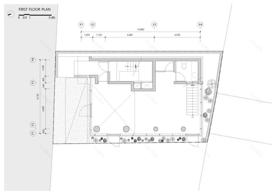
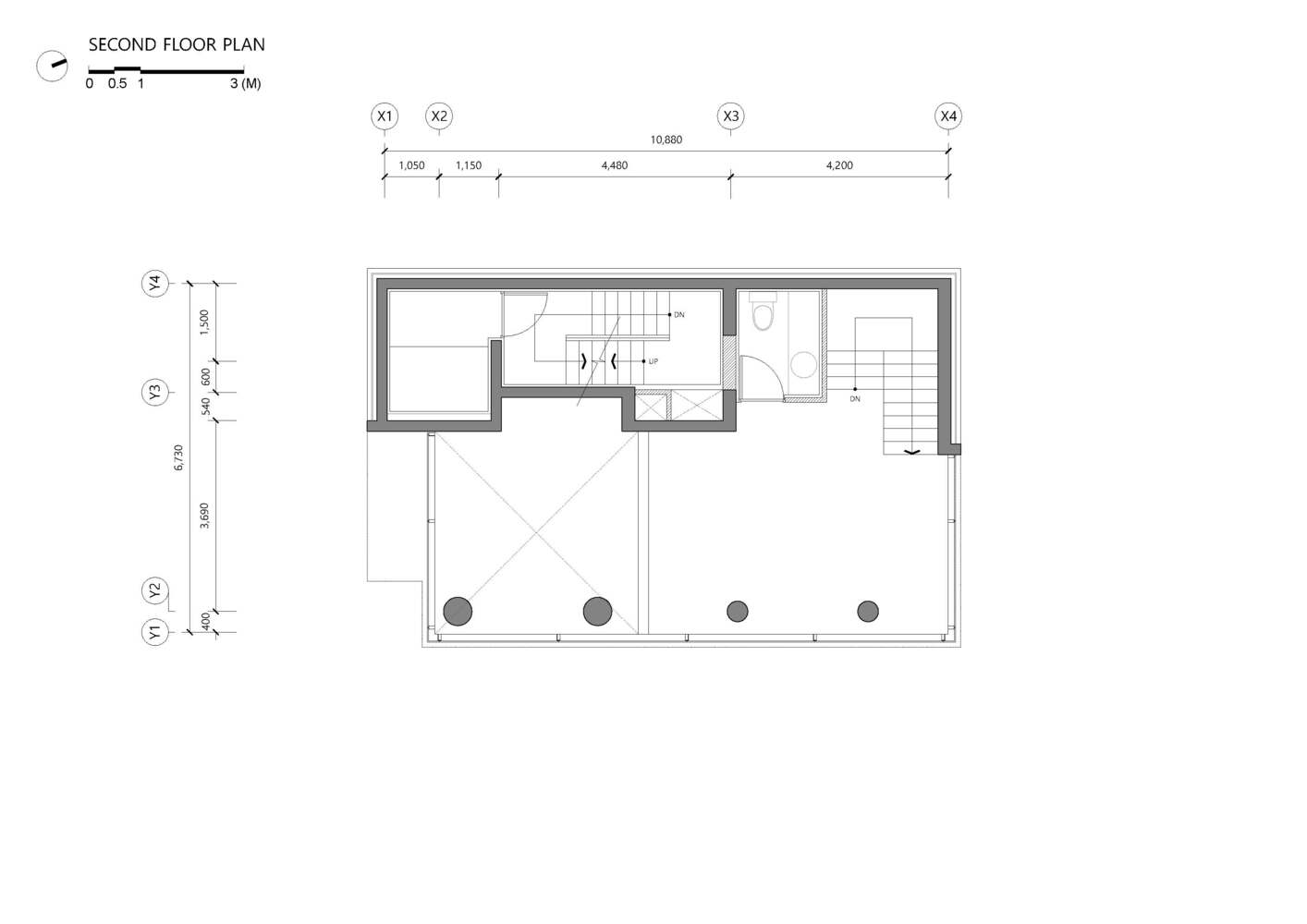
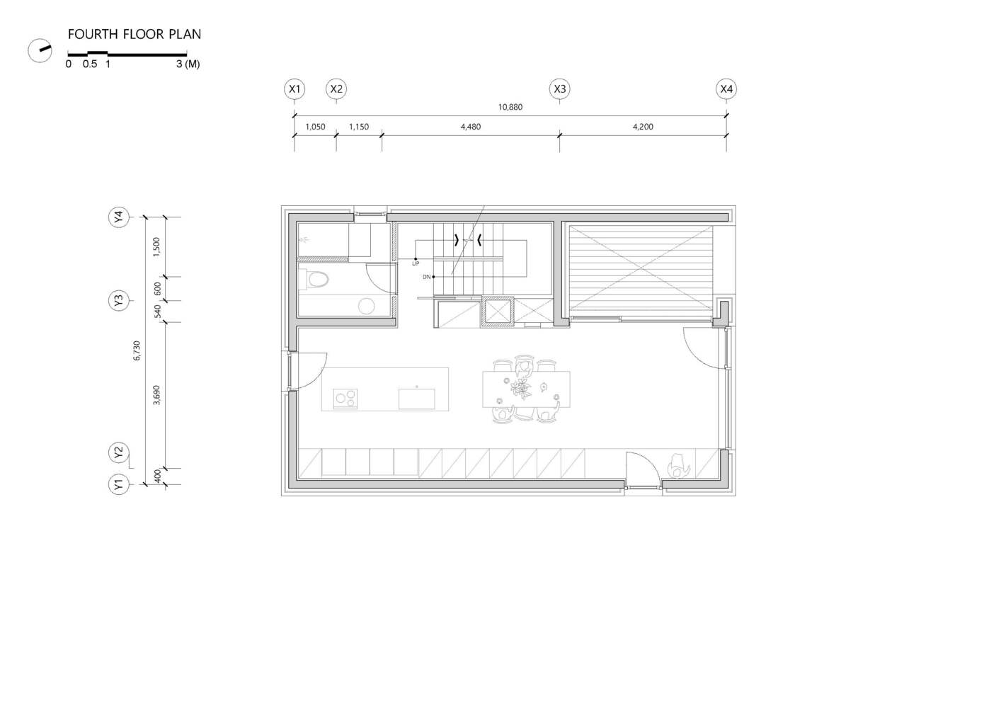
韩国Dots 2商业建筑和住宅平面图
韩国Dots 2商业建筑和住宅平面图
韩国Dots 2商业建筑和住宅平面图
韩国Dots 2商业建筑和住宅平面图
韩国Dots 2商业建筑和住宅平面图
韩国Dots 2商业建筑和住宅剖面图
韩国Dots 2商业建筑和住宅剖面图
韩国Dots 2商业建筑和住宅剖面图
韩国Dots 2商业建筑和住宅立面图
韩国Dots 2商业建筑和住宅立面图
韩国Dots 2商业建筑和住宅立面图
韩国Dots 2商业建筑和住宅立面图
客服
消息
收藏
下载
最近




















