查看完整案例

收藏

下载
项目名称:瑞典Solhagaparken住宅区
位置:瑞典
建筑师: 穆尔曼·阿克泰克特
“Solhagaparken”是位于斯德哥尔摩以南约20公里的郊区马斯莫的一个住宅项目。这座五层建筑坐落在现有的Solhagaparken旁边。马斯莫在许多方面都是典型的郊区住宅区沃尔比,胡丁格。该地区于1964年完工,以几栋红砖大型公寓楼为特色,围绕着郁郁葱葱的Solhagaparken。马斯莫是一个反差极大的地方,广阔的绿地和森林夹在两条高架公路之间,连接着该地区和斯德哥尔摩市中心。在东部,该地区由Masmoberget陡峭的斜坡界定,在西部,由连接Huddinge和Botkyrka的水界定。该建筑的设计充分利用了场地的复杂条件,许多公寓全天都可以享受阳光,并可以欣赏附近Albysjö的美景。这些公寓受到Botkyrkaleden和sdertljevgen的高噪音水平的影响,该概念基于varvsvgen沿线的U形建筑体量,创建了一个面向现有Solhagaparken的受保护的内院。
大多数公寓都是双面的,因此可以进入更安静的内院。公寓主要通过庭院一侧的室外走道进入。面对街道,建筑有宽敞、细长的阳台,外部储藏室放置在公寓之间,为居民创造一个私人户外空间,并帮助控制噪音水平。一些裸露的公寓有部分玻璃阳台,以进一步减少噪音。外墙由经过热处理的木材制成,窗户和阳台门由阳极氧化铝制成。狭长的阳台有栏杆和深棕色的钢制细节。阳台由垂直的木柱构成,漆成同样的棕色,给建筑一个独特而统一的特征。该项目的目标是开发具有简单高效布局的低成本公寓,以及舒适的室内和室外空间。该建筑的建筑设计在视觉外观和材料选择方面为该地区带来了一些新的东西。该项目创造了大量的新公寓,主要由较小的单元组成,位于公共交通附近,为马斯莫的这一部分提供了一个精心考虑的城市补充,将有助于该地区的活力。
瑞典Solhagaparken住宅区外部实景图2.jpg
瑞典Solhagaparken住宅区外部实景图
瑞典Solhagaparken住宅区外部实景图
瑞典Solhagaparken住宅区外部实景图
瑞典Solhagaparken住宅区外部实景图
瑞典Solhagaparken住宅区外部实景图
瑞典Solhagaparken住宅区外部实景图
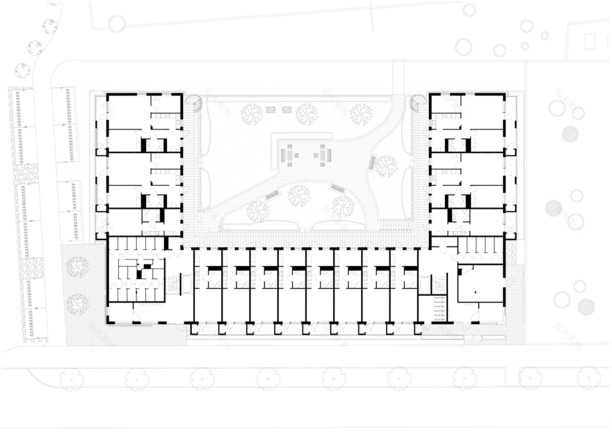
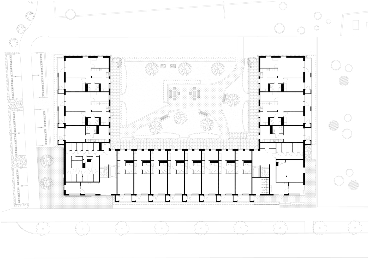
瑞典Solhagaparken住宅区平面图
瑞典Solhagaparken住宅区平面图
瑞典Solhagaparken住宅区平面图
瑞典Solhagaparken住宅区剖面图
瑞典Solhagaparken住宅区剖面图
瑞典Solhagaparken住宅区剖面图
瑞典Solhagaparken住宅区剖面图
客服
消息
收藏
下载
最近

















