查看完整案例


收藏

下载
该项目是伦敦北部维多利亚时代住宅后部的单层扩建部分,创造了适合居家办公的灵活的一楼空间,同时也重新安置了房屋,使其成为生活之家。项目名称涉及设计的核心策略,即为室内带来间接光线。此外还涉及充当“阴影捕捉器”的外表皮,即彩色浇筑混凝土砌块,它们在没有太阳直射的情况下也能在后立面形成阴影。业主是日本个人色彩顾问兼平面设计师Keiko Cummings及其学者丈夫Alan,他们委托Office S&M对房屋一楼厨房进行扩建,使其适合用作咨询空间。该夫妇热衷于色彩和光线,这促成了建筑师和业主之间有益的对话、尝试和发现过程。
Overcast House is a single-storey rear extension to a Victorian house in north London, creating a flexible ground floor space which accommodates working-from-home while reconfiguring the house to make it a home for life. The project name speaks of a central strategy to bring indirect light into the space and references the ‘shadow catcher’ external skin – pigmented cast concrete blocks that model shadows on the rear façade even in the absence of direct sun. The houseowners – Keiko Cummings, a Japanese personal colour consultant and graphic designer, and her husband, Alan, an academic – appointed Office S&M to enlarge their ground floor kitchen and make it suitable for use as a consultation space. The client’s passionate interest in colour and light made for a rewarding process of dialogue, experimentation and discovery for architect and client.
▼从后庭院望向住宅,view from backyard to the house © Megan Taylor
扩建部分由木材建造,它不仅含碳量比砖或砌块低很多,而且可以形成特别薄的结构。其外表面覆盖定制的圆齿形彩色混凝土块,由Office S&M和Mortise Concrete共同研制。比起普通砌砖,该材料实现了更可调节的立面。颜色互补的绿色排水管将雨水从屋顶排出。
The extension is constructed in timber, which has a much lower embodied carbon than a brick or blockwork inner skin and creates the thinnest structure possible. It is clad in an external skin of bespoke pigmented scalloped concrete blocks developed by Office S&M with Mortise Concrete. This creates a more modulated elevation than would be achieved with ubiquitous brick. A complementary green downpipe theatrically celebrates the exit of rainwater from the roof.
▼外立面,external facade © Megan Taylor
▼后部入口,rear entrance © Megan Taylor
▼从入口望向室内,view from entrance to the interior © Megan Taylor
▼绿色排水管,the green downpipe © Megan Taylor © Megan Taylor
▼圆齿形彩色混凝土块,the pigmented scalloped concrete blocks © Megan Taylor
项目迁移了Keiko的工作空间,该空间原来位于房屋前部的南向位置,当她在这里接待客户时,变化的光影使颜色很难保持不变。新空间的首要需求是稳定且均匀的光线,这是业主进行色彩分析工作的必要条件。他们还要求建造避免阳光直射的明亮空间,这对设计师来说是一个不小的挑战。此外,这座狭窄的房屋内还需要安置一张能容纳十个人咨询的桌子,以及考虑未来居住功能的一楼淋浴间。设计师利用扩建部分的北向光线回应业主的要求。形状经过精心设计的天窗使室内免受直射光的干扰,而空间深处的平天窗则受到原有建筑的保护。这些锯齿形的屋顶天窗更常用于美术馆和厂房,它们使室内全天都有均匀的北向光,而不是使颜色剧烈变化的直射光。这种天窗布置使建筑师可以有分寸地控制室内光环境。
▼剖轴测,sectional axon © Office S&M
The project relocates Keiko’s studio space, which was formerly in the front of the house with a south-facing aspect. Changing sunlight and shadows made it hard to maintain colour consistency when she met her clients. A primary requirement for the new space was constant, even light – conditions necessary for the owner to undertake colour analysis for her work. The brief for a well-lit space that would be shielded from direct sunlight was an unusual challenge. The narrow house also needed to accommodate a table seating 10 people for consultations and a ground floor shower to futureproof the home. The architects’ response has been to make use of north light in the new extension. Carefully shaped rooflights shield the windows from direct sun, while a flat rooflight deeper in plan is protected by the existing house. These sawtooth rooflights are more commonly used in art galleries and old factories than homes, letting in even north light throughout the day, rather than direct sunlight which changes colour drastically. The arrangement allowed the architects to carefully control the lighting conditions inside.
▼后部入口处的锯齿形天窗,sawtooth skylights at rear entrance © Megan Taylor
▼从厨房望向后庭院,view from kitchen to the backyard © Megan Taylor
▼光线均匀的厨房区域,well-lit kitchen area © Megan Taylor
▼锯齿形天窗避免阳光直射,sawtooth skylights avoiding direct sunlight © Megan Taylor
▼细部,details © Megan Taylor
从入口门厅到咨询空间的路线是设计的关键因素。这段路线需要隐藏淋浴间、卫生间和橱柜等日常生活标志空间,以便业主的客户前来咨询时进入的是一个宁静的工作室。斜向铺设的地板将客户引入室内,卫生间墙体的尖角是节省空间的策略,同时也呼应了屋顶天窗的棱角形状。室内的金箔材质使北向光和入射光变得均匀而柔和,并与流行色相结合。钢梁采用薄荷绿(彩通2020流行色),柔化了工业质感。千禧粉(彩通2018流行色)瓷砖的颜色在视觉上放大了狭小的浴室。
The route from the hall entrance to the consultation space was a key consideration. It has been designed so that the signs of everyday life (shower room, toilet and kitchen cupboards) can be concealed from view; when clients attend consultations, they enter a serene studio space. The diagonal orientation of floor planks draws guests into the space, and the sharp angle of the toilet wall – a space saving strategy – echoes the angular shape of the rooflights in section. Inside, gold leaf evens out and warms up the north light and incoming light, and it is combined with a palette of ‘trending’ colours. Neo-Mint (Pantone colour of 2020) is used to soften the industrial quality of the steel beams; and colour blocking in tiles of Millennial Pink (Pantone colour of 2018) visually enlarges the small bathroom.
▼薄荷绿钢梁,neo-mint steel beams © Megan Taylor
▼千禧粉瓷砖,millennial pink tiles © Megan Taylor
探索性的色彩选择带来了有效的工作空间、宽敞的厨房以及新的娱乐空间,这些空间在柔和无影的光线下变得明亮。该项目在新冠疫情期间完成,容纳了瑜伽等各种日常活动,有效地体现了其适用性。
An exploratory colour selection has resulted in an effective workspace, expansive kitchen and a new convivial space for entertaining; all glowing with gentle shadowless light. The project was completed during the Covid-19 pandemic and has accommodated a variety of activities, including daily rituals like yoga, effectively demonstrating its adaptability.
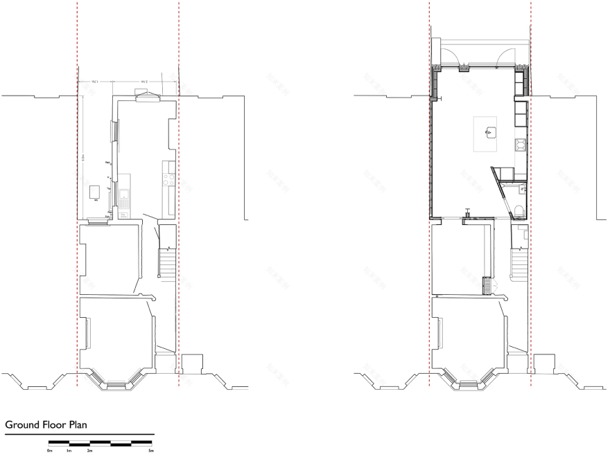
▼扩建前后平面图,plan before and after extension © Office S&M
▼扩建前后立面图,elevation before and after extension © Office S&M
▼扩建前后剖面图,section before and after extension © Office S&M
Address: 35 Chesterfield Gardens, Haringey, London N4 1JL Site area: Alan and Keiko Cummings Gross internal area in m2: Before 94m2, after 114m 2 (25m2 increase) Date of appointment: June 2018 Appointment: Tender Start on site: September 2019 Practical completion: February 2020 Final construction cost: £150,000 inc VAT Architect: Office S&M Project architect: Hugh McEwen Design team: Hugh McEwen, Catrina Stewart, Beth Bird Engineer: Stephen Foster, Foster Structures Contractor: Ylber Gashi, YG Builders Ltd Building control: Butler and Young QS: SJB Projects Furniture build: Ylber Gashi, YG Builders Ltd Concrete blocks: Mortise Concrete Kitchen surfaces: InOpera Light switches: Swtch and Buster and Punch Kitchen: DIY Kitchens Tiles: Fired Earth Lights: Molts Lighting Windows and doors: Velfac Toilet: Toto Photography: Megan Taylor
客服
消息
收藏
下载
最近























