查看完整案例

收藏

下载
项目名称:荷兰马坡的潮汐屋
位置:荷兰
照片:拉尔斯·范埃斯
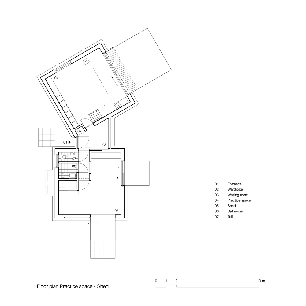
潮汐屋探索了材料、景观和居住者之间的关系。房子坐落在特克塞尔岛上,在一个乡村地区的边界,穿过树林、沙丘和北海。它包括一个生活区和一个带等候室的独立练习区。潮汐屋由看似松散地放置在场地上的相似体量组成。就像被潮汐抛在身后的物体。体积被轻微地旋转和移动。中间是剩余的开放空间,用来连接景观。这种动态设置影响了白天光线和氛围的变化,以及空间与周围景观的关系。房子的雕塑体量主要被封闭在街道一侧,一条狭窄的道路上。在花园一侧,大窗户和推拉门提供了与景观的直接联系。这使得内地的季节变化显而易见。不同的体量形成了一个开放、连续的空间,每个体量都有自己的特点。
材料的变化在整个房子的2.40米的高度产生了一个水平分割。桦木胶合板、灰泥和钢梁之间的这种材料变化,影响了室内空间和过渡景观的体验。这栋房子有几个可持续的实施方案:木结构、可持续改良木材的正面覆层和窗框、再生铝屋顶、自然通风、通过地板供暖保持热量的混凝土地板,以及重复使用的石灰华地砖。这座房子是全电动的:除了空气-水热泵之外,能量是由小屋屋顶上内置的太阳能电池板产生的。屋顶的雨水被收集在地下水箱中,重新用于花园的灌溉。潮汐屋是一个开放的动态建筑,与周围的景观融为一体。展示新的空间体验,刺激空间使用方式的变化。
荷兰马坡的潮汐屋外部实景图
荷兰马坡的潮汐屋外部实景图
荷兰马坡的潮汐屋外部实景图
荷兰马坡的潮汐屋外部实景图
荷兰马坡的潮汐屋外部实景图
荷兰马坡的潮汐屋外部实景图
荷兰马坡的潮汐屋内部实景图
荷兰马坡的潮汐屋内部实景图
荷兰马坡的潮汐屋内部实景图
荷兰马坡的潮汐屋内部实景图
荷兰马坡的潮汐屋内部实景图
荷兰马坡的潮汐屋内部实景图
荷兰马坡的潮汐屋内部实景图
荷兰马坡的潮汐屋内部实景图
荷兰马坡的潮汐屋内部实景图
荷兰马坡的潮汐屋平面图
荷兰马坡的潮汐屋平面图
荷兰马坡的潮汐屋平面图
荷兰马坡的潮汐屋立面图
荷兰马坡的潮汐屋立面图
荷兰马坡的潮汐屋立面图
荷兰马坡的潮汐屋立面图
客服
消息
收藏
下载
最近

























