查看完整案例

收藏

下载

翻译
Architect:WY-TO Group
Location:Great World City, Singapore
Project Year:2019
Category:Shopping Centres
In the latest addition to the Spa Esprit beauty outlets, WY-TO was hired to breathe fresh life to the brand by rethinking the notion of Relax, Reset and Recentre. People often seek for a place where the mind, body and spirit is able to find serenity in healing. A spa offers an opportunity for individuals to have a clean slate; to be reborn.
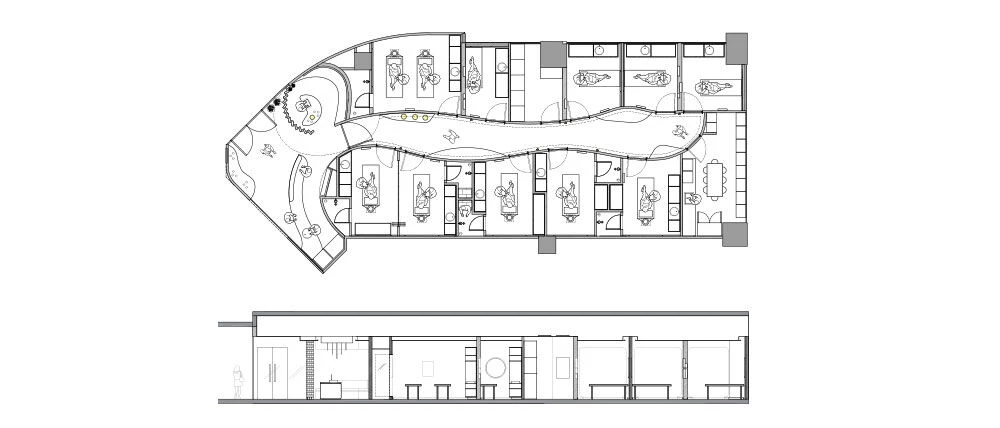
The act of birth is a beautiful one. With the notion of Rebirth, the design aims to reflect the softness and organic flow of a womb. From the vast and exposed world, individuals enters back into the sheltered and protected womb, travelling through a narrow passageway. The intricate play of soft light and shadows carves out the beautiful volumes and curvature of the space.
The colour palette of the space takes reference to one of Spa Esprit’s innovative Tibetan singing bowl treatment. Natural materials like rammed earth-inspired technique, raw bricks and wood, creates an earthy texture in reflecting a dialogue between the space and its spa treatments.
In reflecting the beauty and femininity of a womb, hints of dark red cushions, hanging flowers and dyed rammed earth inspired finish are cleverly introduced as accent colours within the space. The stacking of bricks creates porosity through the space, meanwhile providing slots of product display.
Within each treatment room, every ceiling light is specially crafted in creating a starry night effect, reflecting the rebirth process under the stars. Hence finishing the treatment and leaving the “womb” reiterates the notion of being reborn.
▼项目更多图片
客服
消息
收藏
下载
最近





























