查看完整案例

收藏

下载
户型:复式
面积:200平米
设计风格:美式风格
工程半包价:19.8W
设计师:李秀玲
施工团队:合肥飞墨设计
工程地址:合肥•加侨悦山国际
设计师的话
这套作品的业主给我留了很深的印象,因为他是第一个拿着新房装修计划书PPT来找我做设计的。
一见面,他就笑着:“嘿嘿。。我可是做了很多功课来的,我相信合肥除了你,再也找不到其他人可以做我家的设计了。因为不断的去了解设计,发现目前合肥设计做的最好的也就只有你了。”
当时看完他做的计划书我都惊讶了,不仅仅详细的写出了自己的家庭成员基本背景,还有每个人的生活需求、个人喜爱。可以说条理非常的清晰,很清楚了解他们未来的生活要些什么。不得不说这是我见过的年轻业主里很少见的睿智,真不愧是在大型企业做高管的人,这PPT我给满分
~
装修中他有很多想法都被我说NO,后来笑称多年的选择困难纠结症在遇到我之后被治好。干脆就当起了甩手掌柜,把新居完全丢给了我,任由我去设计发挥,很感谢他对我们的这份信任。在被我不断地否定与肯定中,最终找到了只适合他的生活方式。
有时候,不是说这个设计很美你家就一定要有,而是只有适合你的才是最好的。飞墨只想给业主的不仅仅是优雅生活,更是舒适的~
设计思路
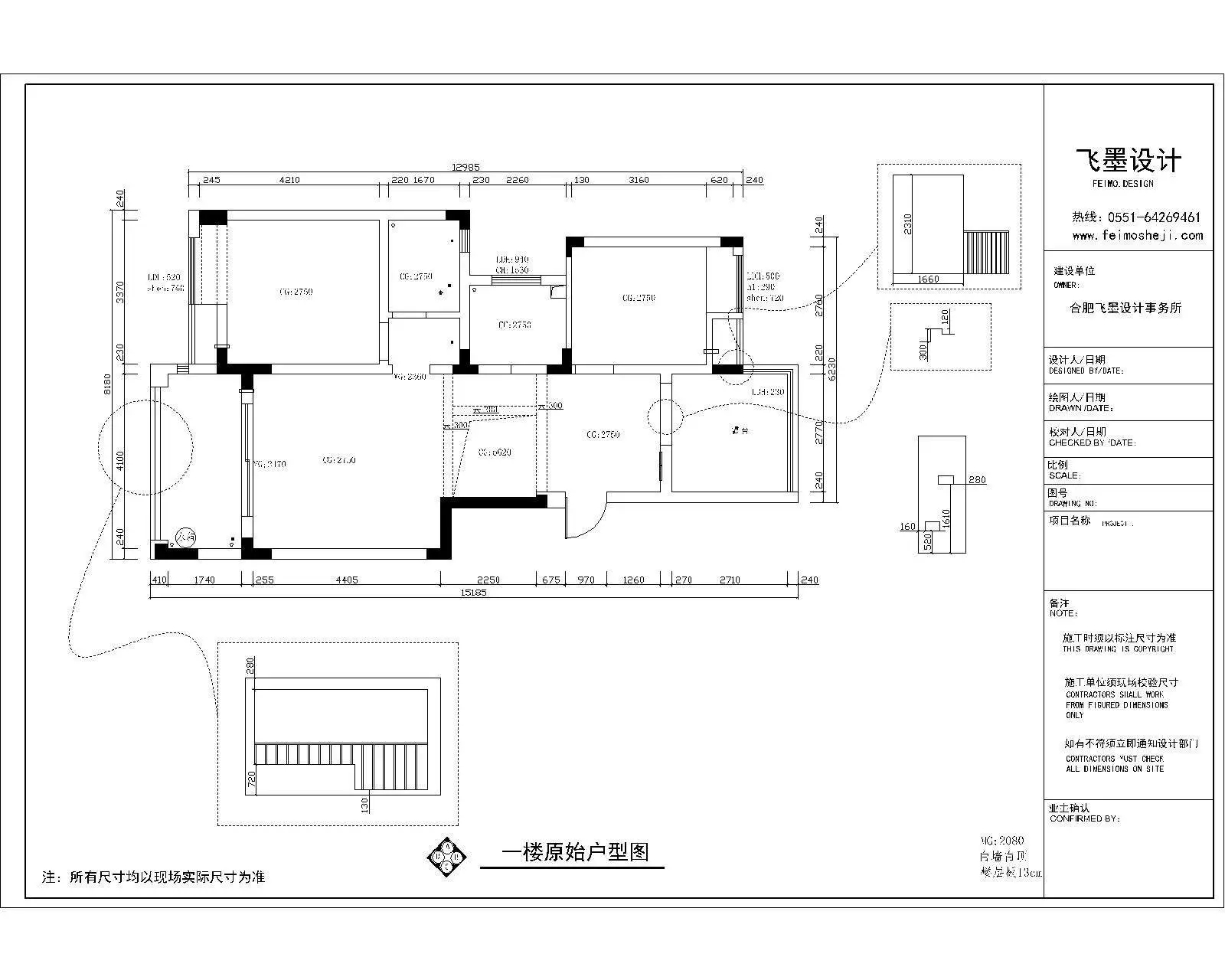
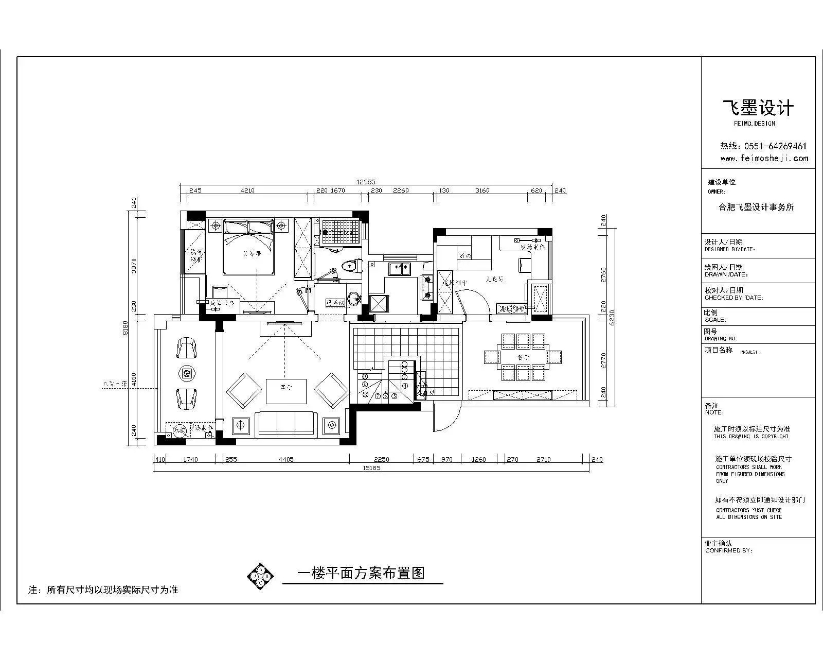
一楼原始户型图与平面方案图
本案户型最初开发商建的时候,留出了很大一片露台面积。原有产证面积也是只有140平米左右,后来通过我们的设计,在二楼位置加盖出一个书房,仍然保留大面积的露台。空间上做了很多合理规划后,现在的实际居住面积是200多平米。(就这样被扩大了60平米,折合现在的房价,不得不说赚大了
)
刚开始接到这个case,我们就一直讨论楼梯的走向究竟怎么安排最合适。业主本身是很纠结的,最后还是选择了我们给出的方案。
我们将楼梯下方做成储物空间可以用来日常收纳杂物,楼梯的左侧空出来的地方放置了玄关鞋凳,方便了居者进出换鞋。
然后我们将另一侧墙面做成黑板墙,给孩子留出一个可以任意发挥想象力的空间。如此一来,在增强了空间的储物能力又能让家更加温馨活泼。
原始户型中,厨房空间很小使用体验感比较差。为了扩大厨房空间进深,我们将厨房的门做成特色的内推墙设计。使厨房的采光条件得到最大化提升,同时保证了厨房空间的完整性扩充。
为了保证入户门厅的完整性,我们将餐厅以及儿童房的门往北移,并且将厨房不能完成的储物条件移至餐厅。所以门厅右侧空间被我们拿出来作了玄关鞋柜与餐边柜。丰富了空间多样化利用。
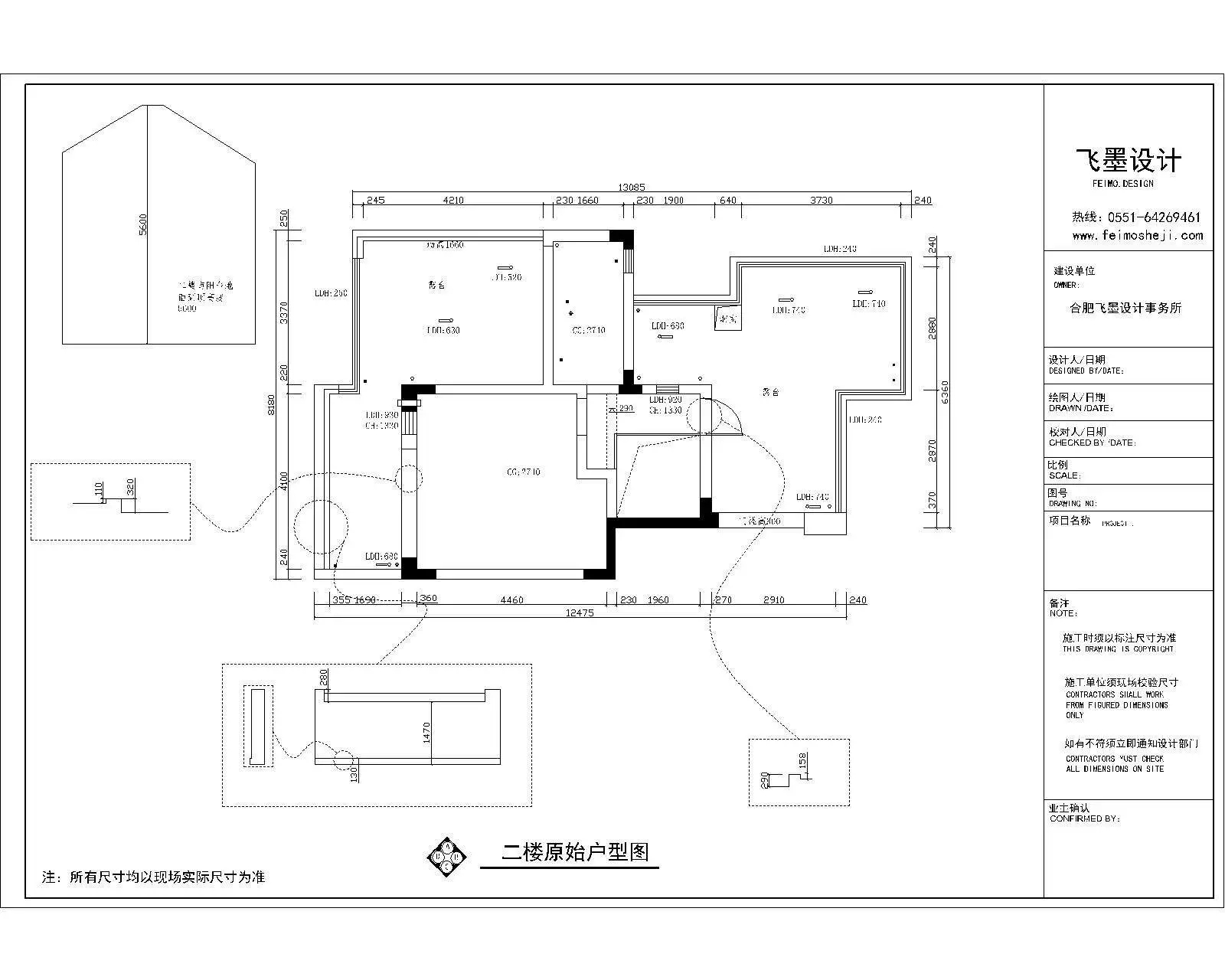
二楼原始户型图与平面方案图
在二楼还有一个小阁楼,由于整个楼梯洞的宽度进深比较狭窄,从一楼上至三楼很拥挤,于是我们非常有创意地把第三层楼梯移至卧室里,并在楼梯下设计了储物空间,提高居室的舒适度与实用性。
软装方案
色彩上,设计师采用了原木色与太妃糖色,让空间中不仅仅多了一抹沉稳大气,更带有了些许的温润雅致,一如居者本人清风儒雅的气质,这便是所谓的居移气,养移体。最好的设计就是让家与人融合在一体,共同成长。
现场实景照
// 客厅
// 餐厅
// 厨房
// 一楼阳台
从客厅一眼望到阳台就感受到了自然清新,休闲式的设计让这个小地方拥有了很多诗意。窗外开阔的视野让风光景色随时映入眼帘,远处眺望到山,近处有家人的陪伴。男主人业余爱好是画画,(水准看上去比专业的还厉害
),阳台的另一个作用就是给他作为画画的场地,一缕清风,一轮明月,三两支画笔,岁月静好的画卷跃然纸上。
// 楼梯
// 主卧
// 父母房
// 书房
在这个装修中发生了一件不可思议的事(飞墨的风水一直很奇妙,来我们家装修的业主,十个里有九个装到一半怀孕了
),我们的女主人有了二宝,改造出来的书房也被预留给未来二宝的房间,主人最后一个私密空间也被占领了。
// 卫生间
// 二楼露台
露台被居者打理的非常漂亮,种下的绿植品种很多,一年四季繁花不断。充足的阳光,芬芳的鲜花,微风不燥,住在这样的世外桃源,哪怕是周末也不用出门,只是在露台上就能消磨掉大半日的时光。另一侧的消防门被男业主画上漂亮的油画(本案的作品名灵感便是来源于这幅画
),创意十足,为露台增添了几分雅致。
无形中的逻辑与规则,让设计变成一件既严谨又理性的事情。我们想要给空间赋予属于你的个人标签,而这就需要了解到你这个人,所有沟通就显得尤为重要。
客服
消息
收藏
下载
最近

































