查看完整案例

收藏

下载
本案是位于上海松江的上叠别墅。屋主一家开朗佛系,喜欢极简纯色系的家居风格,热爱健身和享受生活。这处住所是和家人周末和假期时享受生活的世外桃源。
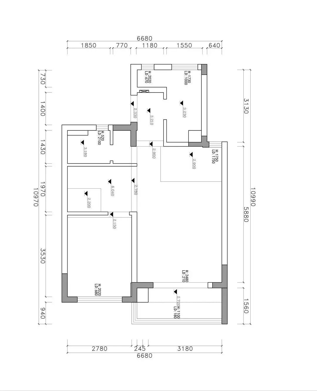
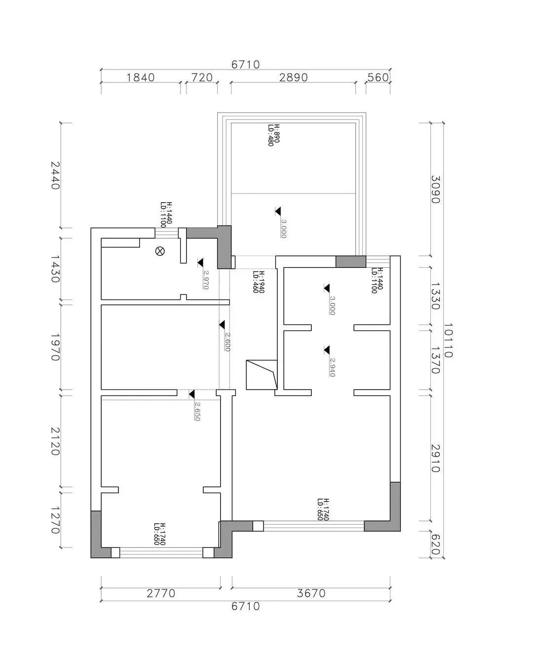
原始户型中,一层入户比较狭窄,厨房空间也不大,除了客餐厅还有一间客卧;二层有两间卧室,其中一间是包含主卫和衣帽间的主人房;三层为坡顶阁楼。
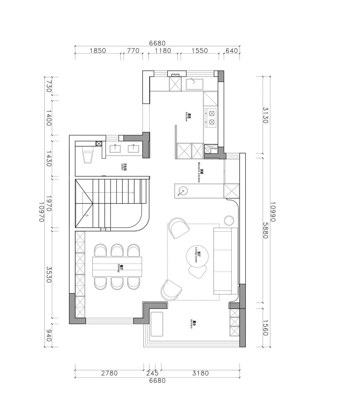
1. 一层——原来涵盖了厨房、餐厅、客厅并兼顾一个次卧,考虑到整个房子的开间比较有限,缺少西厨区,中厨空间也比较小。针对这些问题做了以下调整:进门左手边墙体敲掉,扩大中厨面积;原餐厅位置做成西厨区;取消了一楼次卧,把它打开变成餐厅。
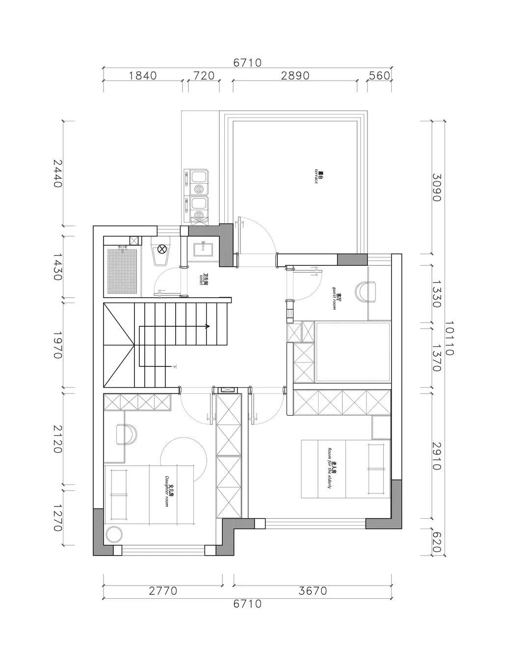
2. 二层——原先有两个卧室和两个卫生间,因为一层已经取消了一个房间,三层是阁楼打算做主卧,整体卧室数量无法满足家人需要四房的要求,所以将二层重新布局。设计成涵盖老人房、女儿房和书房的三房布局,另带一个干湿分离的卫生间和北向洗烘晾晒的阳光房。
3. 三层——原本二层的主卧安排到三层阁楼,形成大套房的格局。阁楼屋顶中间高两边低,有非常多梁体,而且原来的阁楼没有楼梯,所以楼梯需要考量动线后现浇,楼梯上去之后还要思考如何开门洞、如何做卫生间和衣帽间等问题,比一层改造的难度更大。
经过改造后,形成客餐厅一体的空间,空间整洁明亮,色调统一。满足了家人的生活需求和生活期许。
玄关
整体空间采用白色地砖,墙面配色选择白色偏黄一点的乳胶漆。干净极简的白色系,营造了明亮通透的第一印象。
原本入户过道较为狭窄,设计师在进门右手边的墙体做了镜面处理,增加反射和拉伸效果,在视觉上增加空间的深度。
中厨
厨房采用玻璃移门和镜面处理,进一步拓宽视觉深度,使得入户空间更有质感。中厨设置三开门,小冰箱隐藏在门板里。设置了洗碗机与大面积水槽,实用也兼顾了美观。顶部的柜子局部以玻璃门板点缀,使得美味制作的过程不再单调。橱柜右侧部分进行凹入处理,刚好能够安置小电器,整体框架归纳有序,在使用过程能够得心用手。
西厨空间为满足使用配比,设置酒柜、双开门冰箱、岛台和水槽。与客餐厅相连,使用功能更生活化。真实、生动的空间运用,是厨房空间的设计愿景。
黑色双开门冰箱,黑白色系的碰撞增强整体空间的质感,注入一丝生活的韵味。
水吧台的置入,满足客厅活动的不同需求,形成两处空间交流的媒介。
吧台下方做了收纳柜体和抽屉,能够放置常用的茶具及茶叶。水吧台也作为空间的转折,由此通往二层楼梯。
客厅空间采用圆弧元素,显得温润柔和,对阳台承重梁和承重柱也有很好的修饰和弱化作用。
线形几何体与十字灯饰形成客餐厅视觉中心。
为了映衬吧台的形成面,沙发背景使用波浪板造型进行衔接。顶上预留了 20 公分,在此基础上安装反光灯槽,营造整个动线光感。
在灯具设计方面,采用无主灯设计,增加磁吸轨道灯。长条银镜玻璃穿插点缀于背景,显得通透灵动。
布、麻、木,材质纹理的相互碰撞,承托住每颗归家疲惫的心。
家具门板选用暖白色系,黑白灰及木饰面穿插,极简中更显质感。俯瞰客厅,一副静泊禅意的画面。绿色单人沙发,既舒适又点睛。
餐厅
移去餐厅区域原本的客卧,将墙体打开,使得公共空间更加连通与开敞。
餐边的收纳柜也做整体处理,局部采用玻璃门板,与楼梯玻璃扶手和玻璃砖相得益彰,都是灵动空间的妙笔。
楼梯底部设计了踏步,使用艺术漆,并增加踏步灯。让每个实用的角落都自成一道风景。
由餐厅看向中西厨区,光线充足而明亮。
球形的灯体,错落有致,如音符般跃动,成为空间中一抹动人的亮色。
老人房
衣柜造型去繁就简,白色门板有效地扩大视觉面积。镂空处巧妙置入床头柜,运用穿插的手法,既节约空间,也更加实用和便利。
女儿房
女儿的房间不同于整屋的极简主色,以梦幻色彩点缀斑斓梦境,彰显孩童的活力与乐趣。
迪士尼公主蓝粉撞色,古灵精怪,天马行空。
书房
二层新增了一间书房,内部设置榻榻米、书桌一体化设计,满足休闲、客卧等多重功能。走廊玻璃门通往北面露台,目前作为阳光房洗晒区。
客卫
感应式台盆灯,恰到好处的科技力提升了幸福感。
主卧
主人套房置于三层阁楼,别有一番风情。投影墙背面是一间连通的斜顶衣帽间。于阁楼层高最高处摆放主卧双人床,提升空间舒适度。
阁楼开出采光口,利用斜坡顶置入长条书桌。
主卫
顶面开出不规则的几何开口,秩序之中带着几分灵动。
局部采用玻璃砖材质,吸收更多自然光线注入室内。主卧的套房,依据区域不同层高进行功能划分。
三层主卫,为了实现可站立的使用高度,借用二层部分层高,重新现浇楼板,进行下沉,并且下沉后的区域作为主卫独立马桶间。
层高较高的区域,分别是台盆干区和沐浴区。
户型图
(向右滑动查看)
客服
消息
收藏
下载
最近














































