查看完整案例

收藏

下载
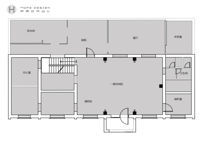
一层原始结构图
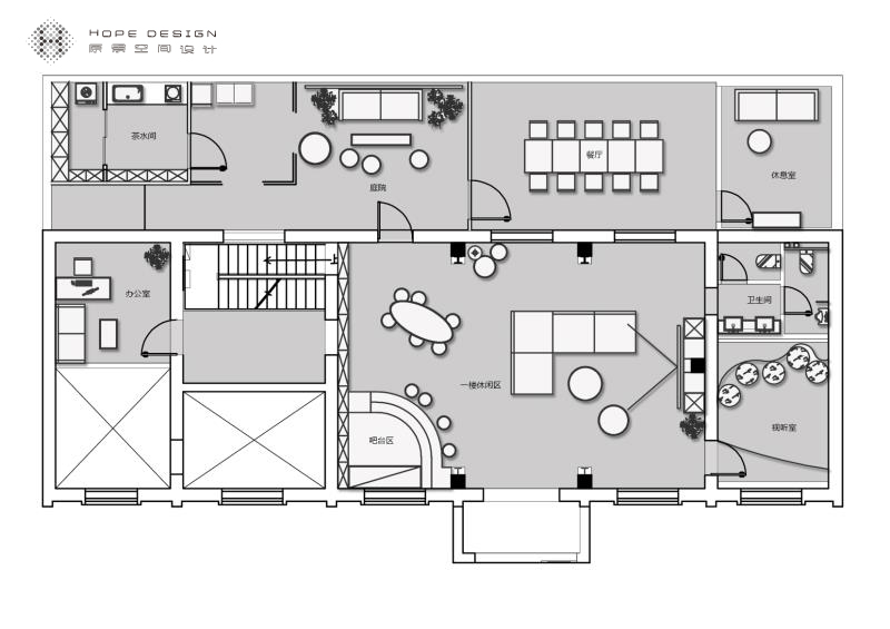
一层平面布置图
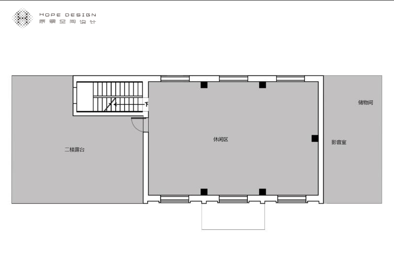
二层原始结构图
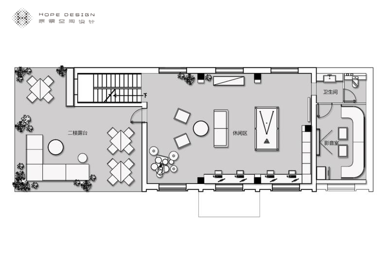
二层平面布置图
周
末生活的另一种模样
你真的知道什么是轰趴吗?
轰趴是“Home Party”音译,其真正的含义是私人举办的家庭聚会,它一直是西方国家传统与主流的生活方式及社交的重要部分,以至于现在不少西方国家更宽泛的称之为”House Party"。而在国内,更多出现在商业场所范畴,为年轻群体提供一个集娱乐、交流、游戏等一体式的多元
空间。
空间更包容
娱乐性质的空间,总是会引用时下热议或主题性较强的手法来作为营造空间氛围的设计主导,但潮流的时效总是比印刷着红色老人的特殊纸更容易从我们身边溜走,所以本案尝试过于符号化的设计,以提供一个纯粹的、多元的、舒适且活泼的多元空间作为设计的核心。
挤压的娱乐精神
每个周六的临界点,我们总会聊聊周末是怎么过的。
有同事说“我周六周日都睡到中午才起,感觉双休日变成单休日”,有同事说“刷刷手机,看看综艺,也没做什么一个周末就过去了”;
有同事说“在家葛优躺,躺得头昏脑胀的,饿了点份外卖”,还有同事眼神空洞地回想半天,说完全没印象。
快节奏的城市生活和繁重的任务,总是容易让我们有时间就想要躺着不动,或是一觉睡过半世纪,学生时期丰富的周末生活与欢乐时光似乎已经离我们很是遥远。
给我一个空间,我可以把真实的自己彻底燃爆!
在如今的这个时代,多模式化已然成为了一种主流和创造的主题。从前游戏只到网吧,咖啡馆只是文青安静吸取养分的地方,酒吧是找刺激和被刺激的徘徊之地,而在这里,你不仅能够把之前的所有想象都一次性满足,狼人杀、大话骰?NO,只怕你想象力不够。
进门明亮的空间内,中央放置着色彩鲜明的布艺沙发,落地的摆放方式注定了将会迎来一次次的飞扑而至。
琳琅满目的酒架上摆满了各种品类的酒,好奇心、味蕾的双重满足。
如果只是三五知己来度过一个休闲的下午茶、拍拍照,网红吧台设计和吧台侧边来自意大利的kartell单椅和法国Ibride的joe北极熊书架组合的休闲区肯定能为你带来丰富的空间感受。
真正的
HOME PARTY 就是要有家的温暖感和自在感,但这里还有丰富美味的食物能够填饱你的肚子呢,是好友聚餐或者是亲自下厨,都是不错的选择。
什么?你还想要唱K+烧烤?没问题,设计师早就知道多元空间包容的重要性,进门处明黄色的L型沙发一下就点燃了做麦霸的热情,工业风的墙面装饰材料让空间更有格调,在这样的空间里唱K说不定连高音也能飙高几度。
户外树影摇弋,灰绿色的墙面和红色单椅在微风斜阳的交映下交织,色彩之所以呈现出这样的饱和度是因为在那个资源匮乏的时代里,自然的取材和粗加工让色彩绽放的同时融入了一点点岁月的痕迹,旧时光新风貌,在这样喧闹的城市当中,这样的空间是不是能让周末多了一点期待与盼望呢?
目地地址
| 北京·高碑店
项目名称
|
AFTER PARTY 轰趴馆
项目设计
| 原景空间设计
项目承建
| 墅造装饰工程
客服
消息
收藏
下载
最近


















