查看完整案例

收藏

下载

翻译
Architect:OFFICE AIO
Location:Shenzhen, Shanghai, Chengdu…China; | ;View Map
Project Year:2022
Category:Showrooms
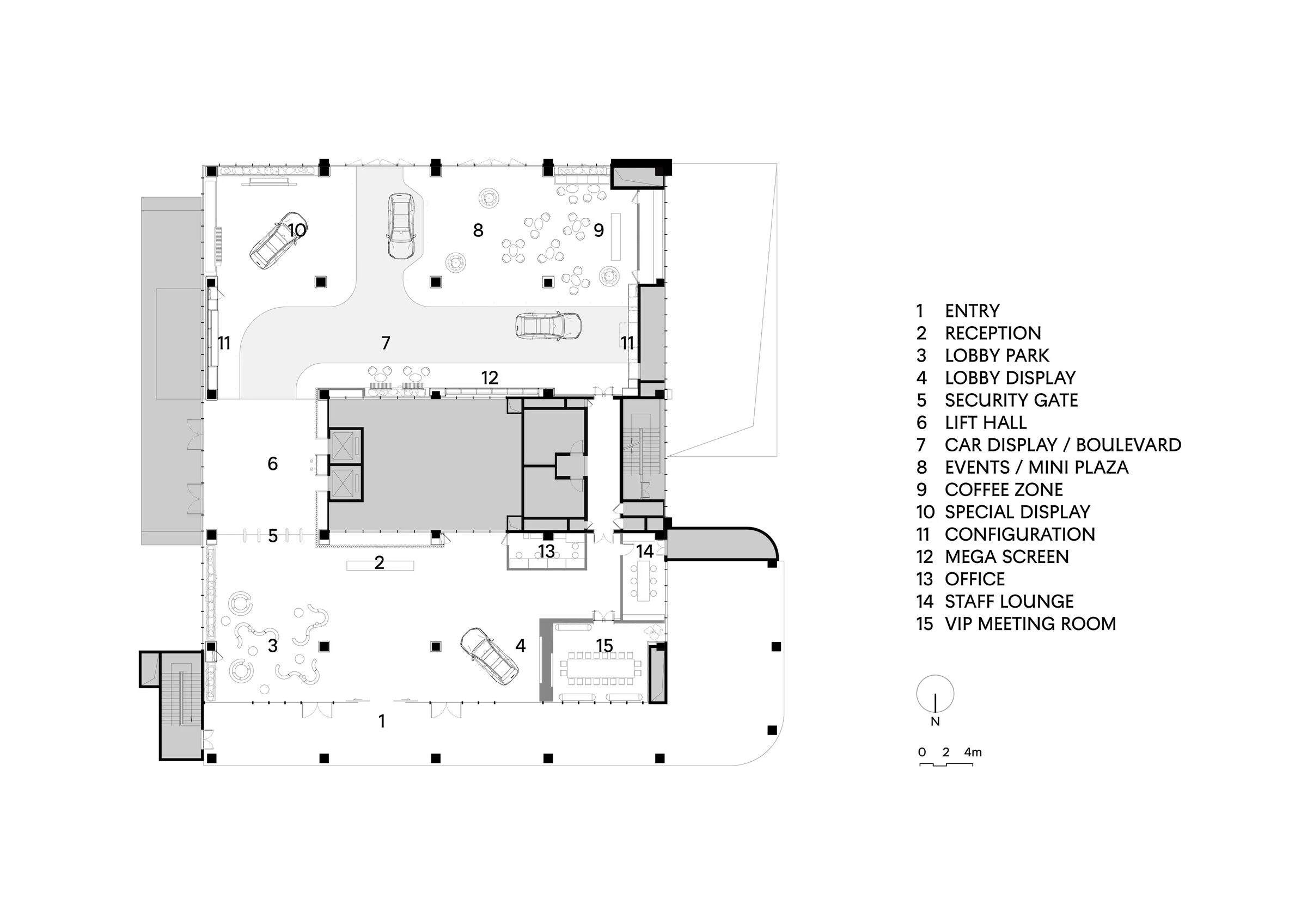
The automobile brand Avatr plans to roll out more than 100 showcase locations in China’s major cities, including experiential centers occupying 200-400 sqm and pop up showcases around atriums in shopping malls. The management hired Office AIO for this holistic task of devising strategies for its retail environments, with spatial design as an entry point to craft experience-focused interactions and establish Avatr’s brand identity. Marrying the elegance of coupes and sportiness of SUVs, the young brand has launched electric vehicles that adapt to both city and nature in an increasingly environmentally-conscious world.
The overarching vision Office AIO pictures is community-oriented. It engages people not with the process of buying a car, but with the outcome of owning an Avatr, to wonder, socialize and live. These experience centres will become destinations where car owners meet before road trips, anticipate the wilderness they are heading to, and celebrate the journeys accompanied by families and friends.
To carry out the concept, the team recreate mini scenes where these automobiles actually live, on boulevards, along buildings, in parks and outside cafes. It situates vehicles in the context we are familiar with, rather than on a podium like a motionless treasure. Zooming out from the focus on cars as products, this gesture promotes a progressive perspective on our future: an evolved naturalistic urbanism. It pares down the full-blown technological immersion of many sci-fi, iterates on the urban texture that history has pass down to us and rethinks nature’s offerings to our metropolitan habitats.
This foundation allows the remaining zones to fit in flexibly. A cafe-like area adjacent to the mini plaza allows staff to connect with customers while their companions can also relax. At the connections between the mini plaza and boulevard, people can interact with cabinets of curiosity, flipping and sliding out drawers where they find configuration options for their wheels and more.
Every Avatr experience consists of the same elements. It is a blend of city and nature, places where Avatr’s coupe SUVs owners will be around. Curves and off-grid palette set a naturalistic undertone. Wooden canopy modules hover over the mini plaza, where wavy travertine walls and plants breathe an additional park vibe. Throughout the space, round corners and smooth floor lines soften the cars’ machinery essence.
Street-like tiles pave the boulevard. When the store hosts special events for its loyal customers, the colours-changing LED that follows the path will activate the drive and completely transform it into a festive spot. The soft lights reflected by the aluminium surfaces touch the space with crispy modernism.
This multi-layered strategy Office AIO implements not only sets Avatr apart with a focus on the community experience. It is also highly efficient — more than 100 retail locations were unveiled within one year. It doesn’t put a car on a pedestal. It brings, Avatr the brand, to people with a tender imagination for the future and respectful attention to the diverse environments we live in.
Architect: Office AIO
Client: AVATR
Principal: Tim KWAN
Team: Isabelle SUN, Xue ZHAO, Xiao YANG, Yvette YU, Steven XIE
Photography: Wen Studio
Lighting Design: Sarah QIAO & Office AIO
▼项目更多图片
客服
消息
收藏
下载
最近


































