查看完整案例

收藏

下载
项目名称:阿根廷Seba住宅
位置:阿根廷
设计公司:Etéreo Arquitectos
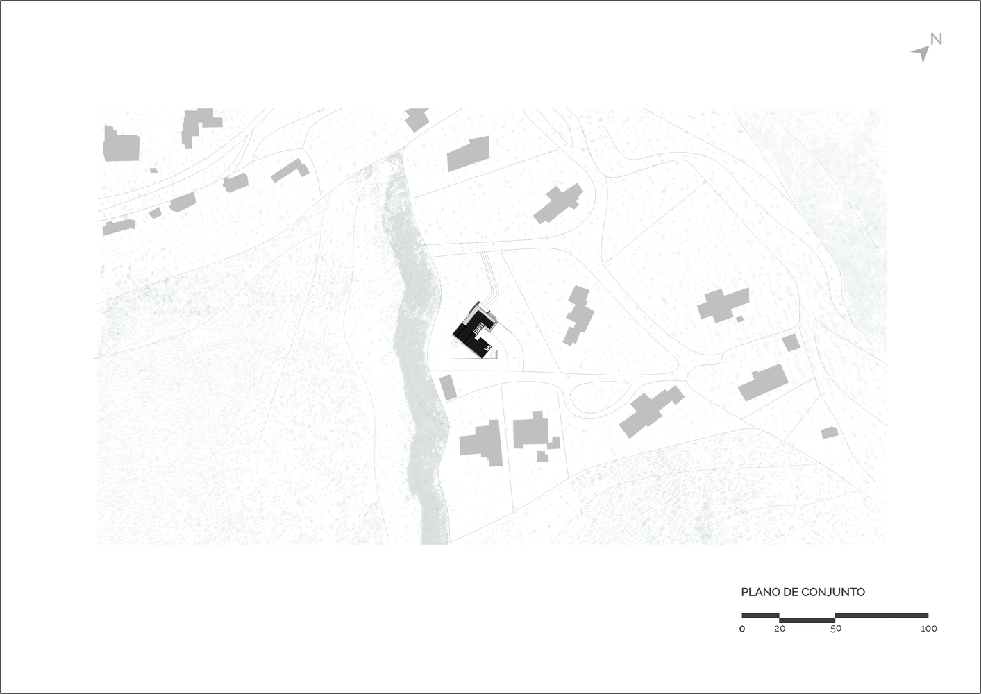
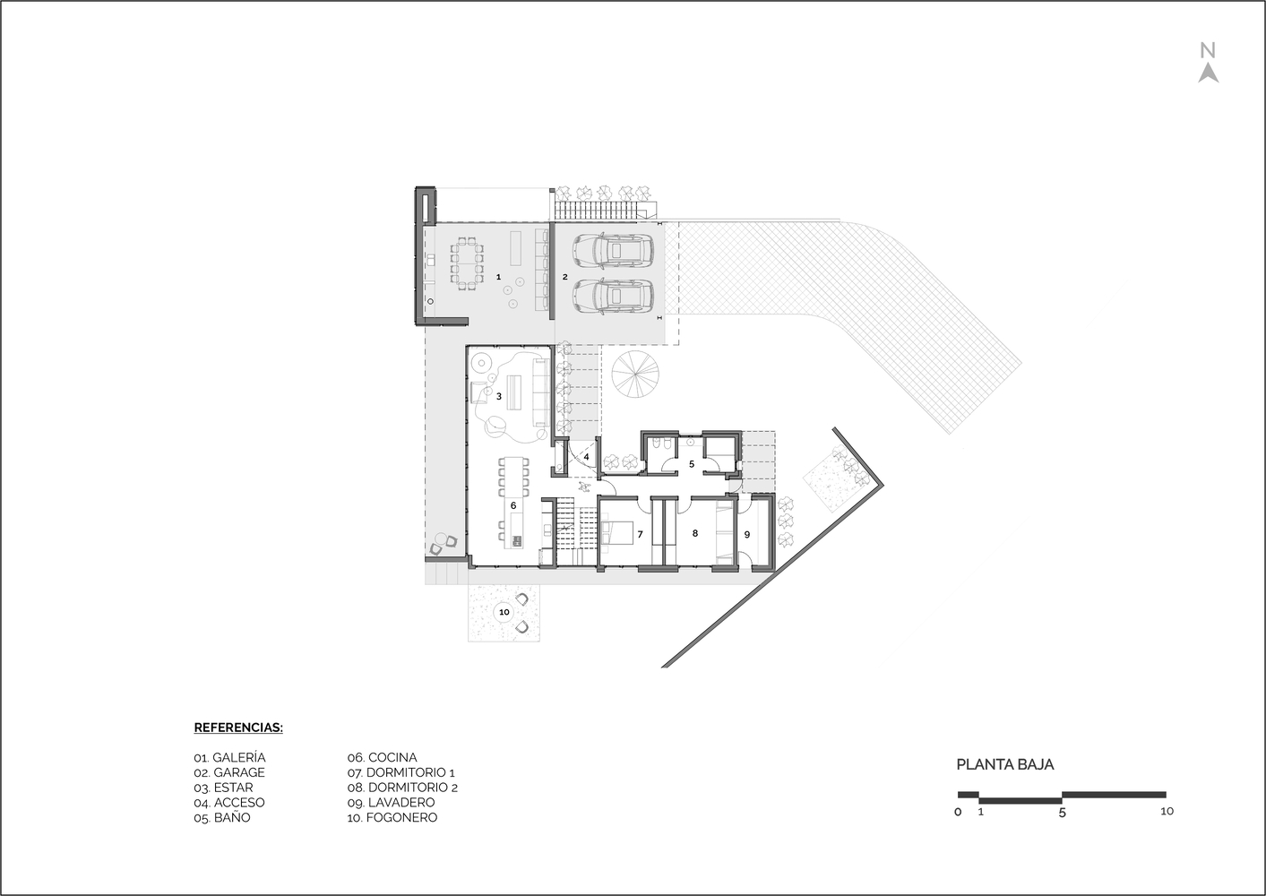
从一开始,这个项目对工作室来说就是一个巨大的挑战。从设计阶段到施工阶段,房子不得不建在不规则的陡峭地形上,因为它位于Tafí del Valle最高的一个小开发区,远离城市,无法快速方便地获得建筑资源,包括材料和劳动力。这块土地有2500平方米,从最高点到最低点有13米的坡度。在这些条件下,我们决定将房子建在地块的最高点,以获得朝向Tafí市、Langostura大坝和Ciudad del Mollar的最佳视角,从而从房子的主要空间创造出一个壮观的视角。房子有350平方米的覆盖面积,分布在三层。地下室利用土地的洼地来容纳一个有盖的停车场、一个工作间和一个储藏室。
一楼被分成一个社交区,由一条单独的厨房、餐厅和起居室组成,与一个露台和一个画廊相连;还有一个私人区域,有两间卧室、一间浴室和一间洗衣房。最后,主卧套房位于楼上,享受着这个地方最好的风景。形式上,这个项目由一个简单的体积和几何图形组成。它是一个石笼底座上的混凝土和玻璃体,以及一个包裹在木质wpc墙板中的立方体,漂浮着,试图从周围环境中脱颖而出,为整体的温暖和质量做出贡献,并使用新的建筑技术来应对当地的气候条件。
阿根廷Seba住宅外部实景图
阿根廷Seba住宅外部实景图1.jpg
阿根廷Seba住宅外部实景图
阿根廷Seba住宅外部实景图
阿根廷Seba住宅外部实景图
阿根廷Seba住宅外部实景图
阿根廷Seba住宅外部实景图
阿根廷Seba住宅局部实景图
阿根廷Seba住宅局部实景图
阿根廷Seba住宅外部实景图
阿根廷Seba住宅外部实景图
阿根廷Seba住宅外部实景图
阿根廷Seba住宅外部实景图
阿根廷Seba住宅内部实景图
阿根廷Seba住宅内部实景图
阿根廷Seba住宅内部实景图
阿根廷Seba住宅平面图
阿根廷Seba住宅平面图
阿根廷Seba住宅平面图
阿根廷Seba住宅平面图
阿根廷Seba住宅平面图
阿根廷Seba住宅剖面图
阿根廷Seba住宅剖面图
阿根廷Seba住宅立面图
阿根廷Seba住宅立面图
阿根廷Seba住宅立面图
阿根廷Seba住宅立面图
客服
消息
收藏
下载
最近






























