查看完整案例

收藏

下载
项目名称:爱尔兰多米尼克·霍尔住宅
位置:爱尔兰
设计公司:卡尔·科特-奈森斯公司, 丹尼斯·伯恩建筑师事务所
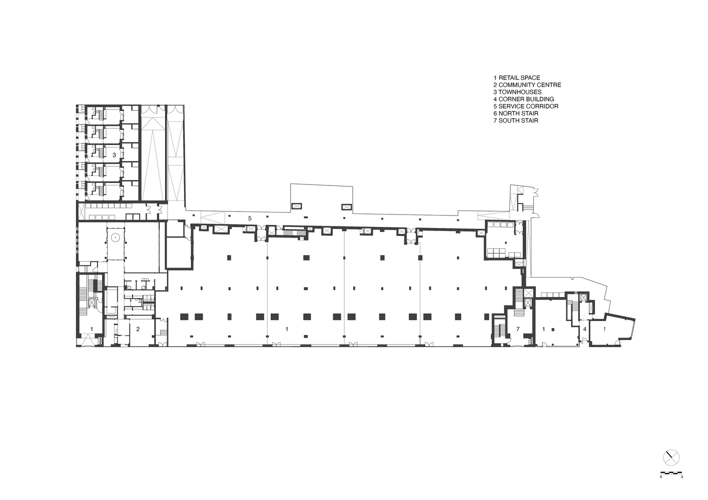
该地块位于下多明尼克街东侧的前多明尼克街公寓楼群的一部分,都柏林1,在与帕内尔街的交界处。都柏林市议会的混合用途开发项目包括公寓和联排别墅,带有社区中心和街道层面的零售空间。多米尼克街沿线的六层街区包括一个由6栋5层公寓“房子”组成的露台,在底层社区中心和商业区提供67套公寓。5栋联排别墅的短露台定义了多米尼克广场,这是一条连接多米尼克街和格兰比广场的新街。该项目的总体规划战略旨在恢复多米尼克街的历史鲜明特征,将其作为城市文化中心的场所和通道。我们将街道表面恢复为砖皮,但将其分层,以提供一个连续的朝南的凉廊,为居民提供欢乐的开放空间和避雨的地方。这为公寓和下面嘈杂的街道提供了一个声音和视觉的屏障。
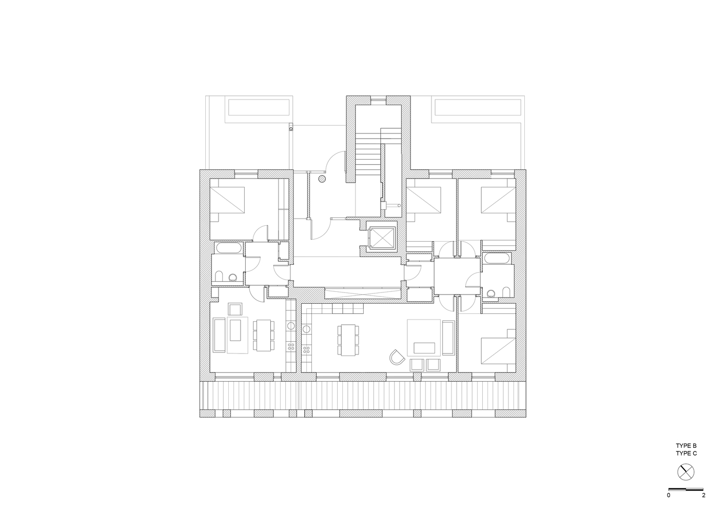
帕内尔街的街角街区有着相当复杂的城市任务,这证明了一种更具雕塑感的形式。它必须协调帕内尔街和多明尼克街的不同规模,并作为一个城市规模的独特建筑清晰地阅读,有自己的开口语言和材料美学。这是帕内尔街上这个复兴城区的一个小地标。转角建筑包括更特殊和定制的住宿,包括3个高依赖性公寓,带有可调节的厨房和带辅助技术的浴室。公寓房是该项目的建筑材料;有6个房子,每个房子都有楼梯和一个沿庭院排列的核心。每套公寓都有一个中央大厅,其大小相当于一个旋转的圆圈,放置在阳光充足的街道一侧的客厅和庭院一侧的一对卧室中。入口门厅的低天花板突出了中央大厅的巨大体积。
两个主要入口位于多米尼克街附近。每个入口都是一个巨大的砖砌大厅,有楼梯和电梯通往上面的庭院,从那里可以进入六个公寓。庭院的后面是一层楼高的凸起结构,种植了一排树木,可以挡风。下面的结构包括储藏室和植物室,以及旧公寓里的玛利亚神殿。花园空间被美化成房间,包括座位区、草坪和游戏空间。庭院在某一点被挖掘,为街道上的社区中心创造了一个下沉花园。该项目旨在达到NZEB标准。我们开发了一个定义清晰、高度隔热和气密的外壳,并小心翼翼地设计出热桥。该建筑配备了空气源热泵、雨水收集、光伏板和带热交换的集中通风系统。
爱尔兰多米尼克·霍尔住宅外部实景图
爱尔兰多米尼克·霍尔住宅内部实景图
爱尔兰多米尼克·霍尔住宅平面图
爱尔兰多米尼克·霍尔住宅平面图
爱尔兰多米尼克·霍尔住宅平面图
爱尔兰多米尼克·霍尔住宅平面图
爱尔兰多米尼克·霍尔住宅平面图
爱尔兰多米尼克·霍尔住宅平面图
爱尔兰多米尼克·霍尔住宅平面图
爱尔兰多米尼克·霍尔住宅平面图
爱尔兰多米尼克·霍尔住宅平面图
爱尔兰多米尼克·霍尔住宅平面图
爱尔兰多米尼克·霍尔住宅平面图
爱尔兰多米尼克·霍尔住宅平面图
爱尔兰多米尼克·霍尔住宅剖面图
爱尔兰多米尼克·霍尔住宅剖面图
爱尔兰多米尼克·霍尔住宅剖面图
爱尔兰多米尼克·霍尔住宅剖面图
爱尔兰多米尼克·霍尔住宅立面图
爱尔兰多米尼克·霍尔住宅立面图
客服
消息
收藏
下载
最近























