查看完整案例

收藏

下载

翻译
Architect:Side Fx Arquitectura
Location:Quito, Ecuador; | ;View Map
Project Year:2022
Category:Showrooms;Exhibitions
The Chit-Chat Restroom was part of the Casas Project 2022 annual event where Cosas Magazine brings together architects and designers with new visions and proposals in architecture and interior design. Each designer creates an ephemeral space in an abandoned house that is open to the public for a week. The challenge lies in creating an innovative proposal within the restrictions that come with restoring a house without changing its structure. Our studio intervened in the restrooms of the event using products from Briggs, a brand specialized in construction finishes and bathroom accessories.
Applying neuroarchitecture techniques is a pillar for SideFx Architecture. Thus, besides their functional use, these restrooms become a social and fun experience where visitors interact freely and discover new sensations in each cubicle. The concept of Chit-Chat (informal expression for a light and casual conversation) was taken to inspire these interactions with the space’s configuration.
The main feature of the project is its inclusive approach. The men's and women's restrooms were unified in a single space allowing anyone, regardless of their gender, to choose any cubicle to use. The ease of access to any cubicle results in a fairer and more equitable bathroom for all.
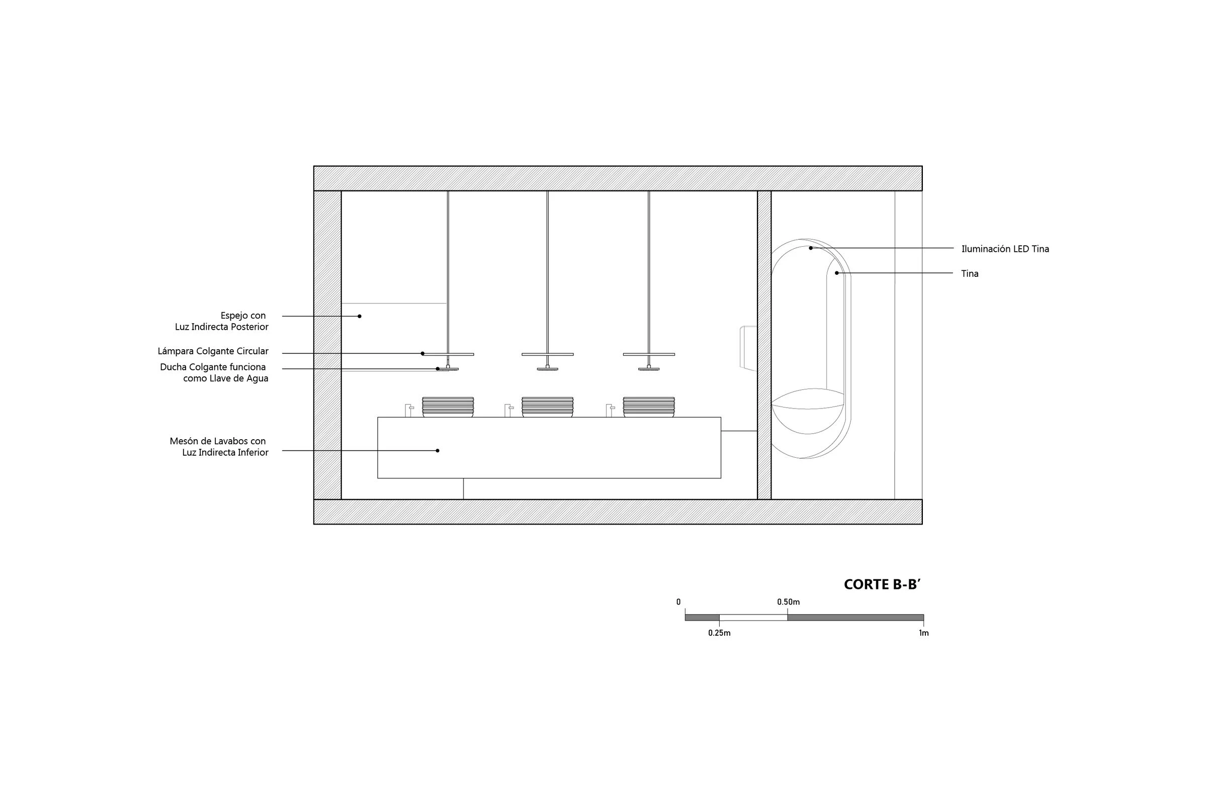
To encourage social interaction, the sinks are the focal point where all users meet. The use of mirrors creates a visual connection between the areas and the visitors. Thus, washing hands becomes a moment of community and connection between unknown people.
Color is a unifying tool to reinforce free use and movement. A monochrome space is proposed with orange as the protagonist to create a vibrant and energetic atmosphere. Upon entering, the color changes the mood of the people, stimulating exploration and inviting visitors to discover the sensory experiences of the bathroom.
Seeking to change the way we perceive a restroom, SideFx explored new possibilities and ways of using common restroom accessories. The tubs become comfortable seats where visitors can sit back and relax while they wait their turn, enjoy conversations, or charge their cell phones. From the ceiling emerge showers that function as faucets for the sinks which transform them into playful and interactive elements where users control the flow of water. The limited height of the space required an unconventional lighting proposal, using indirect light sources such as strip wall sconces, mirrors with LED light or LED strips on the ceiling. This creates depth and texture in the space that contributes to achieving an immersive and futuristic atmosphere where traditional conventions of what a restroom should be are lost.
The visual appeal of each cubicle turns the space into a kind of ephemeral art gallery. The themes of each one makes visitors interact with the space taking pictures and sharing their experience on social networks as if the restrooms were an art installation.
Thus, the Chit-Chat Restroom fuses functionality, design, and social interaction, offering a space that defies convention, inspires creativity, and provides a memorable experience.
▼项目更多图片
客服
消息
收藏
下载
最近


























