查看完整案例

收藏

下载
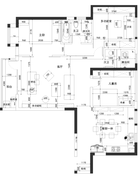
项目地址:武汉市 汉阳 邓甲新城
建筑面积:128㎡
设计机构:桃弥设计
设计风格:工业风
工程造价:40万(含电器)
主要材料:红砖、水泥、钢板等
项目摄影:汪海波
设计说明:红砖,水泥墙,集装箱,破旧的梁体,屋里随处可见的钢铁元素是不是让人眼前一亮~ 前期与业主沟通整体风格时,我们就发现他们的包容度甚广,口味也偏向独特的重口味工业风格,当下一拍即合,成就了这么一套颇有韵味工业风~纵观户型图,这是一个规整的三房两厅的空间。由于是一家三口居住,而原本进门走道距离过长,所以我们把里面的两房隔为一个大套间。由于平时业主在家用餐的时间不是很多,我们就把餐厨合为一体,这样在视觉上既缩短了走道的距离,也使空间更为紧凑一些。
桃弥设计 李文彬 其他作品
客服
消息
收藏
下载
最近




















