查看完整案例

收藏

下载
项目名称:巴黎Francilian住宅
位置:巴黎
设计公司:Hemaa Architectes
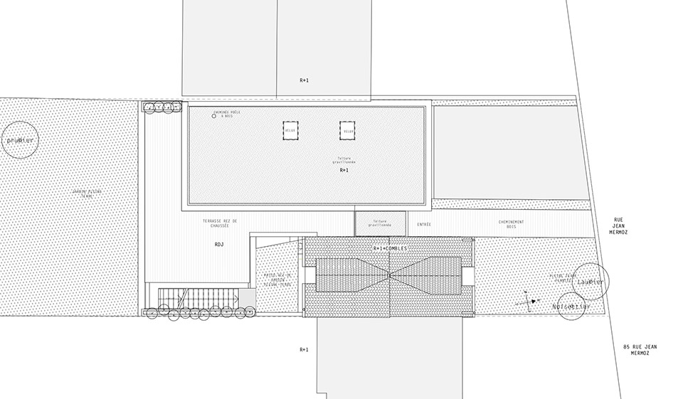
在巴黎郊区,Hemaa Architectes设计改造的独栋住宅扩建项目将两个不同时期的建筑结合在一起,同时充分利用了场地的高差变化。对现有结构的技术和历史分析表明,这座住宅曾经过多次扩建与翻新,随着时间的推移,原始的结构几乎面目全非。因此,建筑师决定沿着承重砖墙将住宅一分为二,并仅保留状态良好的建筑部分。从原建筑中拆除的石材被储存在现场,然后沿着暴露的承重墙重新形成新的住宅立面。新的扩建部分融入了场地的自然地形,街道一侧采用半地下的建筑形式,花园一侧则与邻近的建筑对齐。玻璃缝隙作为住宅的新入口,在现有住宅和扩建部分的两种不同建筑风格之间形成了自然的过渡。入口的中性建筑风格让建于不同时代的住宅体量部分能够独立存在。在花园一侧,新的体量围绕着保留下来的历史建筑部分建造,并形成了一座天井庭院,为新旧之间留下了一定的留白空间,展现出对建筑历史的尊重。扩建部分中。
浅色的长砖与城镇的精美建筑相呼应,这些建筑基本上都是采用磨石和实心砖建造而成的。窗口的位置由白色建筑混凝土强调出来,而窗框则由天然橡木制成。临街一侧,建筑呈现出一种更加安静且内向的姿态,以保护其中居住者的隐私。而在南向的花园一侧,扩建部分则面向种植了果树的花园开放。底层空间中容纳了客厅,该空间作为花园的延续采用了大面积的滑动玻璃窗,将室内空间向自然开放。后部的天井庭院则为底层生活空间与交通空间引入了充足的自然采光与良好的通风。与街道平齐的一层空间中容纳了餐厅与厨房,并直接通向俯瞰花园的大露台。四间卧室则位于上部的两个楼层中,并通过入口上方玻璃走道相互连接。在这里,人们将再一次注意到砖材与磨石的对比,穿越两个不同建筑体量的瞬间就如同一场穿越历史的时间之旅。
巴黎Francilian住宅外部实景图
巴黎Francilian住宅外部实景图
巴黎Francilian住宅外部实景图
巴黎Francilian住宅外部实景图
巴黎Francilian住宅外部实景图
巴黎Francilian住宅外部实景图
巴黎Francilian住宅外部实景图
巴黎Francilian住宅外部实景图
巴黎Francilian住宅外部实景图
巴黎Francilian住宅外部实景图
巴黎Francilian住宅外部实景图
巴黎Francilian住宅外部实景图
巴黎Francilian住宅内部实景图
巴黎Francilian住宅内部实景图
巴黎Francilian住宅内部实景图
巴黎Francilian住宅内部实景图
巴黎Francilian住宅内部实景图
巴黎Francilian住宅内部实景图
巴黎Francilian住宅内部实景图
巴黎Francilian住宅平面图
巴黎Francilian住宅平面图
巴黎Francilian住宅平面图
巴黎Francilian住宅平面图
巴黎Francilian住宅剖面图
巴黎Francilian住宅剖面图
客服
消息
收藏
下载
最近




























