查看完整案例

收藏

下载
背景
Background
水西教育区由9班幼儿园、12班小学和社区图书馆三部分组成,是水西车辆段上盖TOD综合开发的一个组成部分。用地横跨盖上和白地,需要衔接街道、机动车库和车辆段盖上三个标高。同时,作为TOD上盖居住大盘的一部分,基地还需要预留出盖上施工图通道和销售通道,加之多种规划退线的制约,使得可建设范围极端局促。
▼整体鸟瞰,Aerial view of the site ©广州天华建筑设计有限公司(上海天华建筑设计有限公司广州公司)
Shuixi Education Block includes a kindergarten, a primary school and a community liberary, which is a part of the Shuixi TOD Development Program. The site is divided into two parts, the platform over the metro-depot and the white land without metro facilities. Meanwhile, construction and sales passages should be reserved, kinds of setback constraints the construction scope.
▼小学鸟瞰,Aerial view of the primary school ©广州天华建筑设计有限公司(上海天华建筑设计有限公司广州公司)
体量操作
General Operation
形体操作的起点源于弥合盖上盖下落差的想法,试图消除巨大的上盖体带来的疏离感。通过降低幼儿园首层标高,让幼儿园二层平接盖上平台,形成双首层,同时也减少了对街道的压迫感。将社区图书馆布置在小学下方,垫起街道和盖上之间的8米高差,形成更积极的街道界面。
▼小学北侧外观,North appearance of the primary school ©广州天华建筑设计有限公司(上海天华建筑设计有限公司广州公司)
The depot platform with massive volume is isolated with street. With the purpose to abate the height difference, the first operation is lowering the first floor and connecting the platform with second floor smoothly. Meanwhile, Placing the community library below the primary school makes a better pedestrian interface.
▼小学北侧外观,North appearance of the primary school ©广州天华建筑设计有限公司(上海天华建筑设计有限公司广州公司)
幼儿园
The kindergarten
地上的回廊,空中的操场
是彩虹吹起了泡泡
毡帽,蟒蛇还是大象
是想象张开了翅膀
Winding corridor, playground in the air
It’s the rainbow blowing bubbles
felt hat, boa constrictor or elephant
It’s imagination spreading its wings
▼幼儿园鸟瞰,Aerial view of the kindergarten ©广州天华建筑设计有限公司(上海天华建筑设计有限公司广州公司)
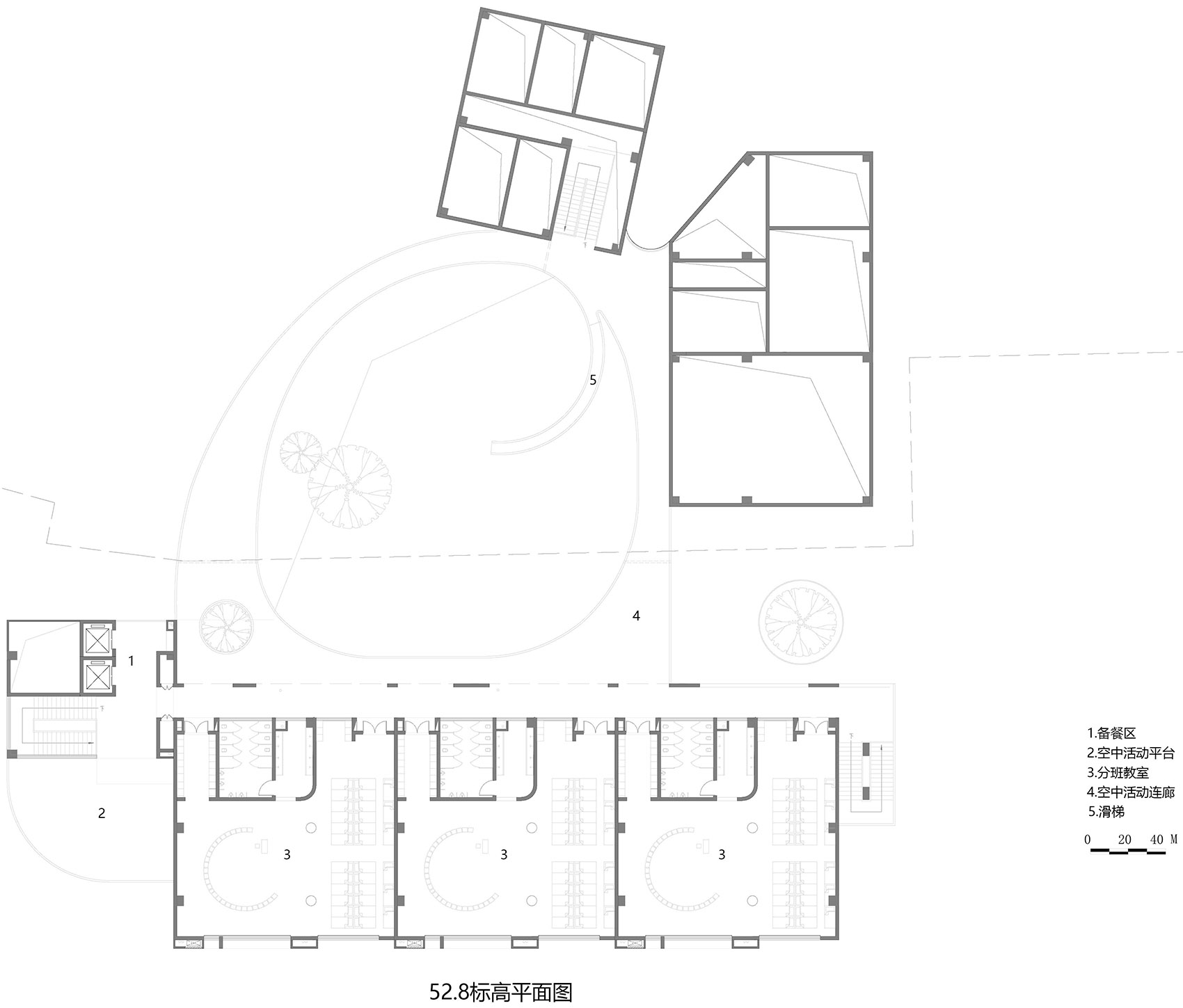
幼儿园的设计始于一个被冰山挤压的泡泡意向:就像《小王子》里那顶似是而非的帽子,充满了童年的想象。用圆圈状的彩虹桥整合起多个冰山状的小体量,形成无边却有界的小世界。初始方案还设计有坡道,作为环道的起点,串联起迷宫般自由探索的上下体验。设计团队始终抱持这样的观点:适度的高差、安全的冒险甚至轻微的受伤都是儿童成长的积极组成。生活单元、音体室和行政单元形成大中小三组冰山体块,不同坡向的坡屋顶定义了内院的天际线。端部的门厅空间需要整合多个标高之间的关系,最终发展成一个几何城堡。抽象的彩虹、冰山与城堡意向构成了特有的领域感,希望能给小朋友带来不一样的童年记忆。
▼幼儿园南侧外观,South appearance of the kindergarten ©广州天华建筑设计有限公司(上海天华建筑设计有限公司广州公司)
▼幼儿园南侧外观,South appearance of the kindergarten ©广州天华建筑设计有限公司(上海天华建筑设计有限公司广州公司)
Design begins with an inspiration of a bubble squeezing by icebergs. Just like the hat in Le Petit Prince, our perpose is all about imagination of kids. The rainbow loop integrates several icebergs, it makes a petit world with softened boundry. A ramp is arranged to connect the loop in initial scheme. Proper evelation difference and more adventure is encourage. Living unit, phonetic chamber and administrative unit with pitched roofs define the contour line of the courtyard. These geometris are finished with white tiles, witch formed a cluster of icebergs.
▼幼儿园南侧沿街外观,South appearance of the kindergarten along street ©广州天华建筑设计有限公司(上海天华建筑设计有限公司广州公司)
▼幼儿园里的小花园,Garden in the kindergarten ©广州天华建筑设计有限公司(上海天华建筑设计有限公司广州公司)
小学
Primary school
白地的建设范围以及住宅的法线避让关系,将建筑范围限定在一个局促的用地内。因此布局上采用了紧凑的U型围合,并在北侧打开一个开口,让内院可以和远处的山体形成空间对话。运动场受到北侧高速路的退线影响,只余下一个狭小的梯形空间,无法满足200米长度标准跑道的布置。经过沟通,业主采取了非标运动场的提案,即盖上的140米跑道和白地上的200米跑道的组合。长跑道从短跑道顺延而出,经过架空层穿越到内院,将体育活动室和阅览室从主体建筑中切分出来,形成了一大一小两个“岛屿”,为空间增加了更多洄游探索的乐趣。突破规范的“创新设计”虽属无奈之举,但也在利弊有无之间做出了更好的取舍。
▼小学与小区花园互动,Interaction between primary school and department complex ©广州天华建筑设计有限公司(上海天华建筑设计有限公司广州公司)
▼小学东南沿街外观,Southeast appearance of the primary school along street ©广州天华建筑设计有限公司(上海天华建筑设计有限公司广州公司)
▼共享入口平台,Sharing the entrance terrace ©广州天华建筑设计有限公司(上海天华建筑设计有限公司广州公司)
The construction scope is limited by the white land and the local building code. A U-shaped building would be a good choice to adapt this site. The courtyard opens to the distant hills, which enhanced communication between buildings and environment. The 200 metres long standard racetrack is too big for this site, a proposal of a non-standard racetrack which enters into the courtyard is accepted. Some functional space is separated from the main building as the track gets through.
▼小学的环抱式中庭,Enclosed atrium of the primary school ©广州天华建筑设计有限公司(上海天华建筑设计有限公司广州公司)
▼小学跑道与中庭岛屿,Tracks and the terraces in atrium ©广州天华建筑设计有限公司(上海天华建筑设计有限公司广州公司)
对话
Space dialogue
幼儿园和小学可以通过一个公共接送广场衔接到街道标高,围绕这个广场两侧,形成了两组建筑的入口门厅。幼儿园门厅采用加法,是体块的聚落组合;小学门厅采用减法,是负空间的色彩溶洞,一凸一凹之间上演空间的过招。两组建筑互为边界,小学运动场与幼儿园活动场之间自然形成了一道弧形围栏,彩虹泡泡上奔跑的幼童可以俯瞰隔壁的读书郎,形成隔而不断的混龄对话。
▼幼儿园彩虹与冰山,Rainbow and iceberg in the kindergarten ©广州天华建筑设计有限公司(上海天华建筑设计有限公司广州公司)
A square connects the kindergarten and the primary school to the street. Two lobby space defines this square and makes a complementary relationship. One uses addition, which is a cluster of volumes. One uses subtraction, which is a cave of colors. Two buildings define the boundries of each other with the arc-shaped fence. Different aged pupils would see each other from the rainbow bubble.
▼幼儿园里的圆与山,Circle and mountain in the kindergarten ©广州天华建筑设计有限公司(上海天华建筑设计有限公司广州公司)
遗憾与总结
Epilogue
整个设计的过程中,有意避免过多的色彩和太刻意的简约,在热闹和矜持之间保持一种中性的态度:日常感就刚刚好。落地过程中受制于高周转时代的各种仓促:诸如栏杆形式和各种材料的变更、增加的楼梯和取消的坡道等等。转念想,凡此种种的不成全也是此时此地的如实记录。
We look for a intermediate state between multicolor and minimalism, and keep a neutral attitude, neither more or less. The completed result is barely satisfacrory. Some initial purpose has changed a lot in the construction process, which is the result that has to be accepted in the age of speed.
▼整体鸟瞰效果图,Rendering of the whole site ©广州天华建筑设计有限公司(上海天华建筑设计有限公司广州公司)
▼幼儿园效果图,Rendering of the kindergarten ©广州天华建筑设计有限公司(上海天华建筑设计有限公司广州公司)
▼小学效果图,Rendering of the primary school ©广州天华建筑设计有限公司(上海天华建筑设计有限公司广州公司)
▼总平面图,Masterplan ©广州天华建筑设计有限公司(上海天华建筑设计有限公司广州公司)
▼小学首层平面图,Ground floor plan of the primary school ©广州天华建筑设计有限公司(上海天华建筑设计有限公司广州公司)
▼小学二层平面图,Second floor plan of the primary school ©广州天华建筑设计有限公司(上海天华建筑设计有限公司广州公司)
▼小学三层平面图,Third floor plan of the primary school ©广州天华建筑设计有限公司(上海天华建筑设计有限公司广州公司)
▼小学立面图1,Elevation 1 of the primary school ©广州天华建筑设计有限公司(上海天华建筑设计有限公司广州公司)
▼小学立面图2,Elevation 2 of the primary school ©广州天华建筑设计有限公司(上海天华建筑设计有限公司广州公司)
▼小学立面图3,Elevation 3 of the primary school ©广州天华建筑设计有限公司(上海天华建筑设计有限公司广州公司)
▼幼儿园平面图45.4标高,Level 45.4 plan of the kindergarten ©广州天华建筑设计有限公司(上海天华建筑设计有限公司广州公司)
▼幼儿园平面图49标高,Level 49 plan of the kindergarten ©广州天华建筑设计有限公司(上海天华建筑设计有限公司广州公司)
▼幼儿园平面图52标高,Level 52 plan of the kindergarten ©广州天华建筑设计有限公司(上海天华建筑设计有限公司广州公司)
▼幼儿园东立面,East elevation of the kindergarten ©广州天华建筑设计有限公司(上海天华建筑设计有限公司广州公司)
▼幼儿园南立面,South elevation of the kindergarten ©广州天华建筑设计有限公司(上海天华建筑设计有限公司广州公司)
▼幼儿园西立面,West elevation of the kindergarten ©广州天华建筑设计有限公司(上海天华建筑设计有限公司广州公司)
▼幼儿园剖面1,Section 1 of the kindergarten ©广州天华建筑设计有限公司(上海天华建筑设计有限公司广州公司)
▼幼儿园剖面2,Section 2 of the kindergarten ©广州天华建筑设计有限公司(上海天华建筑设计有限公司广州公司)
客服
消息
收藏
下载
最近




































