查看完整案例

收藏

下载
项目名称:越南DHY住宅
位置:越南
设计公司:AHL建筑师事务所
缓冲区对于过去的自建房来说已经不再陌生。在没有空调和风扇的时候,许多代人从经验中学会了在建造房屋时能够适应越南湿热的热带气候:凉爽的风向;使用深阳台;格子;厚墙;种植一棵大树来制造阴凉;水面…所有这些都是创造缓冲空间的因素,为里面的生活空间带来很多价值。对于任何家庭来说,门廊都是一个很好的缓冲区。无论是室内还是室外,门廊都可以被认为是民居中最“人性化”和最具建筑风格的空间之一,尤其是在越南北部。这是一种空间模糊性。是湿/热与干/阴的交集;是一个多功能的空间,适合家庭活动和邻里交往。遵循这一理念,DHY住宅——一个女儿(一位著名的时装设计师)为她母亲在越南北部中部地区(太原省)的家乡建造的房子——是一个由不同比例的可用空间和门廊/缓冲区/或模糊空间组合和安排而成的住宅结构。DHY宫因为和边缘的挫折几乎有4个开口边。结合主要生活区被倾斜系统深深地倾斜和覆盖,有遮荫树的庭院,DHY房子的整个生活空间可以打开,结合吊扇和自然通风,业主可以在最热的一天没有空调。
越南DHY住宅外部实景图
越南DHY住宅外部实景图
越南DHY住宅外部实景图
越南DHY住宅外部实景图
越南DHY住宅外部实景图
越南DHY住宅外部实景图
越南DHY住宅外部实景图
越南DHY住宅内部实景图
越南DHY住宅外部实景图
越南DHY住宅外部实景图
越南DHY住宅外部实景图
越南DHY住宅外部实景图
越南DHY住宅内部实景图
越南DHY住宅内部实景图
越南DHY住宅剖面图
越南DHY住宅剖面图
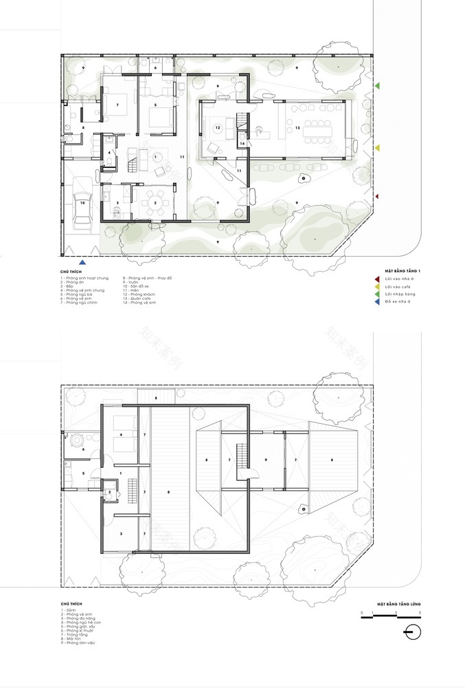
越南DHY住宅平面图
客服
消息
收藏
下载
最近




















