查看完整案例

收藏

下载
项目坐标:深圳 锦绣御园三期
建筑面积:187m2
硬装设计:维塔空间设计 朱俊翔
软装设计:vitaCASA 软装设计 钟旋
设计说明:
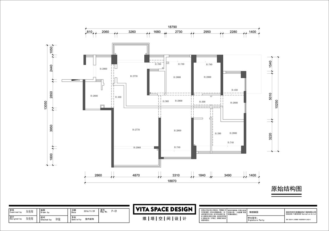
原始结构是小双拼户型,把中间隔墙打通后,我们把原有大门往外扩形成一个大的玄关区域,然后在厨房面向玄关区墙面设计了无边框推拉窗,关闭时是灰玻饰面,开放时是厨房对外的透气窗口。拥有了中西厨与通透餐厅,传统意义的客厅被打造成一个充满精神食粮的大型阅读区,行动间自有书香萦绕,谢绝外界的过多讯息。整个开放式的格局让家人的互动性更好,空气与光线自由流通。
家,是心灵最温暖的所在。妥善安放着我们在这世间的多重身份以及身份所承载的审美与生活需求。 而空间的形体塑造与行为动线,融合着我们面对生活的个性与态度。
我们想用一种谦逊内敛的生活之道,来体现现代生活的美好与精神文化的富足。期待空间能自然生成温度,让每一个相聚的时刻,都能形成家人分享传递的独特空间记忆。艺术的氛围完美体现在整个空间,移步移景,与生活合一。
版主插话:这套作品有哪些过人之处?欢迎有奖评论!!!
精品留言奖励100-300金钱!
Save
客服
消息
收藏
下载
最近





































