查看完整案例

收藏

下载
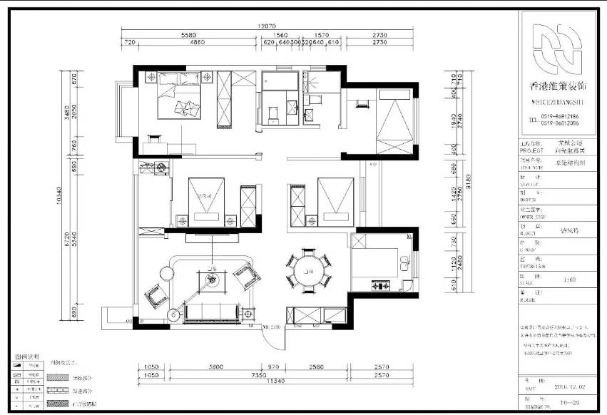
项目地点:常州〔龙城公馆〕
130
㎡
设计公司:香港维策装饰
户型图
Plane layout
温和的木制,暖色主色调
精工制作的金属灯具
清新、健康
写尽现代家居的诗意
客厅应该是这样的一个建筑
不但能够满足基本的生活需求
而且要能充分享受自然
一切毫不矫揉造作的事物
毫不刻意雕琢的美
都能让人久久欣赏,难以忘怀
整体风格以温和的木制和暖色的米色为主色调
另外部分墙面及软装饰用温文尔雅的淡蓝色
为过渡基调完成了整个空间的搭配
让整个空间呈现出清新.素雅的空间气质
由于整个空间的整体材质都是属于比较“软”的材质
所以在客餐厅及主卧的空间搭配上
在局部顶面和里面上用到了一些金属材质来做点缀
这样无形给空间带来了一些灵动性
增加了空间在材质上的对比
I
在书房的设计上
由于业主对书房的使用时间很长
所以整体墙面用到的是比较跳跃的星空蓝作为基色
这个不会让人产生疲劳感
客服
消息
收藏
下载
最近











