查看完整案例

收藏

下载

翻译
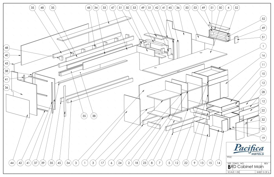
This project was for Pacifica Hotels.. the Hotel was Wayfarer Hotel in Los Angeles, California, Downtown LA. This was for the engineering of the reception front desk for shop drawings for building the millwork. The software used was Solidworks.
客服
消息
收藏
下载
最近









