知末
知末
创作上传
VIP
收藏下载
登录 | 注册有礼

九龙仓兰宫五居室设计

2016/07/30 09:07:43
查看完整案例
微信扫一扫
收藏
下载
接到这个项目完全属于比较意外,业主是个非常年轻的young man~有着留学经历,所以对国内常见宫廷式的别墅设计非常不感冒
开始设计以后,给户型的连续性做了很多大改造,550㎡的空间,未来最多5个人常住的需求给空间保留了大量的休闲区域,所以如何把空间做的FUN起来,是我们第一考虑的
九龙仓兰宫五居室设计-2
九龙仓兰宫五居室设计-3
九龙仓兰宫五居室设计-4
九龙仓兰宫五居室设计-5
九龙仓兰宫五居室设计-6
九龙仓兰宫五居室设计-7
九龙仓兰宫五居室设计-8
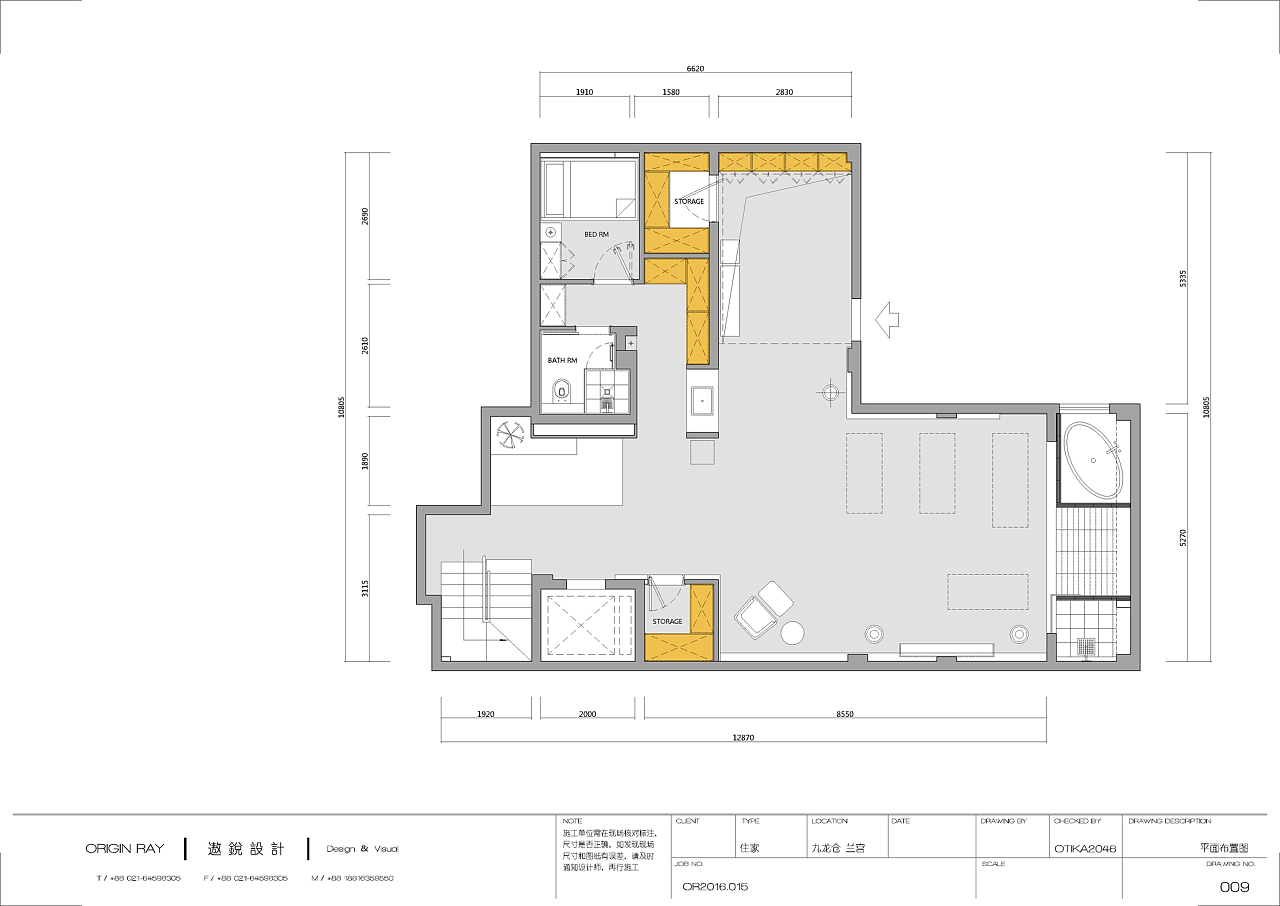
九龙仓兰宫五居室设计-9
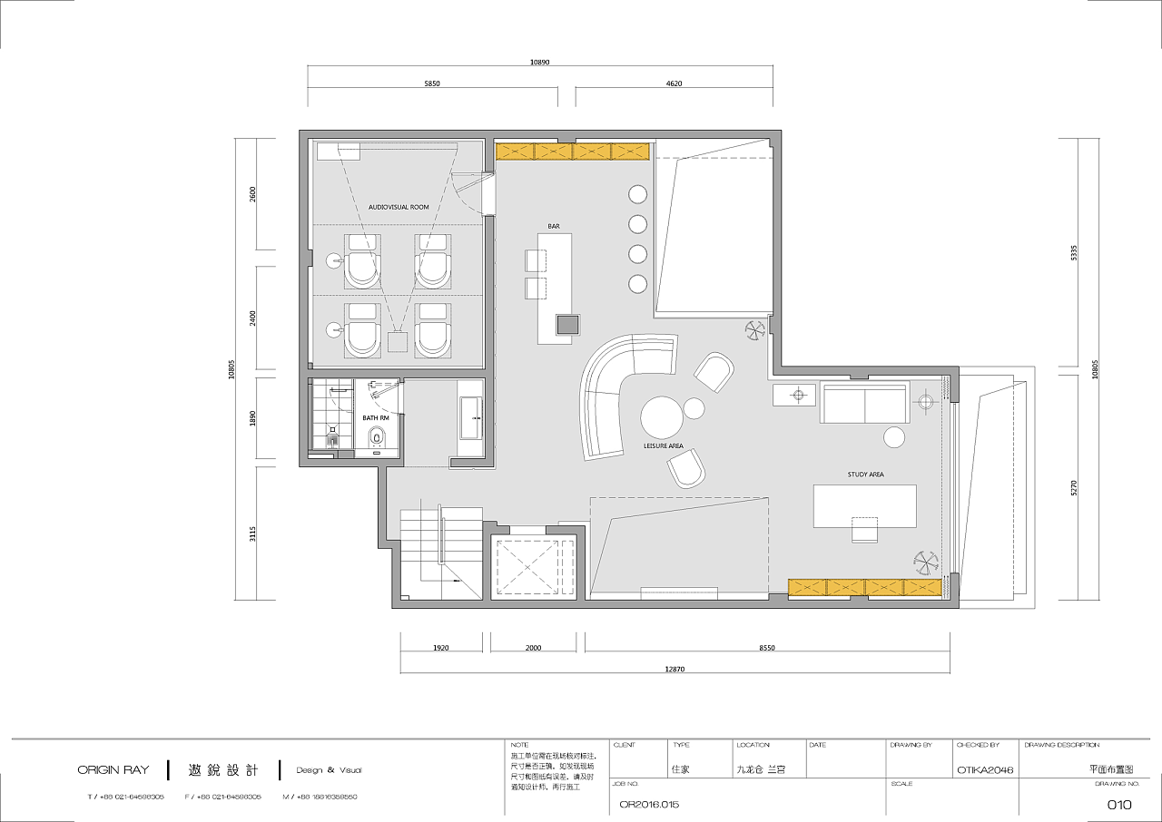
九龙仓兰宫五居室设计-10
九龙仓兰宫五居室设计-11
九龙仓兰宫五居室设计-12
九龙仓兰宫五居室设计-13
九龙仓兰宫五居室设计-14
九龙仓兰宫五居室设计-15
九龙仓兰宫五居室设计-16
九龙仓兰宫五居室设计-17
九龙仓兰宫五居室设计-18
九龙仓兰宫五居室设计-19
九龙仓兰宫五居室设计-20
南京喵熊网络科技有限公司 苏ICP备18050492号-4知末 © 2018—2020 . All photos and trademark graphics are copyrighted by their owners.增值电信业务经营许可证(ICP)苏B2-20201444苏公网安备 32011302321234号
客服
消息
收藏
下载
最近