查看完整案例

收藏

下载
项目名称:西班牙Na哑剧之家位置:西班牙
设计公司:公司工作室
照片:Modococophoto
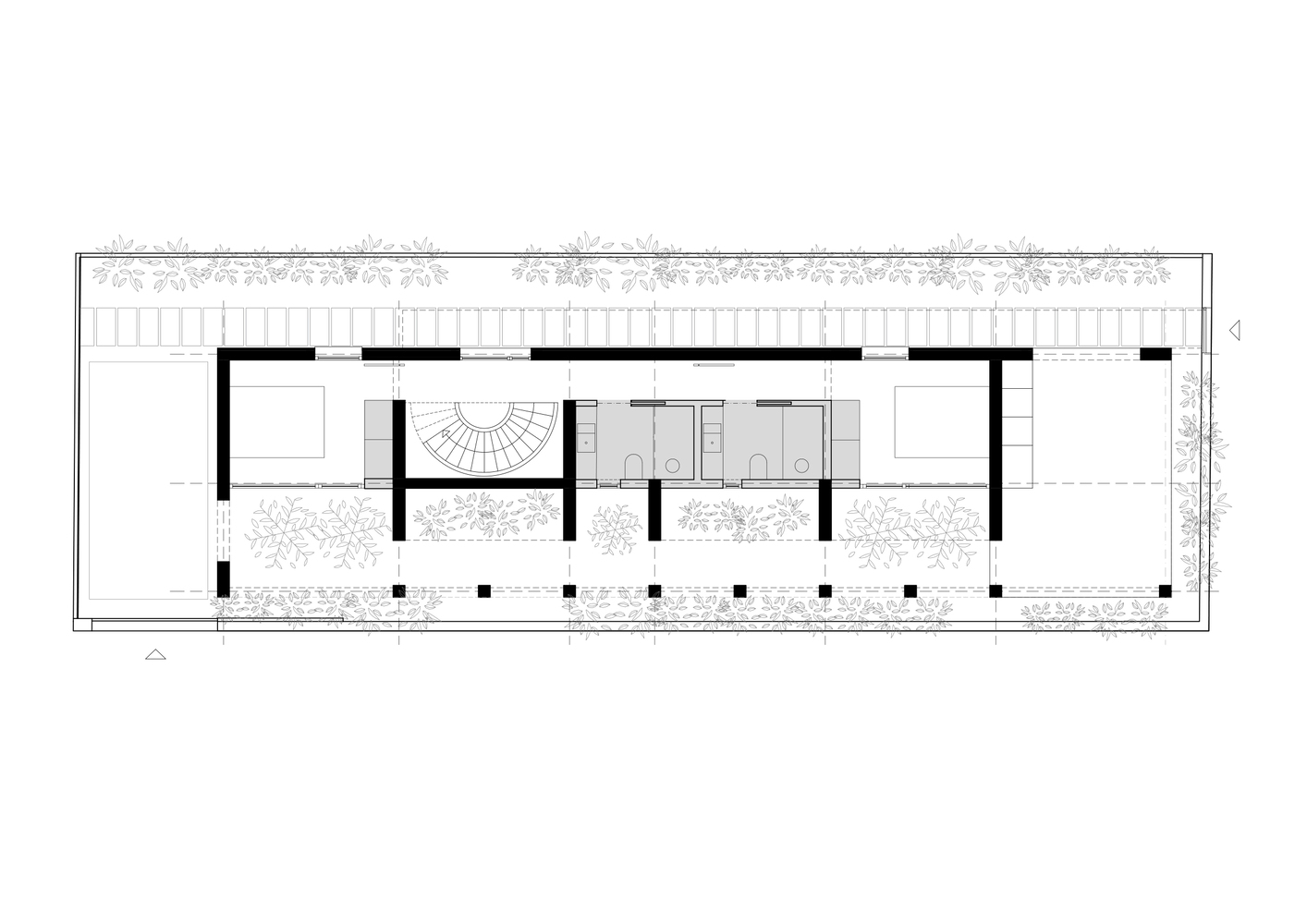
NAMIME House位于马略卡岛南部沿海村庄Sa Ràpita镇。该地区沿着面向南方的卡布雷拉岛前面的海岸发展。这是一个安静的住宅区。房屋所在的地块呈矩形,面积较小,位于一个角落。为了在这块土地上进行建设,该地区的市政条例要求将房子与街道和邻近的地块分开。因此,一旦进行了强制隔离,最终的房子只有3米宽。这是一个起点:在仅有3米的建造房屋宽度内安装整个可居住项目。这种限制要求在地块的纵向方向上定位方案,利用最大的可占用空间和最大的日照。在地块的前面,悬挂门廊服装的设计将作为太阳能保护,并将作为一种机制,以最大限度地提高房屋的内部空间。项目策略很明确:创造最大的“室内-室外”空间,以应对3米封闭住宅的限制。我们试图将狭窄的室内空间发挥到立面的极限,包括整个前廊。因此,可居住的结构与包围房子的结构相一致,内部空间被调整,以使房子的房间响应结构轴的节奏。
这种调制解决了程序,同时配置了所有的空间,包括立面。一楼是卧室,一楼是客厅、厨房和餐厅。游泳池所在的屋顶上也有一个空间,是房子最有特权的地方,可以看到大海和卡夫雷拉岛的美妙景色。为了减少体积和交流空间,我们开放了建筑,引入了一系列连接不同房间的内部庭院,产生了多重循环。尽管庭院很小,但我们可以将花园带到楼上,并与街道形成一个过滤器,从而在街道上获得卧室的隐私。实质性是非常清楚的。表面是用现场制作的水磨石、生物石灰和天然石灰粉刷的,使用暖色和中性色的调色板。这些材料具有连续性,出现在屋内屋外。为了制作水磨石,使用了该地区的骨料和石头,我们会在内部元素中发现,如脸盆、家具和台面。室内木制品由该国可持续生产的松木制成。
西班牙Na哑剧之家外部实景图
西班牙Na哑剧之家外部实景图
西班牙Na哑剧之家外部实景图
西班牙Na哑剧之家外部实景图
西班牙Na哑剧之家外部实景图
西班牙Na哑剧之家内部实景图
西班牙Na哑剧之家内部实景图
西班牙Na哑剧之家内部实景图
西班牙Na哑剧之家平面图
西班牙Na哑剧之家平面图
西班牙Na哑剧之家平面图
西班牙Na哑剧之家剖面图
客服
消息
收藏
下载
最近















