查看完整案例

收藏

下载
项目名称:暗香
项目地址:合正名园
空间类型:一室一厅
软硬装设计:深蓝设计团队VS阿英姐
施工:王师傅施工团队
设计面积:原使用面积28平米(建筑面积37平米)
设计说明:早些年,你以为做造型就是设计,后来,一大批优秀的设计师展示了做空间做风格才是设计,越往后越发现,设计很大程度上展现了居住者的精神需求,换句话说,设计除了满足生活所需,更需要体现出使用者的情怀。
拿到这个小房子的一开始,我以为把空间利用好再把风格做整合,就足够。最后,我发现,阿英姐从一个业主身份变身为一个灵魂引导者,带领我和施工队伍,在反复中,在纠结中,从一开始的复古混搭风慢慢的走向了她坚定认为的民国风。
这何尝不是她挖掘自己想要感觉的过程,这何尝不是我这样的执行者的一种学习和提炼。
深感荣幸。
——————————————————————————————————————————
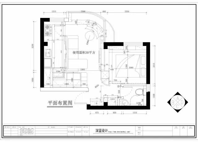
先放上原结构和实际平面布置图,
方便大家了解实景作品对应在空间中的位置和结构——
厨房由正方形改成长条形,增加了操作台面和储物;
卧室和客厅之间使用柜子隔断,柜子上方大部分给卧室用,下方少量给客厅用;
阳台和客厅连通,窗户往外扩展,增加了窗台,方便晾晒衣服,连通后的空间通过靠窗卡座与矮柜,增设了餐厅功能;
客厅角落增设半高矮柜,也就是人们常说的榻榻米,除了增加储物,更是为了父母在的时候,阿英姐能有自己的睡眠空间,平时则作为她学习工作发呆之地。
——————————————————————————————————————————————
在这个城市打拼的人,几乎都想要自己的一个窝,哪怕只是方寸之地。
对于这个属于自己的领域,我们寄予了太多的希望:
你可以要它宽敞明亮,方便整洁。。。
你也可以要它简单舒适,结构清晰。。
一万个人可以对家有一万种大大小小的期许。
所以,我们的音姐说她要风情要浓烈要小情调,又有何不可?
。。。
过程中,我和音姐也有过程度不一的分歧,比如木色要不要这么深,比如墙面的被音姐称呼为“秋香黄”的颜色,又比如,矮榻栏杆的高低。
我记得这些分歧里面有个关键字就是“安全感”,即使我至今都没太懂,但这是她要的安稳即可。
打造一个储物功能强大的空间是生活,给这个空间赋予精致的细节是情调。
为了安全感也罢,为了视觉感也好,这就是音姐的安稳与惬
顺便提一句,留声机是音姐好友所赠,放这里非常契合,音姐这位好友也就是熟悉我们深蓝的朋友们都知道的那套趣园迷醉小情调的主人。
看过那套作品和再看这套作品,我想你们也会和我一样的感慨:什么叫人以群分。哈哈哈。
其实靠近栏杆的位置还有个小小的升降桌哦,在音姐设想的生活里,坐在塌上,看着书玩着电脑,困了就地一躺,想想也是很有趣的事情。
窗户的一开一合,是空间的对话,更是内外情感的交流,略宽的窗台,更能提供音姐便餐的便利。。。
其实窗户是可以四扇全部打开的。可以全部折叠到窗台超出窗框的部分。
为此,音姐没少折磨我和老王。。。
本来原计划餐厅上方的天花是有原木条装饰的,后来舍弃,换之以小画点缀,何为小情趣,就体现在这些细节之处,从灯里的藤蔓,到顶上的荷叶到柜门上的荷花,心思巧妙之余,也得给画师三少爷举起大拇指。
结合矮柜面与窗台连为整体,矮处安置圆弧形卡座,利用窗台形成靠背,这一排,一气呵成,实用而利用空间。
已经看到音姐在这个看上去小小的餐厅区域办置过大餐招待过多人。
小小空间,一览无余,小并不代表不能丰富,也并不代表一定拥挤。如何把零散的生活用品收纳起来,如何保证进出通畅,这就看对空间尺度的把握和细节设计了。
看到拍细节美图里被虚化的重点了么。。。那都是强大储物所在。。。储物柜、书柜、餐边柜一应俱全。
此刻我要篡改晓松的一句名言:生活不止眼前的油盐酱醋,还应该有诗茶书花。
感叹完诗茶书花,我们还是来关心下油盐酱醋吧。
可惜了原计划利用外面矮榻下的空间嵌入消毒柜,无奈最终因为两毫米的误差塞不进去。。。换成了一个小的。。
谁说小空间不能有一个大一点的厨房的!
换个角度,我们可以看到从进门开始到通往卧室和卫生间的过道是如何利用的。
虽说进门的开间小了,但是比起这个,更重要的是鞋柜的功能。
在结构上我们改动了一下,得以过道增加了储物柜,以及把洗衣机放置于此。
阿音姐的鞋啊包啊有地塞了。阿音姐也是很爱美哒!~
开门关门之间。。。房间与洗手间呼之欲出。。。
你们现在所看到的成品图里,其实蕴含了很多的用心和精力,细节素材款式,每一样东西,都是我们和阿音姐反复推敲讨论确定的,比如卫生间门里的这个铁艺花的样式。
卫生间虽小,但也尽可能的实用考虑。
对于马赛克到底填浅色缝好还是深色缝好的争执一直持续到现在。。。阿音姐固执的认为就应该填黑缝~~对于此我一直都是回一个白眼给她。哈哈。
卧室不大,却也物尽其用。还在靠窗增加了一排矮柜。阿音姐就是这么需要她。不过我特别能理解,那种伸手就想拿到东西,起床就能对镜梳妆的需求。毕竟我也是一个懒人。。
可惜了摄影师没有拍床对面一整面的大衣柜。柜门雕花式样也是反复挑选才确定的。
是的,这个柜子下面部分其实是两边用。
壁灯是装一个还是两个,矮柜开放还是封闭,一一考虑后的结果。
床头的木格本来打算是客厅矮榻那里用的,后来发现挂房间更合适。这是一个善变主人的房子。
阿音姐的荷花荷叶情节。。。。
你可能不能喜欢这样色调偏暗的空间,但你一定可以感受到,这样空间的主人,一定是一个忠于自己喜好并且绝不随波逐流的女人。
这一切,都是音姐触手可及的幸福与满足。
暗香浮动,姹紫嫣红,虽只是一个小屋的浮世清欢,却是音姐栖居的细水长流。
以上,呈现给你们。
以下,感谢:
音姐全程的高度参与及信任;
老王施工团队不怕麻烦积极实现我们想法的工匠精神;
以及所有为此案提供产品和配件的商家们——
陶师傅瓷砖、芬琳漆、大荷水性漆、鑫鑫福临门窗、宏光玻璃等等等等。
还有必须要点赞的阔尔墙绘的肖瑶。我们都昵称她为三少爷。^_^。
以及摄影师阿荣
美图收
文:
深圳深蓝室内设计
创意总监:肖泽健
设计总监:张淳
客服
消息
收藏
下载
最近














































