查看完整案例

收藏

下载
F L Y ¢ D E S I G N
⊙
# 竹径茶语 #
现实的结构联系生命的意义,创造一方属于精神的隐居地。打破藩篱还原空间最精简的结构,对碎片化区域解构再造。入户洄游式动线、公区开阔感,基础功能之外的品茗观影空间,重塑大平层应有的大气舒适,以质朴淡然谱写空间节奏,演绎雅奢品质生活。
客厅 / The Living Room
客厅 / The Living Room
效果图 / Effect Drawing
客厅 / The Living Room
客厅 / The Living Room
客厅 / The Living Room
内敛素雅的色调展述空间故事,白与灰的适度交织,加以局部重色点缀,营造雅致幽韵的层次感空间。公区多处加入弧形元素调和空间的方正,淡泊平和氛围下塑造刚柔并济的情绪化空间。
客厅 / The Living Room
客厅 / The Living Room
客厅 / The Living Room
客厅 / The Living Room
效果图 / Effect Drawing
客厅 / The Living Room
借以木质元素增加居家温润质感,在顶面由玄关延伸至阳台、餐厨及走廊处,将公区以婉约的方式增强空间的关联性。电视背景墙以挑空悬浮+块面分割,一改玄关的闭塞,营造入户的大气通透感,同时塑造入户洄游式动线,调节生活模式的可能性满足不同情景需求。
客厅 / The Living Room
生活阳台 / Living Balcony
生活阳台 / Living Balcony
过道 / Aisle
效果图 / Effect Drawing
餐厨区 / Kitchen area
对餐厨区原本碎片化空间重组再分区,优化区域功能之余体感得以有效提升。中厨双动线设计与西厨、餐厅互动自如,提高日常备餐就餐的操作便利性。对承重柱做圆弧包裹处理,以此延伸做西厨台面的穿插结构,空间基底为结构造型的出发点,建筑结构与功能美感共融、共生。
餐厨区 / Kitchen area
餐厨区 / Kitchen area
餐厨区 / Kitchen area
茶室 / Tea House
茶室 / Tea House
整合后的空间用作品茗啜饮的茶室,精神休憩放空的滋养地,亦兼顾书房功能满足阅读办公需求。茶室以移门作为内与外的隔断,可完全敞开将自然光经由茶室撒入过厅,补足深邃廊道的光感缺失,光与影的细碎柔和增添身处其中的氤氲氛围。
茶室 / Tea House
茶室 / Tea House
效果图 / Effect Drawing
主卧 / Bedroom
主卧 / Bedroom
步入式衣帽间与睡眠区一体化设计服务于主卧,通透柜体穿插结构设立梳妆台与箱包收纳展览空间,不做显性分割卧室自有其秩序性美感,功能得以周全强化的同时亦保持着大气舒适的空间仪态。
主卧 / Bedroom
主卧 / Bedroom
儿童房 / Children's Room
儿童房采用星河壁纸与原木树屋床体,有原野般的自由、宇宙的奥妙与遐想,为孩童打造一个无拘束、富有想象力的自由感空间。卧室不做过多铺设适度留白,给予小朋友宽敞的玩耍成长环境。
儿童房 / Children's Room
主卫 / Toilet
主卫 / Toilet
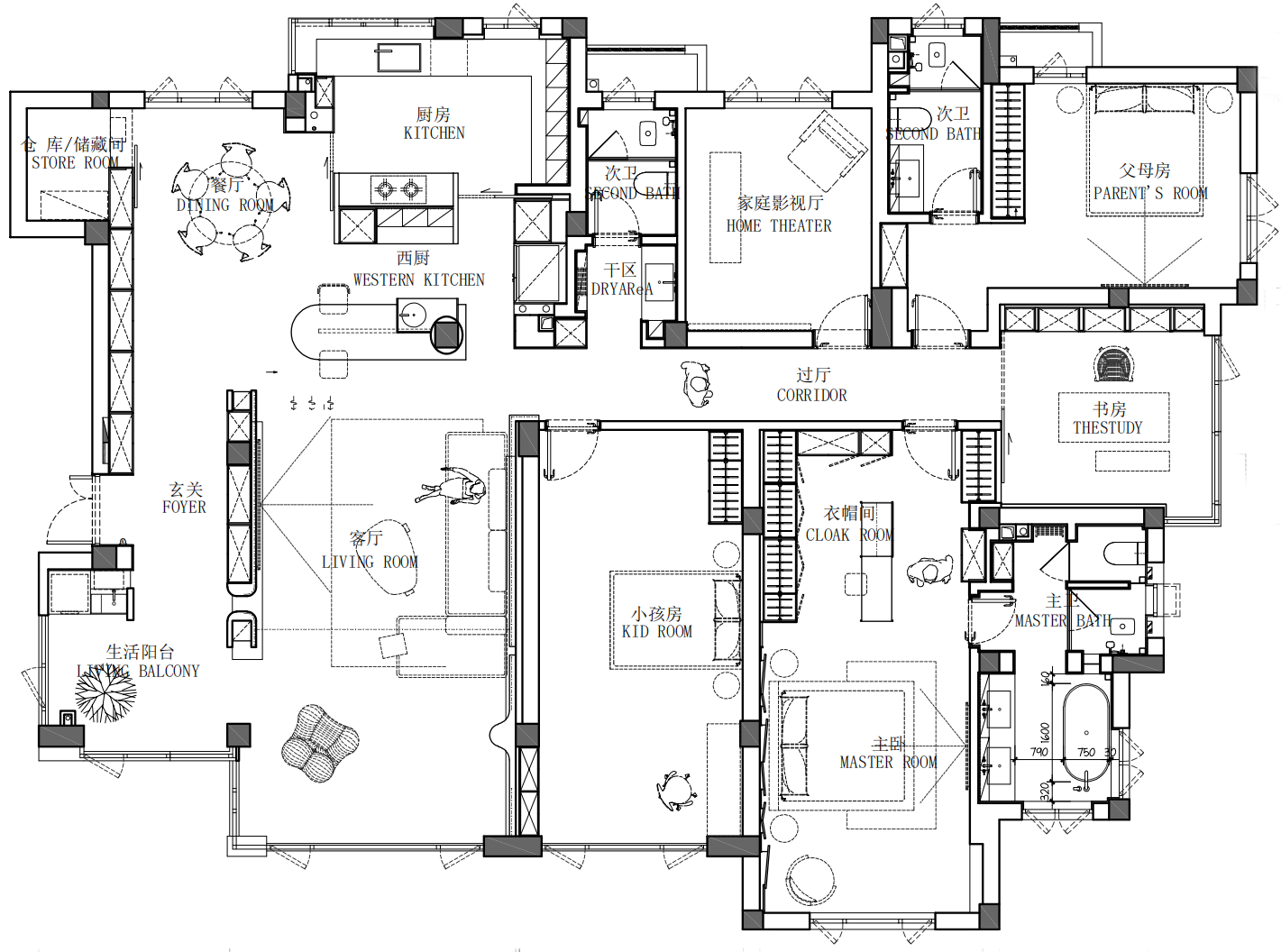
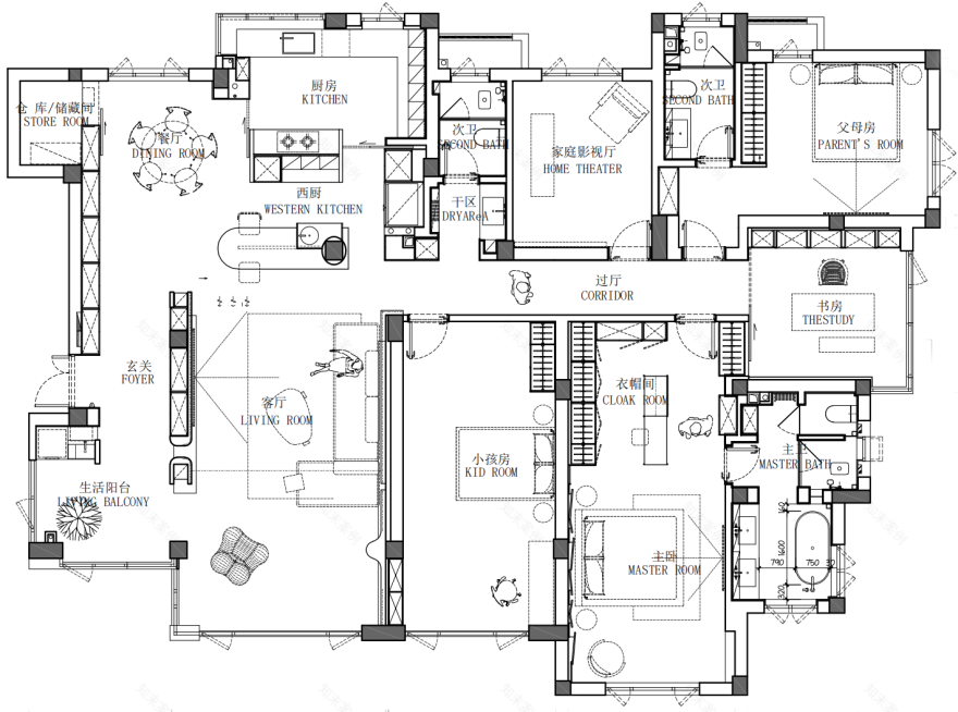
原始图
平面图
地址/杭州市江干区高德置地中心2号楼2单元1101室
客服
消息
收藏
下载
最近







































