查看完整案例

收藏

下载
项目名称:尼加拉瓜卡萨·福特住宅
位置:尼加拉瓜
建筑师: Hurtado乌尔塔多·阿奎特科斯
卡萨福特是一对退休夫妇的独栋住宅,位于森林中,在城市外围马那瓜。在这个项目中,通过将主住宅和社会生活放在两个不同的层面上,使项目适应自然地形的高度,从而最大限度地减少了地面运动。它的特点是在房子的外部和内部不同寻常地应用酸性纹理,创造出一种水洗的类似Chukum的纹理,而不是那样。外部被来自墨西哥的酸性纹理所包围,这给人一种氧化物的印象,当与原始动物和拟议的景观相遇时,传达出一种宁静和愉快的地中海感觉,而内部,一种酸洗饰面纹理,与粘土地板、粘土瓷砖和木梁相结合,在项目的所有环境(室内和室外)中创造了一种和谐的对比。该项目以一面细长的墙来欢迎用户,它支撑着标志着通往主入口的道路的悬臂,进入房子后,主要的社交空间通过展示一个接管主房间的钢筋混凝土拱顶来发挥层次作用。房间的社交空间是定向的,这样就有一个视觉上干净和直接的视角朝向整个花园,延伸到地块的尽头。每个项目必须寻找一个特别的与众不同的,这也不例外。Casa FT有机会将这种纹理和材料的独特组合运用到房子的几乎每个房间。从图书馆的正门,从餐厅到房子的后面。被大自然包围着,感觉就像是主人一直在寻找的和平避难所。有时,非传统揭示了另一种类型的感知,一种应该在每个项目的每个目的中寻找的感知。
尼加拉瓜卡萨·福特住宅外部实景图
尼加拉瓜卡萨·福特住宅外部实景图
尼加拉瓜卡萨·福特住宅外部实景图
尼加拉瓜卡萨·福特住宅外部实景图
尼加拉瓜卡萨·福特住宅外部实景图
尼加拉瓜卡萨·福特住宅内部实景图
尼加拉瓜卡萨·福特住宅内部实景图
尼加拉瓜卡萨·福特住宅内部实景图
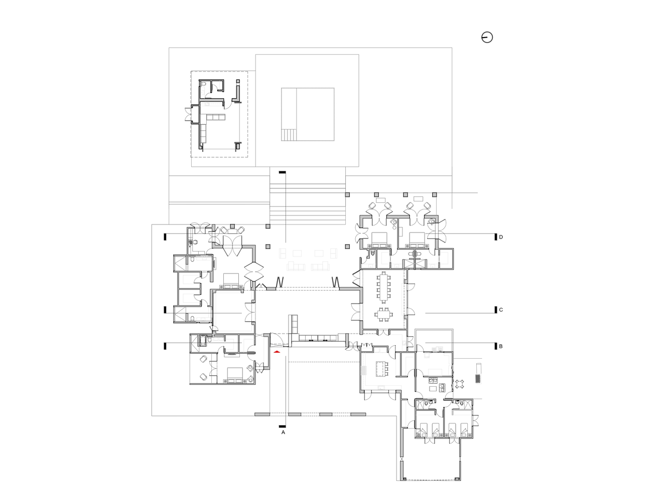
尼加拉瓜卡萨·福特住宅平面图
尼加拉瓜卡萨·福特住宅平面图
尼加拉瓜卡萨·福特住宅平面图
尼加拉瓜卡萨·福特住宅剖面图
尼加拉瓜卡萨·福特住宅剖面图
尼加拉瓜卡萨·福特住宅立面图
尼加拉瓜卡萨·福特住宅立面图
客服
消息
收藏
下载
最近


















